Mehrere Einfamilienhäuser preiswert abzugeben. Mietkauf möglich. Altschulden kein Hindernis. Kein Eigenkapital erforderlich.
Mach aus deiner Miete Wohneigentum!
31719 Wiedensahl
Die vollständige Adresse der Immobilie erhalten Sie vom Anbieter.
Auf Karte anzeigen
Die vollständige Adresse der Immobilie erhalten Sie vom Anbieter.
Infos
| Haustyp | Einfamilienhaus |
|---|---|
| Wohnfläche ca. | 150 m2 |
| Nutzfläche | 0 m2 |
| Grundstücksfläche | 737 m2 |
| Zimmer | 4 |
| Schlafzimmer | 3 |
| Badezimmer | 1 |
| Anzahl Garage/Stellplatz | 0 |
Kosten
| Kaltmiete |
1.450 € |
|---|---|
| Nebenkosten | keine Angabe |
| Heizkosten | keine Angabe |
| Gesamtmiete | 1.450 € |
Weiter mieten oder doch kaufen?
Wer in Miete wohnt, überweist dem Vermieter im Laufe der Jahre hohe Summen, die sich
auch in die eigenen vier Wände investieren lassen könnten.
Bausubstanz & Energieausweis
| Baujahr | 2026 |
|---|---|
| Qualität der Austattung | Gehoben |
| Heizungsart | Wärmepumpe |
Beschreibung des Objekts
Ausstattung
Fast vollendet inkl. Estrich und Bad
Lage
Wiedensahl ist eine charmante Gemeinde im Landkreis Schaumburg in Niedersachsen und zählt rund 1.000 Einwohner. Eingebettet in eine von Landwirtschaft und Natur geprägte Umgebung, liegt der Ort etwa neun Kilometer nordwestlich von Stadthagen und rund 40 Kilometer von Hannover entfernt. Bekannt ist Wiedensahl vor allem als Geburtsort des berühmten Zeichners und Dichters Wilhelm Busch, was dem Ort ein besonderes kulturelles Profil verleiht. Zahlreiche Kunst- und Kulturangebote, darunter das Wilhelm-Busch-Geburtshaus, prägen das Gemeindebild und machen Wiedensahl auch touristisch interessant.
Trotz seiner überschaubaren Größe bietet Wiedensahl eine solide Infrastruktur. Über die Landesstraßen L342 und L770 sowie die nahe verlaufende Bundesstraße B441 ist der Ort gut an das überregionale Straßennetz angebunden. Die umliegenden Städte wie Wunstorf, Stadthagen und Hannover sind mit dem Auto bequem erreichbar. Wer öffentliche Verkehrsmittel bevorzugt, profitiert von Busverbindungen der Schaumburger Verkehrs-Gesellschaft (SVG), etwa mit der Linie 2121, die eine direkte Anbindung an Stadthagen, Niedernwöhren und Meerbeck ermöglicht. Der nächstgelegene Bahnhof befindet sich in Stadthagen (ca. 9 km entfernt) und bietet regelmäßige Zugverbindungen Richtung Hannover und Minden.
Die Nahversorgung ist im Ort selbst auf die Grundbedürfnisse ausgerichtet: Eine Apotheke, kleinere Läden für den täglichen Bedarf und ein gastronomisches Angebot stehen zur Verfügung. Weitergehende Einkaufsmöglichkeiten, medizinische Versorgung und weiterführende Schulen sind in den Nachbarorten – insbesondere in Stadthagen – in kurzer Fahrzeit erreichbar. Für Familien mit kleinen Kindern gibt es in Wiedensahl einen Kindergarten sowie eine Grundschule.
Der Ort zeichnet sich zudem durch ein starkes Gemeinschaftsgefühl und ein reges Vereinsleben aus. Sport-, Kultur- und Heimatvereine sowie regelmäßige Veranstaltungen wie der Wilhelm-Busch-Markt fördern den sozialen Zusammenhalt und bieten vielfältige Möglichkeiten zur Freizeitgestaltung.
Insgesamt bietet Wiedensahl eine lebenswerte Kombination aus ländlicher Ruhe, kultureller Identität und guter Erreichbarkeit – ideal für Menschen, die naturnah wohnen möchten, ohne auf eine solide Anbindung an das städtische Umfeld zu verzichten.
Sonstige Angaben
Miet-Kauf möglich. Bonität vorausgesetzt. Alle Angaben ohne Gewähr. Ohne Einsatz von Eigenkapital möglich. Altschulden, Verbindlichkeiten kein Hindernis. Abbildungen können Extras beinhalten. Ausgewiesener Preis exklusiv Erwerb und sonstigen Baunebenkosten. Bitte haben Sie Verständnis, das die Anfragen chronologisch bearbeitet werden und nur mit kompletten Kontaktdaten beantwortet werden Telefonnummer, Vor- und Zuname und E-Mail. Es handelt sich um ein reales Projekt. Termine nur nach Vereinbarung in einem unserer regionalen Info-Center.
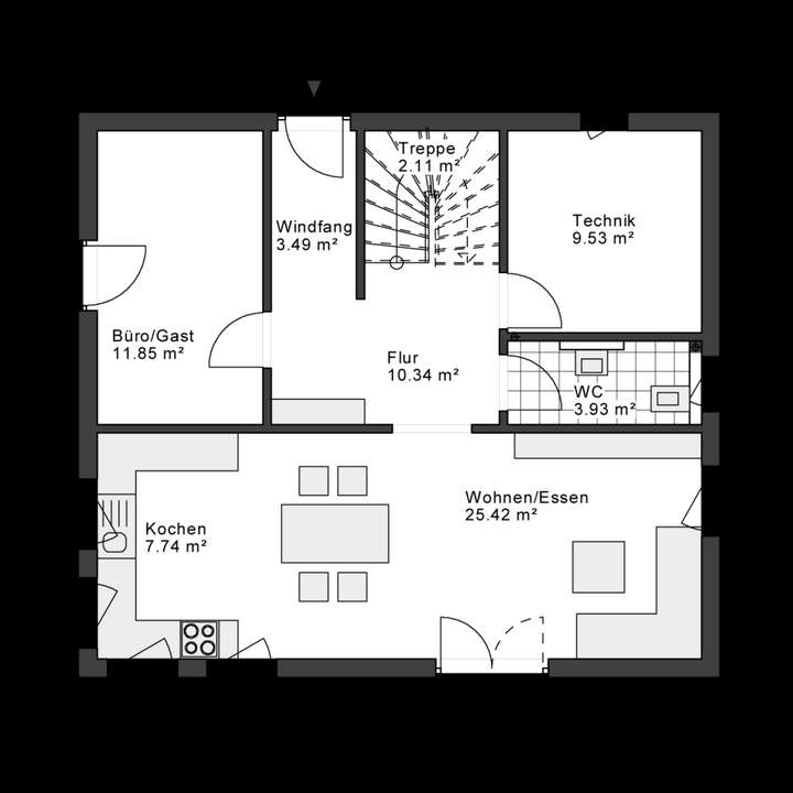
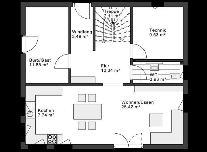
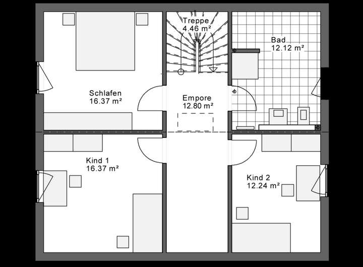
Grundriss
Grundriss EG
>
>
Grundriss OG
>
>
Adresse
31719 Wiedensahl
Interessante Orte
Preis- und Lageinformationen
Preistrend für Bestandsimmobilien in Wiedensahl