Dieses neu erbaute moderne Einfamilienhaus aus dem Jahr 2025 überzeugt durch eine durchdachte Raumaufteilung, helle Wohnräume und eine sehr hohe Energieeffizienz (Klasse A+). Das Haus eignet sich ideal für Paare oder Familien, die Wert auf Komfort, Nachhaltigkeit und ruhiges Wohnen legen.
Im Erdgeschoss erwartet Sie ein großzügiger, offen gestalteter Wohn- und Essbereich mit großen Fensterflächen und direktem Zugang zur Terrasse und in den Garten. Die Küche ist harmonisch integriert und bietet ausreichend Platz für gemeinsames Kochen und Leben. Ergänzt wird diese Ebene durch einen Eingangsbereich sowie einen praktischen Technik-/Abstellraum.
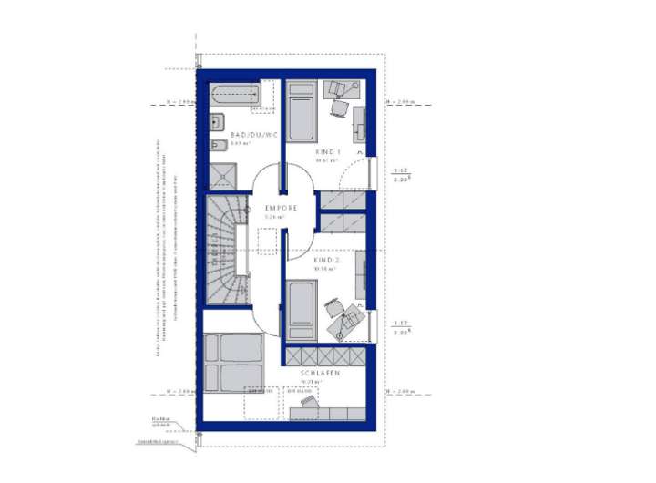
Das Obergeschoss verfügt über ein ruhiges Schlafzimmer, zwei weitere Zimmer (ideal als Kinder-, Arbeits- oder Gästezimmer) sowie ein modernes Badezimmer mit Badewanne und Dusche. Die Raumaufteilung ist funktional und gleichzeitig wohnlich gestaltet.
Der Garten mit Terrasse lädt zum Entspannen, Spielen oder geselligen Abenden im Freien ein und bietet ausreichend Privatsphäre.Dieses moderne Einfamilienhaus aus dem Jahr 2015 überzeugt durch eine durchdachte Raumaufteilung, helle Wohnräume und eine sehr hohe Energieeffizienz (Klasse A+). Das Haus befindet sich in einem äußerst gepflegten Zustand und eignet sich ideal für Paare oder Familien, die Wert auf Komfort, Nachhaltigkeit und ruhiges Wohnen legen.
Im Erdgeschoss erwartet Sie ein großzügiger, offen gestalteter Wohn- und Essbereich mit großen Fensterflächen und direktem Zugang zur Terrasse und in den Garten. Die Küche ist harmonisch integriert und bietet ausreichend Platz für gemeinsames Kochen und Leben. Ergänzt wird diese Ebene durch einen Eingangsbereich sowie einen praktischen Technik-/Abstellraum.
Das Obergeschoss verfügt über ein ruhiges Schlafzimmer, zwei weitere Zimmer (ideal als Kinder-, Arbeits- oder Gästezimmer) sowie ein modernes Badezimmer mit Badewanne und Dusche.
Erstbezug - KFW40 Einfamilienhaus (BJ 2025) mit Garten, lichtdurchflutet, top Grundriss
79426 Buggingen
Die vollständige Adresse der Immobilie erhalten Sie vom Anbieter.
Auf Karte anzeigen
Die vollständige Adresse der Immobilie erhalten Sie vom Anbieter.
Infos
| Haustyp | Reiheneckhaus |
|---|---|
| Etagenzahl | 2 |
| Wohnfläche ca. | 114 m2 |
| Nutzfläche | 114 m2 |
| Grundstücksfläche | 200 m2 |
| Bezugsfrei ab | 1.3.2026 |
| Zimmer | 3 |
| Schlafzimmer | 3 |
| Badezimmer | 2 |
| Haustiere | Nach Vereinbarung |
Kosten
| Kaltmiete |
1.500 € |
|---|---|
| Nebenkosten | + 150 € |
| Heizkosten | in Nebenkosten enthalten |
| Gesamtmiete | 1.650 € |
| Kaution o. Genossenschaftsanteile | 4.500,00 |
Weiter mieten oder doch kaufen?
Wer in Miete wohnt, überweist dem Vermieter im Laufe der Jahre hohe Summen, die sich
auch in die eigenen vier Wände investieren lassen könnten.
Bausubstanz & Energieausweis
| Baujahr | 2025 |
|---|---|
| Letzte Sanierung | 2025 |
| Objektzustand | Erstbezug |
| Qualität der Austattung | Gehoben |
| Energieausweis | liegt zur Besichtigung vor |
Beschreibung des Objekts
Lage
Buggingen, gelegen im gleichnamigen Ortsteil, bietet eine gute Infrastruktur mit Einkaufsmöglichkeiten für den täglichen Bedarf sowie Ärzten und Schulen. Die Anbindung an den öffentlichen Nahverkehr ist gegeben, was Ausflüge in die umliegenden Städte und Regionen erleichtert. Die landschaftlich reizvolle Umgebung lädt zu Freizeitaktivitäten im Freien ein und bietet eine hohe Lebensqualität.
Adresse
79426 Buggingen
Interessante Orte
Preis- und Lageinformationen
Preistrend für Bestandsimmobilien in Buggingen