Mehrere Einfamilienhäuser preiswert abzugeben. Mietkauf möglich. Altschulden kein Hindernis. Kein Eigenkapital erforderlich.
Dein Zuhause, so individuell wie du.
32699 Extertal
Die vollständige Adresse der Immobilie erhalten Sie vom Anbieter.
Auf Karte anzeigen
Die vollständige Adresse der Immobilie erhalten Sie vom Anbieter.
Infos
| Haustyp | Einfamilienhaus |
|---|---|
| Wohnfläche ca. | 132 m2 |
| Nutzfläche | 0 m2 |
| Grundstücksfläche | 894 m2 |
| Zimmer | 3 |
| Schlafzimmer | 3 |
| Badezimmer | 1 |
| Anzahl Garage/Stellplatz | 0 |
Kosten
| Kaltmiete |
1.400 € |
|---|---|
| Nebenkosten | keine Angabe |
| Heizkosten | keine Angabe |
| Gesamtmiete | 1.400 € |
Weiter mieten oder doch kaufen?
Wer in Miete wohnt, überweist dem Vermieter im Laufe der Jahre hohe Summen, die sich
auch in die eigenen vier Wände investieren lassen könnten.
Bausubstanz & Energieausweis
| Baujahr | 2026 |
|---|---|
| Qualität der Austattung | Gehoben |
| Heizungsart | Wärmepumpe |
Beschreibung des Objekts
Ausstattung
THINK BLACK – All in.
- Schlüsselfertig & sofort bezugsbereit – ohne zusätzlichen Aufwand
- Kompletter Innenausbau – keine Handwerkersuche, kein Planungsstress
- Durchdachte Raumaufteilung – moderne Wohnkonzepte für jede Lebensphase
- Innovative Haustechnik – zukunftssicheres Wohnen mit höchster Effizienz
- Maximaler Komfort – alles fertig, alles drin
Für alle, die einfach einziehen und losleben wollen!
Lage
Extertal liegt im Nordosten Nordrhein-Westfalens, im Kreis Lippe, und gehört zur landschaftlich attraktiven Region des Weserberglands. Die Gemeinde mit rund 12.000 Einwohnern bietet eine naturnahe Umgebung, kombiniert mit einer soliden Infrastruktur und einer verkehrsgünstigen Lage. Über die Bundesstraßen B1 und B238 ist Extertal gut an die umliegenden Städte wie Lemgo, Barntrup, Detmold und Rinteln angebunden. Die Autobahnen A2 und A30 sind in etwa 25 bis 30 Minuten erreichbar, was auch Pendlern eine gute Erreichbarkeit der Wirtschaftsregionen Ostwestfalen-Lippe und Niedersachsen ermöglicht. Der öffentliche Nahverkehr wird durch regionale Buslinien gewährleistet. Bahnanschlüsse bestehen in den benachbarten Städten Lemgo und Rinteln. Zusätzlich verläuft die historische Extertalbahn durch die Gemeinde, die derzeit touristisch genutzt wird.
Die digitale Infrastruktur ist in zentralen Ortsteilen gut ausgebaut, mit stabiler Breitbandversorgung und nahezu flächendeckendem 4G-Mobilfunk. Der 5G-Ausbau schreitet voran und verbessert die digitale Erreichbarkeit weiter. Extertal bietet eine verlässliche Grundversorgung mit Kindergärten, mehreren Grundschulen und einer Gesamtschule im Ortsteil Bösingfeld. Einkaufsmöglichkeiten, medizinische Versorgung durch Hausärzte und Apotheken sowie Freizeitangebote wie Sportvereine, Wander- und Radwege sind vorhanden. Weiterführende Schulen, Krankenhäuser und spezialisierte Fachärzte sind in kurzer Fahrdistanz in den benachbarten Städten erreichbar.
Durch die Kombination aus ruhiger, naturnaher Lage, guter Anbindung und funktionierender Grundversorgung ist Extertal ein attraktiver Wohnstandort für Familien, Berufspendler und alle, die die Vorzüge des Landlebens mit der Nähe zu urbaner Infrastruktur verbinden möchten.
Sonstige Angaben
Die Finanzierung Ihres Traumhauses ist ohne Eigenkapital möglich, bestehende Schulden sind kein Hindernis – Bonität vorausgesetzt.
Rufen Sie noch heute an und fragen Sie nach unserem Miet-Kauf-Modell.
Die dargestellten Bilder und Grundrisse sind Beispiele und können Sonderausstattungen enthalten, die nicht im Preis enthalten sind. Die Kaufnebenkosten sind nicht im Preis enthalten. Alle Angaben ohne Gewähr.
Bitte haben Sie Verständnis, dass nur vollständig ausgefüllte Anfragen bearbeitet werden können.
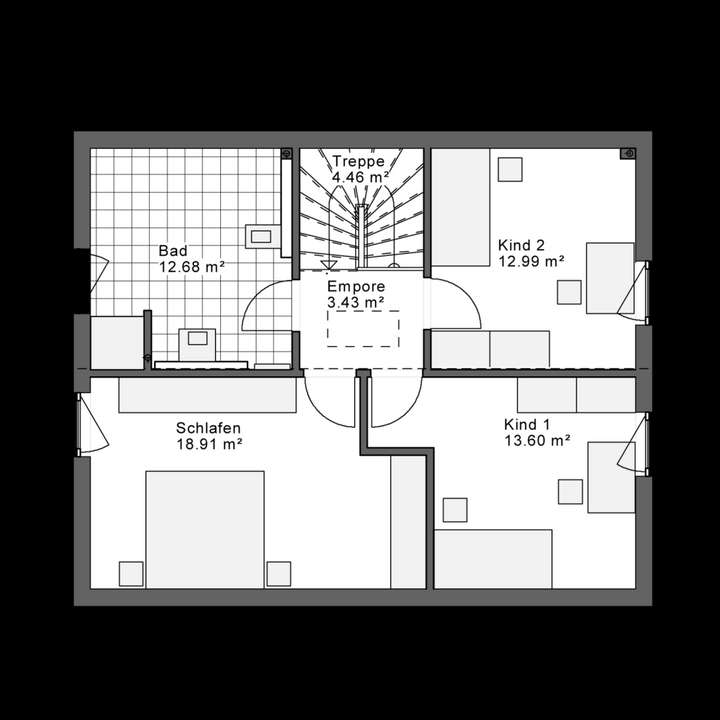
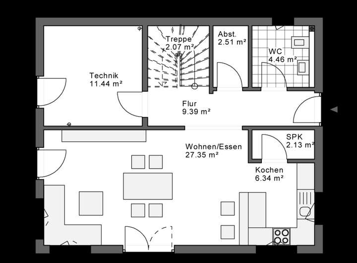
Grundriss
Grundriss EG
>
>
Grundriss OG
>
>
Adresse
32699 Extertal
Interessante Orte
Preis- und Lageinformationen
Preistrend für Bestandsimmobilien in Extertal