Mehrere Einfamilienhäuser preiswert abzugeben. Mietkauf möglich. Altschulden kein Hindernis. Kein Eigenkapital erforderlich.
Dein Zuhause, so individuell wie du.
29229 Celle
Die vollständige Adresse der Immobilie erhalten Sie vom Anbieter.
Auf Karte anzeigen
Die vollständige Adresse der Immobilie erhalten Sie vom Anbieter.
Infos
| Haustyp | Einfamilienhaus |
|---|---|
| Wohnfläche ca. | 140 m2 |
| Nutzfläche | 0 m2 |
| Grundstücksfläche | 590 m2 |
| Zimmer | 4 |
| Schlafzimmer | 3 |
| Badezimmer | 1 |
| Anzahl Garage/Stellplatz | 0 |
Kosten
| Kaltmiete |
1.400 € |
|---|---|
| Nebenkosten | keine Angabe |
| Heizkosten | keine Angabe |
| Gesamtmiete | 1.400 € |
Weiter mieten oder doch kaufen?
Wer in Miete wohnt, überweist dem Vermieter im Laufe der Jahre hohe Summen, die sich
auch in die eigenen vier Wände investieren lassen könnten.
Bausubstanz & Energieausweis
| Baujahr | 2026 |
|---|---|
| Qualität der Austattung | Gehoben |
| Heizungsart | Wärmepumpe |
Beschreibung des Objekts
Ausstattung
THINK WHITE – Do it yourself.
- Fertige Gebäudehülle – du entscheidest über den Innenausbau
- Maximale Individualität – für kreative Köpfe & Macher
- Ideal für Eigenleistung – handwerkliches Geschick spart bares Geld
- Optimierte Grundrisse – smarte Wohnkonzepte für flexible Gestaltung
- Hochwertige Bauweise – modern, nachhaltig & energieeffizient
- Zugang zu staatlichen Förderprogrammen – clever finanzieren & sparen
Für alle, die ihr Zuhause selbst gestalten wollen!
Lage
Scheuen ist ein nördlich gelegener Ortsteil der Stadt Celle in Niedersachsen, rund fünf Kilometer vom Stadtzentrum entfernt. Der Stadtteil bietet eine ruhige, ländliche Wohnlage mit guter Verkehrsanbindung über die Bundesstraße B3 sowie Busverbindungen ins Zentrum. Die Nähe zur Bahnstrecke Celle–Soltau und regelmäßige Buslinien machen den Ort auch für Pendler interessant.
Scheuen ist historisch geprägt, unter anderem durch einen ehemaligen Bundeswehrstandort, dessen Gelände heute zivil genutzt wird – etwa als Segelflugplatz oder für Katastrophenschutz-Trainingszentren. Auch ein Kriegsgefangenenfriedhof erinnert an die Geschichte des Ortes. Trotz der ruhigen Lage ist die Infrastruktur gut entwickelt und wird durch neue Bauprojekte weiter gestärkt. Die Umgebung ist von viel Grün und Naherholungsflächen geprägt, was insbesondere Familien anspricht.
Mit bezahlbarem Wohnraum, naturnaher Umgebung und guter Anbindung an die Stadt Celle vereint Scheuen ländliche Lebensqualität mit urbaner Nähe.
Sonstige Angaben
Miet-Kauf möglich. Bonität vorausgesetzt. Alle Angaben ohne Gewähr. Ohne Einsatz von Eigenkapital möglich. Altschulden, Verbindlichkeiten kein Hindernis. Abbildungen können Extras beinhalten. Ausgewiesener Preis exklusiv Erwerb und sonstigen Baunebenkosten. Bitte haben Sie Verständnis, das die Anfragen chronologisch bearbeitet werden und nur mit kompletten Kontaktdaten beantwortet werden Telefonnummer, Vor- und Zuname und E-Mail. Es handelt sich um ein reales Projekt. Termine nur nach Vereinbarung in einem unserer regionalen Info-Center.
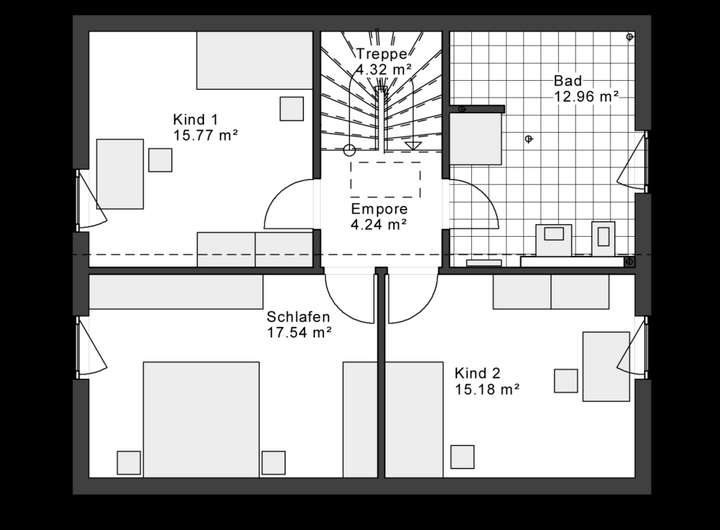
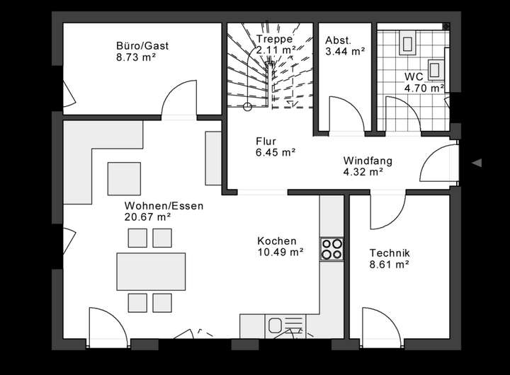
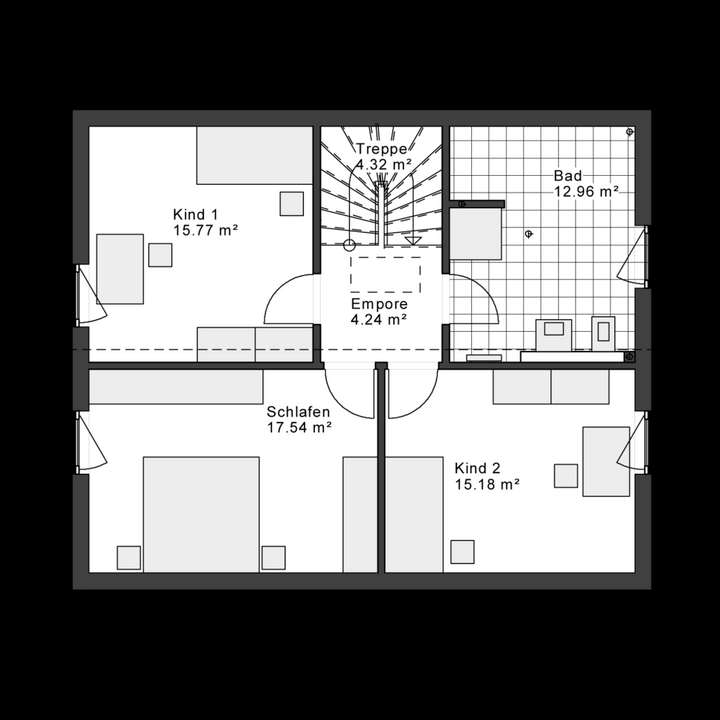
Grundriss
Grundriss EG
>
>
Grundriss OG
>
>
Adresse
29229 Celle
Interessante Orte
Preis- und Lageinformationen
Preistrend für Bestandsimmobilien in Celle