Mehrere Einfamilienhäuser preiswert abzugeben. Mietkauf möglich. Altschulden kein Hindernis. Kein Eigenkapital erforderlich.
Dein Zuhause, so individuell wie du.
38448 Wolfsburg
Die vollständige Adresse der Immobilie erhalten Sie vom Anbieter.
Auf Karte anzeigen
Die vollständige Adresse der Immobilie erhalten Sie vom Anbieter.
Infos
| Haustyp | Einfamilienhaus |
|---|---|
| Wohnfläche ca. | 140 m2 |
| Nutzfläche | 0 m2 |
| Grundstücksfläche | 517 m2 |
| Zimmer | 4 |
| Schlafzimmer | 3 |
| Badezimmer | 1 |
| Anzahl Garage/Stellplatz | 0 |
Kosten
| Kaltmiete |
1.700 € |
|---|---|
| Nebenkosten | keine Angabe |
| Heizkosten | keine Angabe |
| Gesamtmiete | 1.700 € |
Weiter mieten oder doch kaufen?
Wer in Miete wohnt, überweist dem Vermieter im Laufe der Jahre hohe Summen, die sich
auch in die eigenen vier Wände investieren lassen könnten.
Bausubstanz & Energieausweis
| Baujahr | 2026 |
|---|---|
| Qualität der Austattung | Gehoben |
| Heizungsart | Wärmepumpe |
Beschreibung des Objekts
Ausstattung
THINK WHITE – Do it yourself.
- Fertige Gebäudehülle – du entscheidest über den Innenausbau
- Maximale Individualität – für kreative Köpfe & Macher
- Ideal für Eigenleistung – handwerkliches Geschick spart bares Geld
- Optimierte Grundrisse – smarte Wohnkonzepte für flexible Gestaltung
- Hochwertige Bauweise – modern, nachhaltig & energieeffizient
- Zugang zu staatlichen Förderprogrammen – clever finanzieren & sparen
Für alle, die ihr Zuhause selbst gestalten wollen!
Lage
Wolfsburg ist eine moderne Stadt in Niedersachsen mit ausgezeichneter Infrastruktur und verkehrsgünstiger Lage. Die Autobahnen A2 und A39 sowie der gut angebundene Hauptbahnhof ermöglichen schnelle Verbindungen in alle Richtungen. Zahlreiche Buslinien, insbesondere am zentralen Omnibusbahnhof, sorgen für eine umfassende innerstädtische Mobilität.
Die Stadt bietet ein breites Bildungsangebot mit zahlreichen Kindertagesstätten, Grund- und weiterführenden Schulen, darunter mehrere Gymnasien und Gesamtschulen. Berufsbildende Einrichtungen und eine Volkshochschule ergänzen das Spektrum. Wolfsburg verfügt zudem über ein starkes Freizeit- und Kulturangebot mit Sportstätten wie der Eis Arena, kulturellen Einrichtungen wie dem CongressPark und interaktiven Erlebnissen im Science Center phæno.
Mit moderner Stadtentwicklung, vielseitigen Freizeitmöglichkeiten und guter Erreichbarkeit bietet Wolfsburg eine hohe Lebensqualität für Familien, Berufstätige und Unternehmen gleichermaßen.
Sonstige Angaben
Miet-Kauf möglich. Bonität vorausgesetzt. Alle Angaben ohne Gewähr. Ohne Einsatz von Eigenkapital möglich. Altschulden, Verbindlichkeiten kein Hindernis. Abbildungen können Extras beinhalten. Ausgewiesener Preis exklusiv Erwerb und sonstigen Baunebenkosten. Bitte haben Sie Verständnis, das die Anfragen chronologisch bearbeitet werden und nur mit kompletten Kontaktdaten beantwortet werden Telefonnummer, Vor- und Zuname und E-Mail. Es handelt sich um ein reales Projekt. Termine nur nach Vereinbarung in einem unserer regionalen Info-Center.
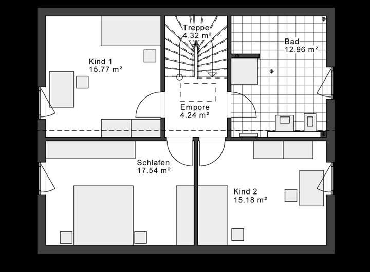
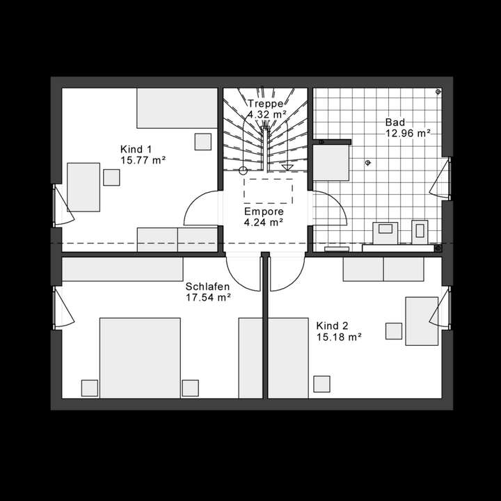
Grundriss
Grundriss EG
>
>
Grundriss OG
>
>
Adresse
38448 Wolfsburg
Interessante Orte
Preis- und Lageinformationen
Preistrend für Bestandsimmobilien in Brackstedt