Doppelhaushälfte für Familie
Dieses wunderschöne Haus bietet Ihnen 140 m² Wohnfläche mit insgesamt 5 hellen Zimmern und 2 Badezimmern, perfekt für Familien, die Wert auf Raum und Komfort legen.
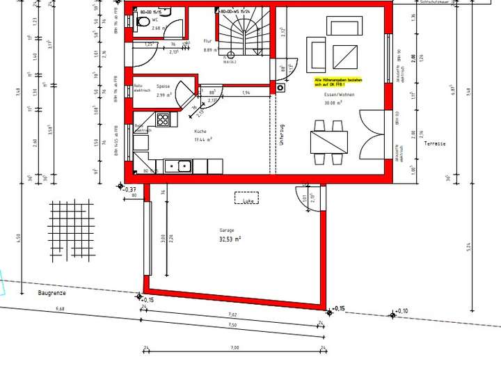
Im Erdgeschoss befindet sich ein großzügiger, offener Wohn- Essbereich. Dank der angrenzenden Speisekammer haben Sie immer alles praktisch verstaut. Außerdem bietet das Erdgeschoss noch ein Gäste WC.
Im 1. Obergeschoss befindet sich neben den drei Schlafzimmern noch ein modernes Badezimmer inklusiver bodentiefer Dusche und einer Badewanne.
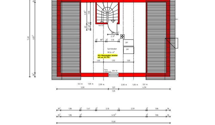
Der Dachboden ist ausgebaut und kann als zusätzlicher Wohnraum genutzt werden.
Im großzügigen Keller befindet sich extra viel Stellplatz, da sogar die Garage unterkellert ist und somit besonders viel Raum entsteht. Da auch der Keller mit einer Fußbodenheizung ausgestattet ist, ist hier also selbst für eine Familie noch Platz für Hobbys.
Die Fußbodenheizung ist auf allen Stockwerken verlegt und trägt so maßgeblich zu einem Wohlfühl-Ambiente bei.
Mietkonditionen:
- Kaltmiete 1.500 €
- Nebenkosten ca. 250 €
- Garten nach Fertigstellung
- Nur Nichtraucher
- Keine Haustiere
Vereinbaren Sie noch heute einen Besichtigungstermin und entdecken Sie das Potential dieses wunderbaren Familienheims.
Die Gartenanlegung wird im Frühjahr 2026 fertiggestellt werden.
Infos
| Haustyp | Doppelhaushaelfte |
|---|---|
| Etagenzahl | 3 |
| Wohnfläche ca. | 140 m2 |
| Nutzfläche | 235 m2 |
| Grundstücksfläche | 350 m2 |
| Bezugsfrei ab | 2.3.2026 |
| Zimmer | 5 |
| Schlafzimmer | 3 |
| Badezimmer | 2 |
| Haustiere | Nein |
| Garage/Stellplatz | Garage |
| Anzahl Garage/Stellplatz | 1 |
Kosten
| Kaltmiete |
1.500 € |
|---|---|
| Nebenkosten | + 250 € |
| Heizkosten | in Nebenkosten enthalten |
| Gesamtmiete | 1.750 € |
| Kaution o. Genossenschaftsanteile | 4.500,00 |
Weiter mieten oder doch kaufen?
Wer in Miete wohnt, überweist dem Vermieter im Laufe der Jahre hohe Summen, die sich
auch in die eigenen vier Wände investieren lassen könnten.
Bausubstanz & Energieausweis
| Baujahr | 2026 |
|---|---|
| Objektzustand | Erstbezug |
| Qualität der Austattung | Gehoben |
| Heizungsart | Wärmepumpe |
| Wesentliche Energieträger | Strom |
| Energieausweis | liegt vor |
| Energieausweistyp | Bedarfsausweis |
| Energieverbrauchskennwert | 19,8 kWh/(m²*a) |
| Energieeffizienzklasse | A+ |
19,8
kWh/(m²*a)
Energieeffizienzklasse A+
- A+
- A
- B
- C
- D
- E
- F
- G
- H
- 0
- 25
- 50
- 75
- 100
- 125
- 150
- 175
- 200
- 225
- >250
Beschreibung des Objekts
Ausstattung
Ausstattung:
- Neubau / Erstbezug
- Energieeffiziente Luftwärmepumpe
- Fußbodenheizung in allen Räumen (außer Speisekammer)
- Dreifachverglaste Fenster
- Massive Bauweise
- Sichtdachstuhl
- Netzwerk
- Terrasse
- Eigener Garten (ab Fertigstellung im Frühjahr)
- Garage
- 2 Außenstellplätze
Lage
Die Lage Mitten im fränkischen Seenland macht den Sommerurlaub beinahe überflüssig. Mehrere Badeseen sind in ca. 15 Minuten Autofahrt zu erreichen. Auch sonst lädt die ländliche Idylle zur Erholung und Freizeitgestaltung ein.
Die nächste Einkaufsmöglichkeit sowie Kindergarten / Grundschule sind in 5 Minuten Autofahrt zu erreichen.
Grundriss
Keller1
>
>
Erdgeschoss1
>
>
1Stock
>
>
Dachboden
>
>
Adresse
Kurzenaltheim 65a, 91802 Meinheim
Interessante Orte
Preis- und Lageinformationen
Preistrend für Bestandsimmobilien in Meinheim