Mehrere Einfamilienhäuser preiswert abzugeben. Mietkauf möglich. Altschulden kein Hindernis. Kein Eigenkapital erforderlich.
Bauen mit Vertrauen: Die Zukunft für Ihre Familie
32791 Lage
Die vollständige Adresse der Immobilie erhalten Sie vom Anbieter.
Auf Karte anzeigen
Die vollständige Adresse der Immobilie erhalten Sie vom Anbieter.
Infos
| Haustyp | Einfamilienhaus |
|---|---|
| Wohnfläche ca. | 126 m2 |
| Nutzfläche | 0 m2 |
| Grundstücksfläche | 599 m2 |
| Zimmer | 4 |
| Schlafzimmer | 3 |
| Badezimmer | 1 |
| Anzahl Garage/Stellplatz | 1 |
Kosten
| Kaltmiete |
1.600 € |
|---|---|
| Nebenkosten | keine Angabe |
| Heizkosten | keine Angabe |
| Gesamtmiete | 1.600 € |
Weiter mieten oder doch kaufen?
Wer in Miete wohnt, überweist dem Vermieter im Laufe der Jahre hohe Summen, die sich
auch in die eigenen vier Wände investieren lassen könnten.
Bausubstanz & Energieausweis
| Baujahr | 2026 |
|---|---|
| Qualität der Austattung | Gehoben |
| Heizungsart | Wärmepumpe |
Beschreibung des Objekts
Ausstattung
Jedes unserer Fertighäuser wird speziell für Sie geplant und ist perfekt auf die Anforderungen und Vorgaben Ihres Bauvorhabens angepasst – Bebauungspläne, eine besondere Grundstückslage und die gewünschten Eigenleistungen werden im Detail geprüft und berücksichtigt.
Jedes Schwabenhaus verfügt standardmäßig über:
- Doppel-Wärmepumpe mit 5 in 1-System: Heizen, Kühlen, Lüften, Luftreinigung und Warmwasser
- Zentrale kontrollierte Wohnraum Be- und Entlüftung mit Wärmerückgewinnung
- 3-Scheiben-Wärmeschutzglas
- elektrische Rollladensteuerung*
- Smart-Home-Technologie: Intelligentes Gebäude-Management für die Licht- und Rollladen-Steuerung*
- Schwimmender Estrich mit Wärmedämmung
- Sanitär-Objekte von Markenherstellern wie z. B. Villeroy & Boch usw. sowie Echtglas-Duschabtrennung
- 10 Jahre Gewährleistung nach BGB (üblich: 5 Jahre) und 30 Jahre Garantie auf die Grundkonstruktion
*In Verbindung mit dem Technologie + Komfort-Paket „Blue-Edition“
Diesem Angebot liegt die beliebte Schwabenhaus-Ausbaustufe "Fast-Vollendet Plus" zugrunde. Diese kann selbstverständlich noch entsprechend Ihrer geplanten Eigenleistungen angepasst werden.
Lage
Die Stadt Lage liegt im Kreis Lippe in Nordrhein-Westfalen und befindet sich inmitten der reizvollen Landschaft des Teutoburger Waldes. Mit rund 35.000 Einwohnern bietet Lage eine gelungene Mischung aus städtischem Leben und naturnahem Wohnen. Die zentrale Lage innerhalb des Kreises Lippe macht die Stadt zu einem attraktiven Wohn- und Arbeitsort – sowohl für Pendler als auch für Familien.
Lage verfügt über eine gute Verkehrsanbindung: Über die Bundesstraßen B66 und B239 sowie den nahegelegenen Anschluss zur A2 sind die umliegenden Städte wie Bielefeld, Detmold, Lemgo oder Herford schnell erreichbar. Auch der Bahnhof Lage (Lippe) ist ein regionaler Knotenpunkt und bietet regelmäßige Zugverbindungen in Richtung Bielefeld und Paderborn.
Die Innenstadt von Lage ist geprägt von einer charmanten Mischung aus historischen Gebäuden, Einkaufsmöglichkeiten, Cafés und Restaurants. Schulen, Kindergärten, medizinische Einrichtungen sowie zahlreiche Sport- und Freizeitangebote sind in der Stadt ebenfalls gut vertreten. Besonders hervorzuheben ist die Nähe zur Natur: Zahlreiche Wander- und Radwege, Naherholungsgebiete und der Teutoburger Wald bieten vielfältige Möglichkeiten zur Erholung und Freizeitgestaltung im Grünen.
Sonstige Angaben
Miet-Kauf möglich. Bonität vorausgesetzt. Alle Angaben ohne Gewähr. Ohne Einsatz von Eigenkapital möglich. Altschulden, Verbindlichkeiten kein Hindernis. Abbildungen können Extras beinhalten. Ausgewiesener Preis exklusiv Erwerb und sonstigen Baunebenkosten. Bitte haben Sie Verständnis, das die Anfragen chronologisch bearbeitet werden und nur mit kompletten Kontaktdaten beantwortet werden Telefonnummer, Vor- und Zuname und E-Mail. Es handelt sich um ein reales Projekt. Termine nur nach Vereinbarung in einem unserer regionalen Info-Center.
Anbauteile, Carport, Garage und Keller können Extras sein, die als Sonderausstattung angeboten werden. Abbildungen, Grundrisse und Flächenangaben sind beispielhaft und können Extras zeigen. Flächenangaben nach DIN 277.
Profitieren Sie jetzt von der Schwabenhaus Online Beratung und verwirklichen Sie Ihr Traumhaus https://www.schwabenhaus.de/anmeldung-hausbau-beratung-online/
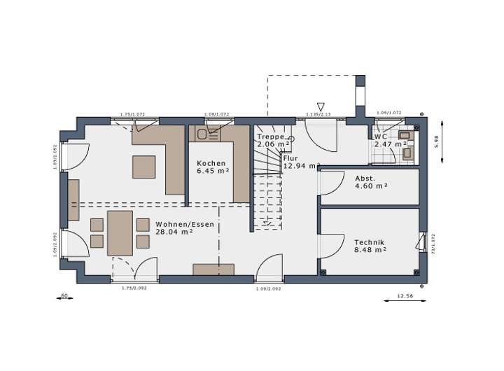
Grundriss
Erdgeschoss
>
>
Obergeschoss
>
>
Adresse
32791 Lage
Interessante Orte
Preis- und Lageinformationen
Preistrend für Bestandsimmobilien in Lage