Dieses hochwertige Einfamilienhaus (fertiggestellt 2023 in massiver Bauweise) befindet sich in einer ruhigen, sonnigen Wohngegend von Reit im Winkl, einem bekannten Luftkurort in den Chiemgauer Alpen. Schon beim Aufwachen genießen Sie den freien Blick auf das beeindruckende Wetterkreuz – umgeben von purer Natur und einer herrlichen Bergkulisse.
Ausstattung:
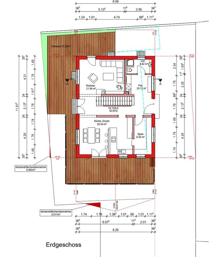
Das Haus bietet 3 großzügige helle Schlafzimmer und Masterbad im Obergeschoss sowie 3 weitere Räume mit großzügigem Badezimmer im voll ausgebautes Untergeschoss und Technik/Waschraum. Das Erdgeschoß überzeugt durch viel Platz, mit begehbaren Garderobenschrank, sehr große Speisekammer mit Durchgang zur geräumigen Küche mit Eßbereich. Gäste-WC und großes Wohnzimmer mit offenen Kamin runden das luxuriöse Raumgefühl ab.
Zentrale Lüftungsanlage für ein allergikerfreundliches Raumklima
Luftwärmepumpe mit Pufferspeicher, Fußbodenheizung auf allen 3 Etagen und Photovoltaikanlage mit Wechselrichter und Pufferspeicher sorgen für geringe Nebenkosten
Westterrasse mit Abendsonne und geplanter Südterrasse
2 exklusive Badezimmer + separates Gäste-WC
Südgarten mit Grillplatz für gesellige Abende
Individuell vom Schreiner gefertigte Einbauten wie begehbare Garderobe, Kleiderschränke im Schlafzimmer, Waschtische, Luxuriöse Küche mit Dampfgarrer, Weinkühlschrank, Bora und Quooker.
Homeoffice durch hochwertig ausgestattete Technik ohne Probleme möglich, Glasfaseranschluss vorbereitet.
Kontaktdaten und Anfragen unter 015142110581
Vermietung erfolgt teilmöbliert aufgrund der diversen Schreinereinbauten. Vollmöblierung nach Absprache ebenfalls möglich.
Das Haus wird aktuell noch zum Verkauf angeboten, bei Interesse sprechen sie mich gerne an. Nach Vermietung ab April, steht es ab dann nicht mehr zum Verkauf!
Einfamilienhaus in Reit im Winkl mit exklusiver Ausstattung
83242 Reit im Winkl
Die vollständige Adresse der Immobilie erhalten Sie vom Anbieter.
Auf Karte anzeigen
Die vollständige Adresse der Immobilie erhalten Sie vom Anbieter.
Infos
| Haustyp | Einfamilienhaus |
|---|---|
| Etagenzahl | 2 |
| Wohnfläche ca. | 160 m2 |
| Nutzfläche | 240 m2 |
| Grundstücksfläche | 650 m2 |
| Bezugsfrei ab | 1.4.2026 |
| Zimmer | 4 |
| Schlafzimmer | 4 |
| Badezimmer | 3 |
| Haustiere | Nach Vereinbarung |
Kosten
| Kaltmiete |
3.500 € |
|---|---|
| Nebenkosten | + 450 € |
| Heizkosten | in Nebenkosten enthalten |
| Gesamtmiete | 3.950 € |
| Kaution o. Genossenschaftsanteile | 9500 |
Weiter mieten oder doch kaufen?
Wer in Miete wohnt, überweist dem Vermieter im Laufe der Jahre hohe Summen, die sich
auch in die eigenen vier Wände investieren lassen könnten.
Bausubstanz & Energieausweis
| Baujahr | 2023 |
|---|---|
| Objektzustand | Neuwertig |
| Qualität der Austattung | Gehoben |
| Heizungsart | Wärmepumpe |
| Energieausweis | liegt zur Besichtigung vor |
Beschreibung des Objekts
Lage
Reit im Winkl ist eine charmante Gemeinde im bayerischen Chiemgau, bekannt für seine malerische Landschaft und die Nähe zu den Alpen. Die Region bietet zahlreiche Freizeitmöglichkeiten wie Wandern, Skifahren und Radfahren.
Zentral angebunden: Restaurants, Cafés, zwei Bäckereien, Supermarkt, Drogeriemarkt, Ärzte und Modegeschäfte sind in nur etwa 10 Gehminuten erreichbar. Auch mehrere Buslinien befinden sich in fußläufiger Nähe.
Freizeit und Natur beginnen direkt vor der Haustür: Im Sommer laden unzählige Wander- und Radwege sowie das schöne Freibad mit langer Wasserrutsche im Ortskern zum Aktivsein ein.
Im Winter stehen Sie in nur 2 Gehminuten direkt in die Langlaufloipe. Das bekannte Gebiet Winklmoos/Steinplatte erreichen Sie über Seegatterl mit dem Auto in etwa 15 Minuten. Paragliding vom Unterberg, zahlreiche idyllische Bergseen sowie viele weitere Ausflugsziele sind bequem erreichbar.
Familienfreundlich: Eine Grundschule befindet sich im Ortskern, weiterführende Schulen (Mittelschule, Realschule und Gymnasium) sind per Schulbus in Marquartstein und Unterwössen gut angebunden.
Das umfassende Vereinsleben schafft schnell Anschluss im familiären Ort.
Grundriss
Erdgeschoss
>
>
Obergeschoss
>
>
Kellergeschoss
>
>
Adresse
83242 Reit im Winkl
Interessante Orte
Preis- und Lageinformationen
Preistrend für Bestandsimmobilien in Reit im Winkl