Dieses attraktive 5-Zimmer-Haus mit ca. 148 m² Wohnfläche und ca. 120 m² Grundstücksfläche befindet sich in München Obersendling. Das Haus in Split-Level-Bauweise erstreckt sich über 3 Etagen und verfügt über ein Gäste-WC sowie ein geräumiges Wohnzimmer mit offenem Kamin. Die Terrasse hat eine elektrische Markise, der Balkon eine manuell bedienbare. Ein Garten (120m²) mit altem Baumbestand erstreckt sich nach Westen. Auf dieser Seite liegen auch Terrasse, Balkon und Loggia (12m²). Das Haus ist ab sofort verfügbar..
Es handelt sich um einen Erstbezug: das Haus ist 2025 generalsaniert worden mit Fußbodenheizung und Wärmepumpe.
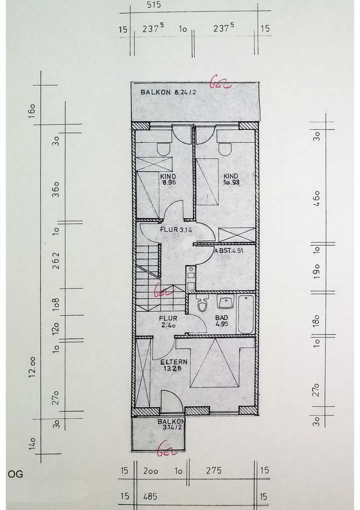
Im Erdgeschoss befindet sich die Küche und das Gäste-WC, über 5 Stufen erreicht man das Wohnzimmer. Von dort gelangt man auf die Terrasse sowie in den Garten. Im ersten Stock liegen das Badezimmer mit moderner begehbarer Dusche sowie drei Zimmer, eins Richtung Straße sowie zwei (durch eine Schiebetür abgetrennt) mit Blick auf den Garten und Balkon. Zusätzlich gibt es hier einen Abstellraum. Im zweiten Stock befindet sich ein heller und sehr großzügig geschnittener Loft mit Loggia.
Der Keller verfügt über vier Räume, einer davon kann Dank entsprechender Anschlüsse und Waschbecken als Hauswirtschaftsraum genutzt werden.
Besichtigungen sind nach Absprache möglich. Bitte senden Sie uns persönliche Dokumente nicht unaufgefordert zu.
5-Zimmer Reihenmittelhaus in München Sendling mit Garten und Tiefgaragenplatz
Murnauer Straße 106a,
81379 München
Auf Karte anzeigen
Infos
| Haustyp | Reihenmittelhaus |
|---|---|
| Etagenzahl | 3 |
| Wohnfläche ca. | 148 m2 |
| Nutzfläche | 148 m2 |
| Grundstücksfläche | 120 m2 |
| Bezugsfrei ab | 5.1.2026 |
| Zimmer | 5 |
| Schlafzimmer | 5 |
| Badezimmer | 1 |
| Haustiere | Nach Vereinbarung |
| Garage/Stellplatz | Tiefgarage |
| Anzahl Garage/Stellplatz | 1 |
Kosten
| Kaltmiete |
3.000 € |
|---|---|
| Nebenkosten | + 150 € |
| Heizkosten | + 150 € |
| Gesamtmiete | 3.300 € (zzgl. Heizkosten) |
| Miete für Garage/Stellplatz | 50 € |
| Kaution o. Genossenschaftsanteile | 9.000,00 |
Weiter mieten oder doch kaufen?
Wer in Miete wohnt, überweist dem Vermieter im Laufe der Jahre hohe Summen, die sich
auch in die eigenen vier Wände investieren lassen könnten.
Bausubstanz & Energieausweis
| Baujahr | 1978 |
|---|---|
| Letzte Sanierung | 2025 |
| Objektzustand | Erstbezug nach Sanierung |
| Qualität der Austattung | Gehoben |
| Heizungsart | Wärmepumpe |
| Energieausweis | liegt vor |
Beschreibung des Objekts
Ausstattung
Fliesenboden in allen Räumen inkl. Keller und auf allen Balkonen. Marmortreppe vom KG bis ins DG. Fußbodenheizung in allen Räumen im EG, 1OG und DG. Beheizbarer Kamin im Wohnzimmer. Elektrische Markise im Wohnzimmer. Manuelle Markise im 1OG. Angelegter Garten mit alten Bäumen sowie Wasserbecken vor der Terasse.
Heizung mit Wärmepumpe, Wasserenthärtungsanlage.
Lage
Obersendling, ein charmanter Teil von München, bietet eine angenehme Mischung aus Wohn- und Gewerbegebieten mit moderater Bevölkerungsdichte. Die Anbindung an den öffentlichen Nahverkehr ist durch die U-Bahnlinie U3 und U6 sowie die Buslinien 63 und 134 hervorragend. Das Viertel gilt als sicher und familienfreundlich, ideal für junge Berufstätige und Familien, die eine gute Erreichbarkeit der Innenstadt schätzen.
Eine Kita befindet sich in 200m Entfernung, ebenso die Bus-Haltestellen. Die U-Bahn ist 2 Haltestellen entfernt
Grundriss
Erdgeschoss
>
>
Obergeschoss 1
>
>
Keller
>
>
Dachgeschoss
>
>
Querschnitt
>
>
garten
>
>
Adresse
Murnauer Straße 106a, 81379 München
Interessante Orte
Preis- und Lageinformationen
Preistrend für Bestandsimmobilien in Obersendling