Zur Vermietung steht eine exklusive und sehr gepflegte Doppelhaushälfte im modernen Stadtvillenstil in Wolfsburg‑Wendschott. Auf 135 m² Wohnfläche erwarten Sie zwei Vollgeschosse ohne Dachschrägen, eine hochwertige Ausstattung und eine durchdachte Raumaufteilung.
Im Erdgeschoss befinden sich ein Gäste-WC, ein großer Hauswirtschaftsraum, ein Arbeitszimmer, eine geschlossene Küche sowie der helle Wohn‑/Essbereich mit Zugang zur teilweise überdachten Terrasse. Der liebevoll angelegte Süd‑West‑Garten (ca. 155 m²) verfügt über automatische Bewässerung; die Pflege übernimmt im Sommer ein Gärtner.
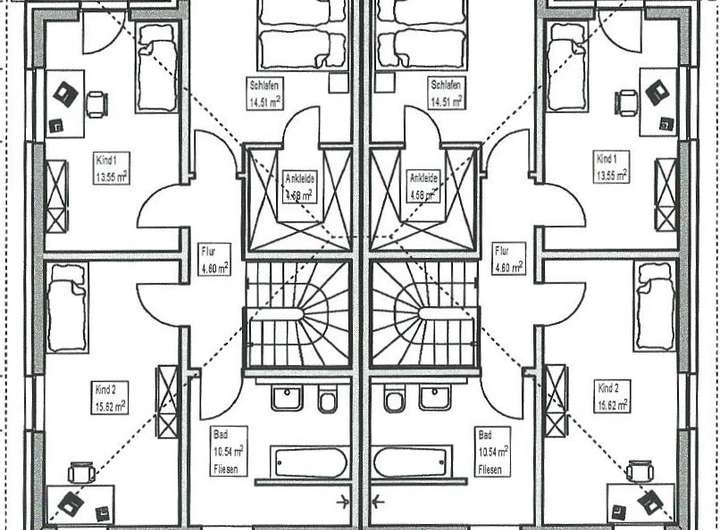
Im Obergeschoss liegen ein modernes Bad mit Wanne und ebenerdiger Dusche, zwei Kinderzimmer, ein Elternschlafzimmer mit Ankleide sowie ein Südbalkon, zugänglich vom Eltern- und einem Kinderzimmer.
Ausstattung: Fußbodenheizung, dreifach verglaste Fenster, teilweise elektrische Rollläden, Glasfaser, SAT-Anlage, separater Hausanschlussraum.
Außenbereich: Grundstück ca. 345 m², Doppelcarport inklusive, hochwertiges Klinkerpflaster, Doppelstabmattenzaun, umlaufende Hecke, Vorgarten und gemeinschaftliches Gartenhäuschen. Die Doppelhaushälfte liegt auf einem Eckgrundstück mit nur einem direkten Nachbarn.
Moderne Doppelhaushälfte mit 5 Zimmern in Wolfsburg-Wendschott
38448 Wolfsburg
Die vollständige Adresse der Immobilie erhalten Sie vom Anbieter.
Auf Karte anzeigen
Die vollständige Adresse der Immobilie erhalten Sie vom Anbieter.
Infos
| Haustyp | Doppelhaushaelfte |
|---|---|
| Etagenzahl | 2 |
| Wohnfläche ca. | 135 m2 |
| Grundstücksfläche | 345 m2 |
| Bezugsfrei ab | 1.4.2026 |
| Zimmer | 5 |
| Badezimmer | 1 |
| Haustiere | Nein |
| Garage/Stellplatz | Carport |
| Anzahl Garage/Stellplatz | 2 |
Kosten
| Kaltmiete |
1.495 € |
|---|---|
| Nebenkosten | + 180 € |
| Heizkosten | keine Angabe |
| Gesamtmiete | 1.675 € (zzgl. Heizkosten) |
| Kaution o. Genossenschaftsanteile | 4485 |
Weiter mieten oder doch kaufen?
Wer in Miete wohnt, überweist dem Vermieter im Laufe der Jahre hohe Summen, die sich
auch in die eigenen vier Wände investieren lassen könnten.
Bausubstanz & Energieausweis
| Baujahr | 2017 |
|---|---|
| Letzte Sanierung | 2025 |
| Objektzustand | Gepflegt |
| Qualität der Austattung | Gehoben |
| Heizungsart | Fernwärme |
| Energieausweis | liegt zur Besichtigung vor |
Beschreibung des Objekts
Lage
Die Immobilie befindet sich in einer ruhigen und attraktiven Wohnlage in Wendschott, nur wenige Minuten vom Wolfsburger Stadtzentrum entfernt. Die Innenstadt, das VW-Werk, der Allersee sowie das Badeland sind bequem mit dem Fahrrad erreichbar. Zahlreiche Einkaufsmöglichkeiten wie Aldi, Rewe, Edeka, Penny, Lidl und NP sowie verschiedene Restaurants, Schulen, Ärzte und Kindergärten liegen in unmittelbarer Umgebung. Eine optimale Busanbindung ergänzt die hervorragende Infrastruktur – die Haltestelle liegt direkt vor der Haustür.
Grundriss
Grundriss Erdgeschoss
>
>
Grundriss Obergeschoss
>
>
Adresse
38448 Wolfsburg
Interessante Orte
Preis- und Lageinformationen
Preistrend für Bestandsimmobilien in Wendschott