Bauen Sie Ihr Traumhaus mit Danhaus und profitieren Sie vom Danhaus-Grundstücksmarkt! Dank flexibler Finanzierungsmöglichkeiten und der Möglichkeit, durch Eigenleistung zu sparen, wird Ihr Eigenheim erschwinglich. Gerne prüfen wir für Sie, ob ein Mietkauf-Modell in Frage kommt – jetzt informieren!
Danhaus bauen & sparen – Grundstücksmarkt & Mietkauf-Check inklusive!
57413 Finnentrop
Die vollständige Adresse der Immobilie erhalten Sie vom Anbieter.
Auf Karte anzeigen
Die vollständige Adresse der Immobilie erhalten Sie vom Anbieter.
Infos
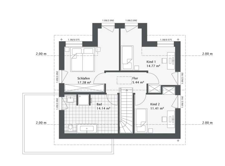
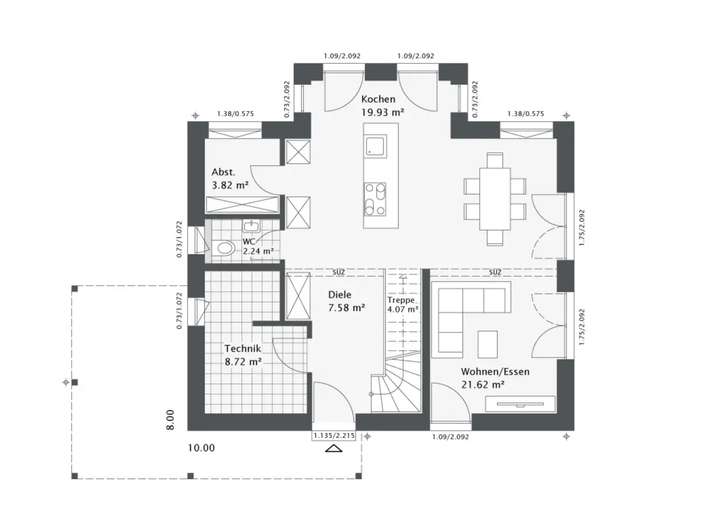
| Haustyp | Einfamilienhaus |
|---|---|
| Wohnfläche ca. | 149 m2 |
| Nutzfläche | 0 m2 |
| Grundstücksfläche | 494 m2 |
| Zimmer | 5 |
| Schlafzimmer | 3 |
| Badezimmer | 1 |
| Anzahl Garage/Stellplatz | 0 |
Kosten
| Kaltmiete |
2.150 € |
|---|---|
| Nebenkosten | keine Angabe |
| Heizkosten | keine Angabe |
| Gesamtmiete | 2.150 € |
Weiter mieten oder doch kaufen?
Wer in Miete wohnt, überweist dem Vermieter im Laufe der Jahre hohe Summen, die sich
auch in die eigenen vier Wände investieren lassen könnten.
Bausubstanz & Energieausweis
| Baujahr | 2026 |
|---|---|
| Qualität der Austattung | Gehoben |
| Heizungsart | Wärmepumpe |
Beschreibung des Objekts
Ausstattung
Jedes unserer Fertighäuser wird speziell für Sie geplant und ist perfekt auf die Anforderungen und Vorgaben Ihres Bauvorhabens angepasst – Bebauungspläne, eine besondere Grundstückslage und die gewünschten Eigenleistungen werden im Detail geprüft und berücksichtigt.
Jedes technik-fertige Danhaus verfügt standardmäßig über:
- massive Klinkerfassade im Standard enthalten, auf Wunsch auch mit Holz- oder Putzfassade lieferbar
- Heizungstechnik auf Ihre Wünsche hin konfigurierbar
- auf Wunsch auch mit Fußbodenheizung mit Kühleffekt im Sommer lieferbar
- Kontrollierte Be- und Entlüftung fertig installiert
- Elektroinstallation fertig hergestellt
- Hochwertige Ausstattung mit Markenfabrikaten
- 3-Scheiben-Wärmeschutzglas
- Rollläden im Standard enthalten, auf Wunsch auch mit Elektroantrieb lieferbar
- Schwimmender Estrich mit Wärmedämmung verlegt
- Sanitär-Rohinstallation (ohne Sanitär-Objekte) enthalten
Diesem Angebot liegt die beliebte Danhaus-Ausbaustufe "technik-fertig" zugrunde. Diese kann selbstverständlich noch entsprechend Ihrer geplanten Eigenleistungen angepasst werden.
Lage
Entdecken Sie die ideale Kombination aus Lebensqualität und Komfort in Ihrem neuen Danhaus. Das Grundstück befindet sich in toller Lage, das sowohl die Ruhe des Grünen als auch die Nähe zur städtischen Infrastruktur bietet. Genießen Sie die Vorzüge einer friedlichen, naturverbundenen Umgebung, die perfekt für Familien oder diejenigen ist, die sich nach einer Oase der Ruhe im Alltag sehnen.
Sonstige Angaben
Bitte beachten Sie, dass diese Anzeige ein exemplarisches Bauvorhaben zur Inspiration darstellt. Das hier gezeigte Haus ist projektiert und das angegebene Grundstück dient lediglich als Beispiel. Aufgrund der aktuellen Marktsituation kann der Preis des Grundstücks variieren. Gerne unterstütze ich Sie bei der Suche nach einem passenden Grundstück.
Sobald ein geeignetes Grundstück erworben wurde, kann die Bauabwicklung zeitnah beginnen. Die gezeigten Bilder enthalten eventuell Sonderausstattungen, die auf Wunsch und gegen eine entsprechende Preisanpassung zusätzlich erhältlich sind.
Nutzen Sie meinen kostenlosen Beratungs-Service und erhalten Sie in einem persönlichen Gespräch alle wichtigen Informationen zu Ihrem Traumprojekt.
Kontaktieren Sie mich noch heute und lassen Sie sich unverbindlich und kostenlos beraten. Ich freue mich darauf, gemeinsam mit Ihnen Ihr individuelles Traumhaus zu planen!
Anbauteile, Carport, Garage und Keller können Extras sein, die als Sonderausstattung angeboten werden. Abbildungen, Grundrisse und Flächenangaben sind beispielhaft und können Extras zeigen. Flächenangaben nach DIN 277.
Adresse
57413 Finnentrop
Interessante Orte
Preis- und Lageinformationen
Preistrend für Bestandsimmobilien in Finnentrop