Willkommen in Ihrem neuen Zuhause – hochwertig gebaut, effizient beheizt, sofort bezugsfrei.
In ruhiger Wohnlage von Wiedemar (Ortsteil Zwochau), nur wenige Minuten nördlich von Leipzig, steht dieses moderne Einfamilienhaus bereit für seinen Erstbezug. Provisionsfrei und bezugsfertig bietet es ideale Bedingungen für Familien, Berufstätige mit Homeoffice oder Paare mit Platzbedarf.
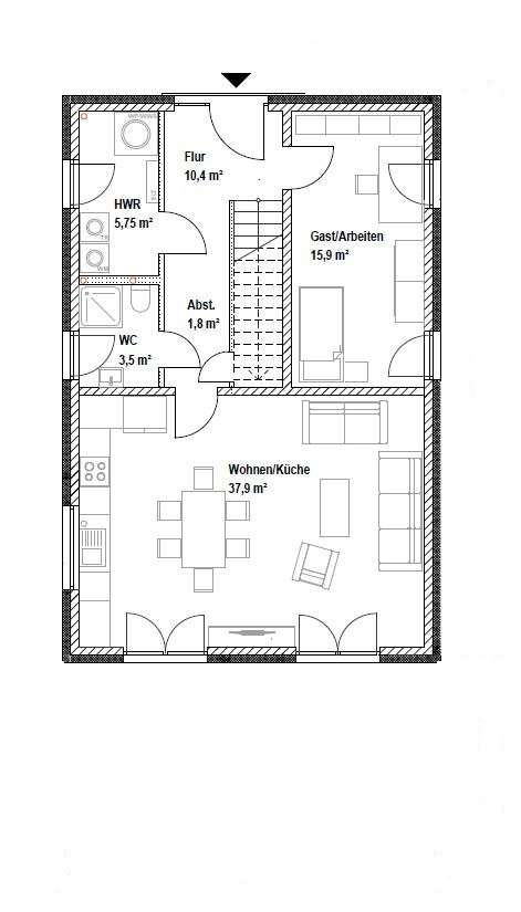
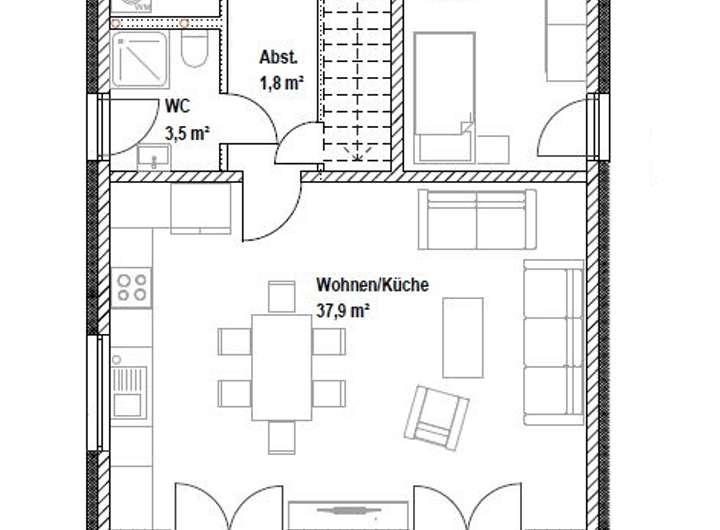
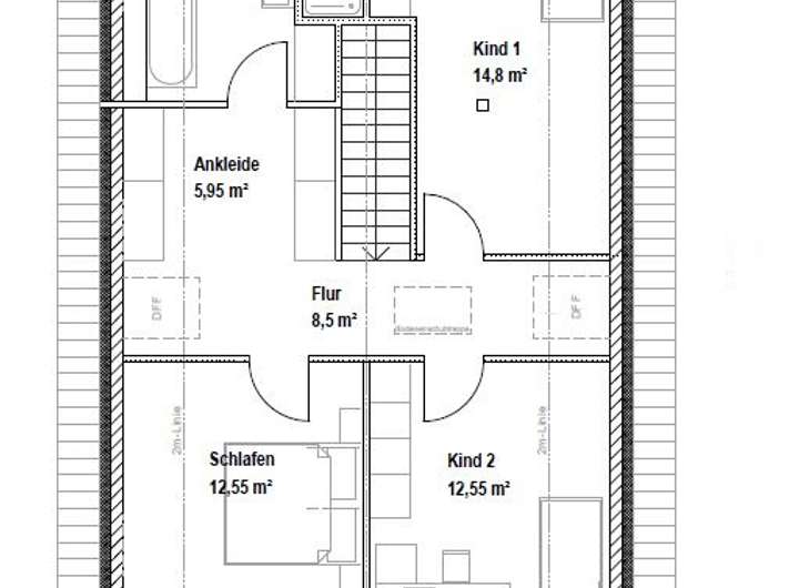
Das Haus überzeugt mit einem durchdachten Grundriss auf ca. 146 m² Wohnfläche, verteilt auf 5 großzügige Zimmer – darunter ein lichtdurchfluteter Wohn-/Essbereich, drei Schlafzimmer und ein separates Arbeitszimmer.
Infos
| Haustyp | Einfamilienhaus |
|---|---|
| Etagenzahl | 2 |
| Wohnfläche ca. | 143 m2 |
| Grundstücksfläche | 451 m2 |
| Bezugsfrei ab | sofort |
| Zimmer | 5 |
| Schlafzimmer | 3 |
| Badezimmer | 2 |
| Haustiere | Nach Vereinbarung |
| Garage/Stellplatz | Carport |
| Anzahl Garage/Stellplatz | 2 |
Kosten
| Kaltmiete |
1.900 € |
|---|---|
| Nebenkosten | + 100 € |
| Heizkosten | keine Angabe |
| Gesamtmiete | 2.000 € (zzgl. Heizkosten) |
| Miete für Garage/Stellplatz | 100 € |
Weiter mieten oder doch kaufen?
Wer in Miete wohnt, überweist dem Vermieter im Laufe der Jahre hohe Summen, die sich
auch in die eigenen vier Wände investieren lassen könnten.
Bausubstanz & Energieausweis
| Baujahr | 2025 |
|---|---|
| Letzte Sanierung | 2025 |
| Objektzustand | Erstbezug |
| Qualität der Austattung | Luxus |
| Heizungsart | Wärmepumpe |
| Wesentliche Energieträger | Strom |
| Energieausweis | liegt vor |
| Energieausweistyp | Bedarfsausweis |
| Energieeffizienzklasse | A+ |
Energieeffizienzklasse A+
- A+
- A
- B
- C
- D
- E
- F
- G
- H
- 0
- 25
- 50
- 75
- 100
- 125
- 150
- 175
- 200
- 225
- >250
Beschreibung des Objekts
Ausstattung
Hochwertige Ausstattung trifft auf zeitgemäße Effizienz:
✔ Moderne Wärmepumpe in Kombination mit
✔ Photovoltaikanlage (12 kW) und
✔ Stromspeicher (20 kW) → besonders niedrige Betriebskosten
✔ Fußbodenheizung in allen Räumen
✔ Dreifach verglaste Fenster und Türen für beste Dämmung
✔ Zwei moderne Bäder:
– Hauptbad mit Badewanne & bodengleicher Dusche
– Gäste-Duschbad im Erdgeschoss
✔ Stufenloser Zugang & praktischer Hauswirtschaftsraum
✔ Carport mit integriertem Abstellraum + zusätzlicher Stellplatz
✔ Bezugsfrei: ab sofort
✔ Provisionsfrei direkt vom Eigentümer
Die Ausstattung erfüllt gehobene Ansprüche an Komfort, Nachhaltigkeit und Zukunftssicherheit – ideal für alle, die heute schon an morgen denken.
Lage
Das Haus liegt ruhig und grün im neu erschlossenen Wohngebiet der Baltzer Straße in Wiedemar (Ortsteil Zwochau) – nur wenige Minuten zur A9 / A14 und ca. 25 Minuten bis Leipzig-Zentrum. Einkaufsmöglichkeiten, Kindergarten, Schule und ärztliche Versorgung sind schnell erreichbar.
Ein besonderes Plus: Der nahe gelegene Zwochauer See lädt zu Spaziergängen, Badeausflügen und kleinen Auszeiten vom Alltag ein – direkt vor der Haustür.
Sonstige Angaben
Dieses Objekt ist provisionsfrei direkt vom Eigentümer erhältlich.
Besichtigungen sind nach Vereinbarung möglich – auch kurzfristig.
VIM Immobilien Management Leipzig
Ihr Ansprechpartner: Marc Bonell
📧 info@vim-leipzig.de
📞 0341 / 90 986 49 – 0
Adresse
Baltzer Straße 3b, 04509 Zwochau
Interessante Orte
Preis- und Lageinformationen
Preistrend für Bestandsimmobilien in Zwochau
>
>