Die Firma Schwabenhaus baut für Sie mit diesem Objekt die eigenen vier Wände. Dieses Haus ist in Planung und verfügbar direkt nach Fertigstellung.
Miet-Kauf wird angeboten. Finanzierung ohne Eigenkapital möglich, bestehende Schulden sind kein Hindernis (Bonität vorausgesetzt). Fragen Sie nach unserem Miet-Kauf-Modell!
Aplerbeck - Neubau Erstbezug
44287 Dortmund
Die vollständige Adresse der Immobilie erhalten Sie vom Anbieter.
Auf Karte anzeigen
Die vollständige Adresse der Immobilie erhalten Sie vom Anbieter.
Infos
| Haustyp | Einfamilienhaus |
|---|---|
| Wohnfläche ca. | 125 m2 |
| Nutzfläche | 0 m2 |
| Grundstücksfläche | 535 m2 |
| Zimmer | 3 |
| Schlafzimmer | 3 |
| Badezimmer | 1 |
| Anzahl Garage/Stellplatz | 0 |
Kosten
| Kaltmiete |
1.850 € |
|---|---|
| Nebenkosten | keine Angabe |
| Heizkosten | keine Angabe |
| Gesamtmiete | 1.850 € |
Weiter mieten oder doch kaufen?
Wer in Miete wohnt, überweist dem Vermieter im Laufe der Jahre hohe Summen, die sich
auch in die eigenen vier Wände investieren lassen könnten.
Bausubstanz & Energieausweis
| Baujahr | 2026 |
|---|---|
| Qualität der Austattung | Gehoben |
| Heizungsart | Wärmepumpe |
Beschreibung des Objekts
Ausstattung
THINK FAST-VOLLENDET PLUS – Bereit für dein Finish.
- Technik, Heizung & Sanitärinstallation sind drin – du kümmerst dich nur um den Feinschliff
- Das Plus mit hochwertigen Sanitärobjekten und Fliesen
- Streichen, Böden verlegen, Türen setzen – du machst, was du willst
- Kein Stress mit Rohbau oder Technik – Fokus nur noch auf den Feinschliff
- Smartes Sparpotenzial – fertig gebaut, individuell finalisiert
- Ideal für Macher mit Anspruch – hochwertige Basis für deinen Stil
Für alle, die mitgestalten wollen – ohne auf Komfort zu verzichten.
Lage
Das Grundstück befindet sich in einer ruhigen Wohngegend im Dortmunder Süden, die sich durch ihre angenehme Nachbarschaft und gute Erreichbarkeit auszeichnet.
Sonstige Angaben
Mit 1.400,- Abtrag / Kaltmiete in die eigenen 4 Wände... ist das möglich? Ohne Eigenkapital?
Ja, aufgrund von Fördermittel des Bundes und des Landes ermöglichen wir jungen Familie den Traum vom Eigenheim schon zu sehr niedrigen monatlichen Abträgen / Kaltmieten.
Unsere Bankpartner finanzieren Sie auch ohne Eigenkapital.
Beispiel:
Finanzierungssumme 500.000,- €
Abtrag: 1.490,- €
Nebenkosten unserer Häuser für Strom, Wasser und Abwasser, Müllabfuhr, Grundbesitzabgaben sowie Versicherungen ca. 250,- €. ( Teilweise abhängig von Verbräuchen )
Lassen sie uns gemeinsam prüfen, ob wir auch Ihren Traum in die Realität umsetzen können und vereinbaren Sie einen kostenfreien Termin.
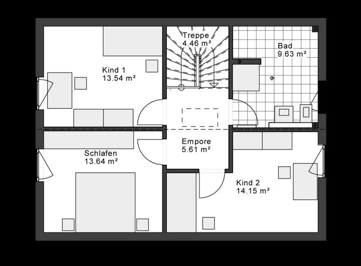
Grundriss
Grundriss EG
>
>
Grundriss OG
>
>
Adresse
44287 Dortmund
Interessante Orte
Preis- und Lageinformationen
Preistrend für Bestandsimmobilien in Aplerbeck