Attraktive Immobilie in Planung. Mietkauf möglich. Machen Sie den Check: Jetzt prüfen ob Sie Miet-Kauf berechtigt sind!
Raus aus der Alt-Immobilie - Rein in die eigenen vier Wände
- Ohne Eigenkapital
- Trotz Schulden
Vereinbaren Sie jetzt Ihren Termin mit unseren Miet-Kauf-Spezialisten!
Nordkirchen Erstbezug
59394 Nordkirchen
Die vollständige Adresse der Immobilie erhalten Sie vom Anbieter.
Auf Karte anzeigen
Die vollständige Adresse der Immobilie erhalten Sie vom Anbieter.
Infos
| Haustyp | Einfamilienhaus |
|---|---|
| Wohnfläche ca. | 170 m2 |
| Nutzfläche | 0 m2 |
| Grundstücksfläche | 500 m2 |
| Zimmer | 6 |
| Schlafzimmer | 4 |
| Badezimmer | 1 |
| Anzahl Garage/Stellplatz | 0 |
Kosten
| Kaltmiete |
1.700 € |
|---|---|
| Nebenkosten | keine Angabe |
| Heizkosten | keine Angabe |
| Gesamtmiete | 1.700 € |
Weiter mieten oder doch kaufen?
Wer in Miete wohnt, überweist dem Vermieter im Laufe der Jahre hohe Summen, die sich
auch in die eigenen vier Wände investieren lassen könnten.
Bausubstanz & Energieausweis
| Baujahr | 2026 |
|---|---|
| Qualität der Austattung | Gehoben |
| Heizungsart | Wärmepumpe |
Beschreibung des Objekts
Ausstattung
Gemeinsam mit Ihnen entwickeln wir von der ersten Idee bis zum fertigen Projekt-Konzept das perfekt zu Ihnen passende Traumhaus, um Ihren individuellen Haustraum zu verwirklichen. Sie erzählen uns was Ihnen wichtig ist, wir beraten Sie, geben wichtige Tipps und Tricks und entwickeln dann für Sie das perfekt passende Haus-Konzept. So wird Ihr neues White and Black Haus auch garantiert zu Ihrem neuen Traumhaus. Es ist uns besonders wichtig, und dies zählen wir auch zu einer unserer ganz großen Stärken, dass Sie von uns bereits im Standard ein Leistungspaket erhalten, das keinerlei Lücken aufweist. Und das von Anfang an. Wir möchten gemeinsam mit Ihnen transparent und realistisch planen und Ihnen unliebsame Überraschungen ersparen. Unser All-Inclusive-Konzept beinhaltet deshalb alle relevanten Hausbau-Details und alle wichtigen Leistungen rund um Ihr neues White and Black Haus.
Mit diesem Konzept beraten wir Sie von Anfang an ehrlich und fair. Wir entwickeln mit Ihnen gemeinsam bedarfs- und budgetorientiert Ihr individuelles Traumhaus made by White and Black Haus.
Lage
Das Einfamilienhaus befindet sich in ruhiger und begehrter Wohnlage von Nordkirchen.
Einkaufsmöglichkeiten, wie Aldi, EdeKa, für den täglichen Bedarf, Ärzte, Kindergärten und Schulen sind nur wenige Minuten entfernt.
Das nahegelegene Schloss Nordkirchen mit seinen vielen Parkflächen lädt zu ausgiebigen Spaziergängen und Radtouren ein.
In ca. 10-15 Minuten erreichen Sie die Autobahnanschlussstellen A1 sowie die B58, B235 und die B236.
Sonstige Angaben
Die Finanzierung Ihres Traumhauses ist ohne Eigenkapital möglich, bestehende Schulden sind kein Hindernis – Bonität vorausgesetzt.
Rufen Sie noch heute an und fragen Sie nach unserem Miet-Kauf-Modell.
Die dargestellten Bilder und Grundrisse sind Beispiele und können Sonderausstattungen enthalten, die nicht im Preis enthalten sind. Die Kaufnebenkosten sind nicht im Preis enthalten. Alle Angaben ohne Gewähr.
Bitte haben Sie Verständnis, dass nur vollständig ausgefüllte Anfragen bearbeitet werden können.
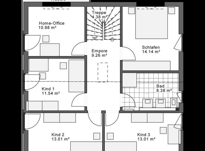
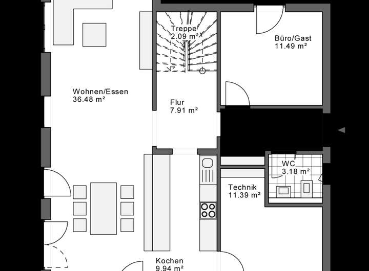
Grundriss
Grundriss EG
>
>
Grundriss DG
>
>
Adresse
59394 Nordkirchen
Interessante Orte
Preis- und Lageinformationen
Preistrend für Bestandsimmobilien in Nordkirchen