Attraktive Immobilie in Planung. Mietkauf möglich. Machen Sie den Check: Jetzt prüfen ob Sie Miet-Kauf berechtigt sind!
Raus aus der Alt-Immobilie - Rein in die eigenen vier Wände
- Ohne Eigenkapital
- Trotz Schulden
Vereinbaren Sie jetzt Ihren Termin mit unseren Miet-Kauf-Spezialisten!
Wickede Erstbezug
58739 Wickede (Ruhr)
Die vollständige Adresse der Immobilie erhalten Sie vom Anbieter.
Auf Karte anzeigen
Die vollständige Adresse der Immobilie erhalten Sie vom Anbieter.
Infos
| Haustyp | Einfamilienhaus |
|---|---|
| Wohnfläche ca. | 140 m2 |
| Nutzfläche | 0 m2 |
| Grundstücksfläche | 400 m2 |
| Zimmer | 4 |
| Schlafzimmer | 3 |
| Badezimmer | 1 |
| Anzahl Garage/Stellplatz | 0 |
Kosten
| Kaltmiete |
1.490 € |
|---|---|
| Nebenkosten | keine Angabe |
| Heizkosten | keine Angabe |
| Gesamtmiete | 1.490 € |
Weiter mieten oder doch kaufen?
Wer in Miete wohnt, überweist dem Vermieter im Laufe der Jahre hohe Summen, die sich
auch in die eigenen vier Wände investieren lassen könnten.
Bausubstanz & Energieausweis
| Baujahr | 2026 |
|---|---|
| Qualität der Austattung | Gehoben |
| Heizungsart | Wärmepumpe |
Beschreibung des Objekts
Ausstattung
Gemeinsam mit Ihnen entwickeln wir von der ersten Idee bis zum fertigen Projekt-Konzept das perfekt zu Ihnen passende Traumhaus, um Ihren individuellen Haustraum zu verwirklichen. Sie erzählen uns was Ihnen wichtig ist, wir beraten Sie, geben wichtige Tipps und Tricks und entwickeln dann für Sie das perfekt passende Haus-Konzept. So wird Ihr neues White and Black Haus auch garantiert zu Ihrem neuen Traumhaus. Es ist uns besonders wichtig, und dies zählen wir auch zu einer unserer ganz großen Stärken, dass Sie von uns bereits im Standard ein Leistungspaket erhalten, das keinerlei Lücken aufweist. Und das von Anfang an. Wir möchten gemeinsam mit Ihnen transparent und realistisch planen und Ihnen unliebsame Überraschungen ersparen. Unser All-Inclusive-Konzept beinhaltet deshalb alle relevanten Hausbau-Details und alle wichtigen Leistungen rund um Ihr neues White and Black Haus.
Mit diesem Konzept beraten wir Sie von Anfang an ehrlich und fair. Wir entwickeln mit Ihnen gemeinsam bedarfs- und budgetorientiert Ihr individuelles Traumhaus made by White and Black Haus.
Lage
In bester Lage von Wickede an der Ruhr bieten wir Ihnen ein attraktives Baugrundstück an.
Sonstige Angaben
Vereinbaren Sie einen persönlichen Beratungstermin, um über unser Miet-Kauf-Modell zu sprechen und Ihren Haustraum umzusetzen.
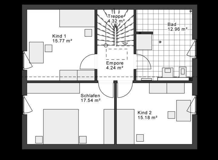
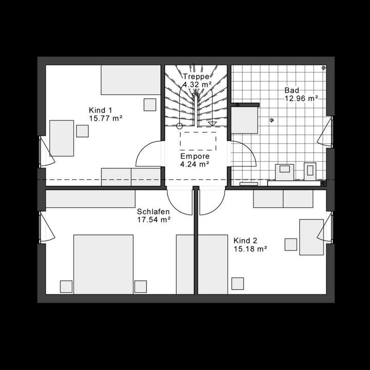
Bitte beachten Sie, dass die dargestellten Bilder und Grundrisse nur beispielhaft sind und unter Umständen Sonderbauteile enthalten, die nicht im aufgerufenen Preis inkludiert sind.
Haben Sie außerdem Verständnis dafür, dass erst nach dem persönlichen Gespräch weitere Details zu dem angebotenen Grundstück bekanntgegeben werden und dass nur vollständige Anfragen bearbeitet werden können.
Grundriss
Grundriss EG
>
>
Grundriss OG
>
>
Adresse
58739 Wickede (Ruhr)
Interessante Orte
Preis- und Lageinformationen
Preistrend für Bestandsimmobilien in Wickede (Ruhr)