Attraktive Immobilie in Planung. Mietkauf möglich. Machen Sie den Check: Jetzt prüfen ob Sie Miet-Kauf berechtigt sind!
Raus aus der Alt-Immobilie - Rein in die eigenen vier Wände
- Ohne Eigenkapital
- Trotz Schulden
Vereinbaren Sie jetzt Ihren Termin mit unseren Miet-Kauf-Spezialisten!
Bittermark- ERSTBEZUG
44229 Dortmund
Die vollständige Adresse der Immobilie erhalten Sie vom Anbieter.
Auf Karte anzeigen
Die vollständige Adresse der Immobilie erhalten Sie vom Anbieter.
Infos
| Haustyp | Einfamilienhaus |
|---|---|
| Wohnfläche ca. | 145 m2 |
| Nutzfläche | 0 m2 |
| Grundstücksfläche | 620 m2 |
| Zimmer | 4 |
| Schlafzimmer | 3 |
| Badezimmer | 1 |
| Anzahl Garage/Stellplatz | 0 |
Kosten
| Kaltmiete |
2.100 € |
|---|---|
| Nebenkosten | keine Angabe |
| Heizkosten | keine Angabe |
| Gesamtmiete | 2.100 € |
Weiter mieten oder doch kaufen?
Wer in Miete wohnt, überweist dem Vermieter im Laufe der Jahre hohe Summen, die sich
auch in die eigenen vier Wände investieren lassen könnten.
Bausubstanz & Energieausweis
| Baujahr | 2026 |
|---|---|
| Qualität der Austattung | Gehoben |
| Heizungsart | Wärmepumpe |
Beschreibung des Objekts
Ausstattung
Jedes unserer Fertighäuser wird speziell für Sie geplant und ist perfekt auf die Anforderungen und Vorgaben Ihres Bauvorhabens angepasst – Bebauungspläne, eine besondere Grundstückslage und die gewünschten Eigenleistungen werden im Detail geprüft und berücksichtigt.
Jedes Schwabenhaus verfügt standardmäßig über:
- Fussbodenheizung
- Luft-Wasser-Wärme-Pumpe
- 3-Scheiben-Wärmeschutzglas
- elektrische Rollladensteuerung*
- Schwimmender Estrich mit Wärmedämmung
- Sanitär-Objekte von Markenherstellern wie z. B. Villeroy & Boch usw. sowie Echtglas-Duschabtrennung
- 5 Jahre Gewährleistung nach BGB und 30 Jahre Garantie auf die Grundkonstruktion
Ihre Eigenleistung: Malern, Bodenbeläge in Schlaf- und Wohnräumen sowie Inntüren
Lage
Der Ortsteil Bittermark ist ein gefragter, im Süden gelegener Stadtteil von Dortmund mit einer gewachsenen Bebauung von gepflegten Einfamilienhäusern und Eigentumsanlagen. Die sehr gute Infrastruktur bietet alle Annehmlichkeiten des täglichen Lebens. Kindergärten und Schulen, die teilweise fußläufig zu erreichen sind, alle Geschäfte für den täglichen Bedarf, Ärzte, Apotheken, Banken, eine Auswahl an Cafés und Restaurants und ein großes Angebot an Sport- und Freizeitmöglichkeiten z. B. der Dortmunder Stadtforst der bis zur Hohensyburg führt.
Das Zentrum von Dortmund - Hombruch wo zwei Mal wöchentlich ein Markt stattfindet wird ebenfalls sehr gerne besucht. Die Innenstadt von Dortmund ist über nahegelegene, öffentliche Verkehrsmittel sowie mit dem PKW in nur wenigen Minuten zu erreichen. Außerdem besteht eine perfekte Anbindung an das Bundesautobahnnetz.
Sonstige Angaben
Die Finanzierung Ihres Traumhauses ist ohne Eigenkapital möglich, bestehende Schulden sind kein Hindernis – Bonität vorausgesetzt.
Rufen Sie noch heute an und fragen Sie nach unserem Miet-Kauf-Modell.
Die dargestellten Bilder und Grundrisse sind Beispiele und können Sonderausstattungen enthalten, die nicht im Preis enthalten sind. Die Kaufnebenkosten sind nicht im Preis enthalten. Alle Angaben ohne Gewähr.
Bitte haben Sie Verständnis, dass nur vollständig ausgefüllte Anfragen bearbeitet werden können.
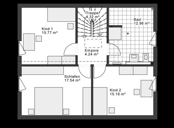
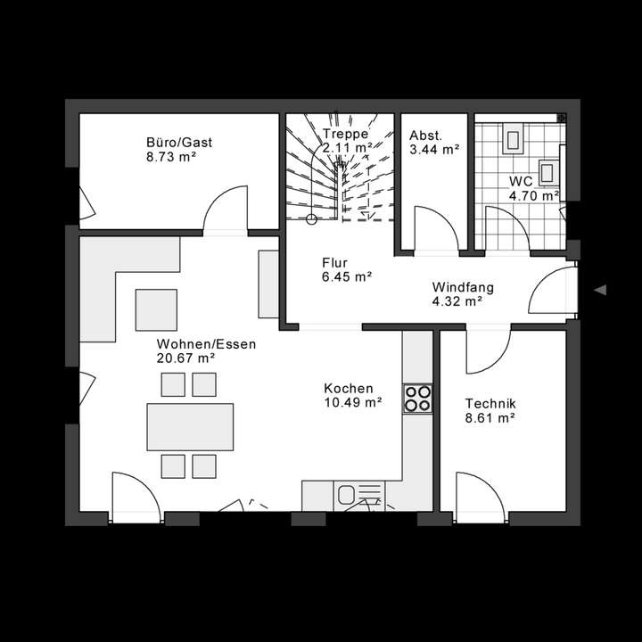
Grundriss
Grundriss EG
>
>
Grundriss OG
>
>
Adresse
44229 Dortmund
Interessante Orte
Preis- und Lageinformationen
Preistrend für Bestandsimmobilien in Bittermark