Lassen Sie sich von diesem Wohntraum überzeugen. Dieser Neubau Bungalow wurde 2025 von einem renommierten Bauunternehmen aus der Region auf einem zentral gelegenen Grundstück in Greetsiel schlüsselfertig errichtet. Die äußerst ansprechende Raumaufteilung sowie die bodentiefen Fenster, lassen die ca. 87qm große Wohnfläche lichtdurchflutet und weitläufig erscheinen. Das pflegeleicht angelegte Grundstück bemisst ca. 300qm. Jede Bungalowhaushälfte verfügt über einen eigenen PKW-Einstellplatz und eine nach Westen ausgerichtete Terrasse. Die Küche ist als offene Wohnküche geplant und lädt zum gemeinschaftlichen Kochen und Verweilen ein. Der über die Bodentreppe erreichbare Dachboden ist ebenfalls sehr großflächig und bietet Ihnen ausreichend Abstellmöglichkeiten. Die Immobilie wird nach den aktuellen, energetischen Richtlinien erstellt. Standardmäßig verfügt der Bungalow über folgende Ausstattung: Elektrische Jalousien, Dreifachverglaste Fenster, Fußbodenheizung, Raufaser tapeziert, hochwertige Fliesen etc. Aufgrund der barrierefreien Anordnung der Räumlichkeiten eignet sich dieser Bungalow ideal als Altersruhesitz. Beheizt wird das Objekt durch eine Luft-Wärme-Pumpe. Ein Objekt für Menschen die das "ebenerdige Wohnen" bevorzugen. Zögern Sie nicht uns zu kontaktieren und vereinbaren Sie gerne einen.
Vermietungsbedingungen: Im Sinne der Vermieter benötigen wir grundsätzlich eine SCHUFA-Auskunft und erwarten Ihre Verdienstbescheinigung der letzten 3 Monate.
Greetsiel-Idealer Altersruhesitz! Schlüsselfertiger Neubau-Bungalow 01 mit Terrasse und Gartenanlage
26736 Krummhörn
Die vollständige Adresse der Immobilie erhalten Sie vom Anbieter.
Auf Karte anzeigen
Die vollständige Adresse der Immobilie erhalten Sie vom Anbieter.
Infos
| Haustyp | Einfamilienhaus |
|---|---|
| Wohnfläche ca. | 87 m2 |
| Grundstücksfläche | 300 m2 |
| Bezugsfrei ab | nach Absprache |
| Zimmer | 3 |
| Schlafzimmer | 2 |
| Badezimmer | 1 |
Kosten
| Kaltmiete |
1.200 € |
|---|---|
| Nebenkosten | + 120 € |
| Heizkosten | + 130 € |
| Gesamtmiete | 1.320 € (zzgl. Heizkosten) |
| Kaution o. Genossenschaftsanteile | 2.400,00 |
Weiter mieten oder doch kaufen?
Wer in Miete wohnt, überweist dem Vermieter im Laufe der Jahre hohe Summen, die sich
auch in die eigenen vier Wände investieren lassen könnten.
Bausubstanz & Energieausweis
| Baujahr | 2025 |
|---|---|
| Objektzustand | Erstbezug |
| Heizungsart | Wärmepumpe |
| Energieausweis | liegt vor |
| Energieausweistyp | Bedarfsausweis |
| Energieverbrauchskennwert | 27,0 kWh/(m²*a) |
| Energieeffizienzklasse | A+ |
27,0
kWh/(m²*a)
Energieeffizienzklasse A+
- A+
- A
- B
- C
- D
- E
- F
- G
- H
- 0
- 25
- 50
- 75
- 100
- 125
- 150
- 175
- 200
- 225
- >250
Beschreibung des Objekts
Ausstattung
Aufstellung der Besonderheiten:
-Neubau Erstbezug
-Hochwertige Fliesen
-Malerarbeiten (Raufaser)
-PKW-Einstellplatz
-Dreifachverglaste Fenster mit elektrischen Jalousien
-Fußbodenheizung komplett
-Terrasse und Einfahrt gepflastert
-Objekt verfügt über einen Satellitenanschluss
-Luft/ Wasser Wärmepumpe - keine Gaskosten
-Wallbox 11kW pro Einheit
-Rasenmäh-Service (Mähroboter)
-Hochwertiges Metallgerätehaus Biohort, Grundfläche ca. 4qm pro Einheit
Lage
26736 Krummhörn OT. Greetsiel (Zentrale, ruhige Wohnlage, unmittelbare Nähe zu den Zwillingsmühlen/Hafen, ausgewogene Infrastruktur, Einkaufsmöglichkeiten in unmittelbarer Nähe, fußläufige Entfernung zum Fischereihafen/Ortskern)
Sonstige Angaben
Grundstück: ca. 300qm (Gepflasterte Auffahrt und Terrasse, PKW-Einstellplatz)
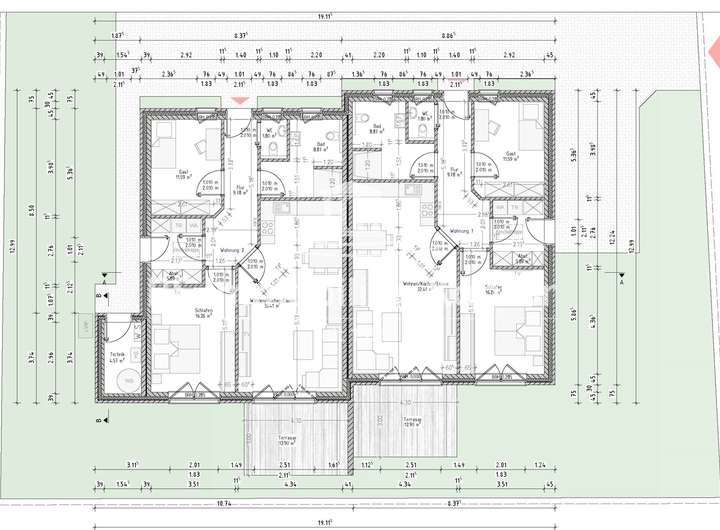
Gebäude: EG: Flur/Diele, Gäste WC, Duschbad mit WC, Gästezimmer, HWR, offener Wohn-/Essbereich mit Küchenanschlüssen und Zugang zur Terrasse, Abstellraum, Schlafzimmer
DG: Stauraum
Gesamt: Wohnfläche ca. 87qm
Kaution: 2.400,00 €
Bezugsfrei: Q1 2026
Betriebskosten: 120,00€
Heizungskosten: 130,00€
Grundriss
EG
>
>
Adresse
26736 Krummhörn
Interessante Orte
Preis- und Lageinformationen
Preistrend für Bestandsimmobilien in Krummhörn