Erstbezug! Exklusives Neubau-Reihenhaus in bevorzugter Lage von Dorfen, nur wenige Gehminuten vom Bahnhof entfernt. Dieses moderne Zuhause vereint zeitgemäßes Wohnen mit höchsten Ansprüchen an Energieeffizienz und Nachhaltigkeit.
Das Haus wurde nach dem zukunftsweisenden QNG (Qualitätssiegel Nachhaltiges Gebäude) & KfW 40 Standarderrichtet und überzeugt durch eine erstklassige Bauqualität. Die hocheffiziente Gebäudehülle und moderne Haustechnik garantieren minimale Heiz- und Betriebskosten – ein echter Vorteil in Zeiten steigender Energiepreise.
Auf drei großzügigen Ebenen verteilen sich ca. 120 m² durchdacht gestaltete Wohnfläche. Besonderes Highlight: Die hochwertige Einbauküche mit namhaften Markengeräten ist bereits installiert und im Mietpreis inbegriffen – Sie können direkt einziehen und sich wohlfühlen!
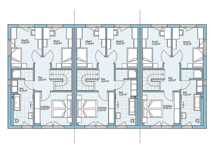
Das lichtdurchflutete Erdgeschoss mit offenem Wohn-/Ess-/Kochbereich lädt zum gemeinsamen Leben ein, während im Obergeschoss drei komfortable Schlafzimmer Rückzugsmöglichkeiten für die ganze Familie bieten. Das ausgebaute Dachgeschoss mit großzügigem Studio-Bereich eröffnet vielfältige Nutzungsmöglichkeiten – ob als Home-Office, Hobbyraum oder zusätzlicher Wohnbereich.
Der eigene Garten sowie zwei Stellplätze runden das attraktive Gesamtpaket ab.
Eckdaten
Wohnfläche: ca. 120 m²
Zimmer: 5 Zimmer auf 3 Ebenen (EG, OG, DG)
Schlafzimmer: 3
Grundstück: Überschaubarer Garten
Baujahr: Neubau / Erstbezug
Energiestandard: QNG & KfW 40
Verfügbar ab: [Datum einfügen]
Raumaufteilung
Erdgeschoss:
Großzügiger Wohn-/Ess-/Kochbereich (ca. 36 m²) mit hochwertiger Einbauküche
Gäste-WC
Garderobe
Diele
HWR/Technikraum
Abstellraum
Obergeschoss:
3 Schlafzimmer
Badezimmer
Flur
Dachgeschoss:
Studio/Multifunktionsraum
Abstellraum
Ausstattung & Highlights
✓ Erstbezug – Neubau in moderner Architektur
✓ QNG & KfW 40 Standard – höchste Energieeffizienz
✓ Hochwertige Einbauküche mit Markengeräten inklusive
✓ Sehr niedrige Heiz- und Betriebskosten
Neubau-Reihenhaus in Dorfen – Bahnhofsnähe | QNG & KfW40 Standard
84405 Dorfen
Die vollständige Adresse der Immobilie erhalten Sie vom Anbieter.
Auf Karte anzeigen
Die vollständige Adresse der Immobilie erhalten Sie vom Anbieter.
Infos
| Haustyp | Reiheneckhaus |
|---|---|
| Etagenzahl | 3 |
| Wohnfläche ca. | 120 m2 |
| Grundstücksfläche | 300 m2 |
| Bezugsfrei ab | 1.3.2026 |
| Zimmer | 5 |
| Schlafzimmer | 3 |
| Badezimmer | 1 |
| Haustiere | Nach Vereinbarung |
| Garage/Stellplatz | Außenstellplatz |
| Anzahl Garage/Stellplatz | 2 |
Kosten
| Kaltmiete |
1.990 € |
|---|---|
| Nebenkosten | + 200 € |
| Heizkosten | in Nebenkosten enthalten |
| Gesamtmiete | 2.190 € |
| Miete für Garage/Stellplatz | 50 € |
| Kaution o. Genossenschaftsanteile | 5.970,00 |
Weiter mieten oder doch kaufen?
Wer in Miete wohnt, überweist dem Vermieter im Laufe der Jahre hohe Summen, die sich
auch in die eigenen vier Wände investieren lassen könnten.
Bausubstanz & Energieausweis
| Baujahr | 2026 |
|---|---|
| Objektzustand | Erstbezug |
| Qualität der Austattung | Gehoben |
| Heizungsart | Wärmepumpe |
| Wesentliche Energieträger | Solarheizung |
| Energieausweis | liegt zur Besichtigung vor |
Beschreibung des Objekts
Lage
Dorfen, eine Stadt mit Charme und guter Infrastruktur, bietet eine angenehme Wohnqualität. Die zentrale Lage ermöglicht eine gute Anbindung an öffentliche Verkehrsmittel und Einkaufsmöglichkeiten für den täglichen Bedarf. Zahlreiche Freizeitmöglichkeiten in der Umgebung laden zu Aktivitäten im Grünen ein.
Grundriss
Grundriss DG
>
>
Grundriss EG
>
>
Grundriss OG
>
>
Adresse
84405 Dorfen
Interessante Orte
Preis- und Lageinformationen
Preistrend für Bestandsimmobilien in Dorfen