Diese gepflegte Doppelhaushälfte in ruhiger Wohnlage von Schwarme bietet komfortables Wohnen für Familien, Paare oder alle, die ein großzügiges Zuhause mit Wohlfühlcharakter suchen. Das Haus überzeugt durch eine durchdachte Raumaufteilung, zwei Badezimmer, eine Einbauküche sowie einen schönen Garten mit Teich. Der helle Wohn- und Essbereich mit direktem Zugang zum Garten bildet das Herzstück des Hauses und sorgt für eine angenehme Wohnatmosphäre.
Ausstattung
• Einbauküche (EBK)
• 2 Badezimmer
• Carport direkt am Haus
• Sonniger Garten mit Terrasse
• Gartenteich
• Ruhige Wohnsiedlung
• Helle Räume
• Gute Grundrissaufteilung
Das Haus eignet sich ideal für Familien oder Paare, die Wert auf eine ruhige Lage und einen schönen Garten legen. Haustiere sind nach Absprache möglich.
Alle Angaben erfolgen nach bestem Wissen, eine Gewähr für die Vollständigkeit wird nicht übernommen.
Moderne Doppelhaushälfte in Schwarme mit viel Platz & schönem Garten
27327 Schwarme
Die vollständige Adresse der Immobilie erhalten Sie vom Anbieter.
Auf Karte anzeigen
Die vollständige Adresse der Immobilie erhalten Sie vom Anbieter.
Infos
| Haustyp | Doppelhaushaelfte |
|---|---|
| Etagenzahl | 2 |
| Wohnfläche ca. | 134 m2 |
| Grundstücksfläche | 572 m2 |
| Bezugsfrei ab | 1.3.2026 |
| Zimmer | 5 |
| Schlafzimmer | 3 |
| Badezimmer | 2 |
| Haustiere | Nach Vereinbarung |
| Garage/Stellplatz | Carport |
| Anzahl Garage/Stellplatz | 2 |
Kosten
| Kaltmiete |
1.350 € |
|---|---|
| Nebenkosten | + 250 € |
| Heizkosten | in Nebenkosten enthalten |
| Gesamtmiete | 1.600 € |
| Kaution o. Genossenschaftsanteile | 2700 |
Weiter mieten oder doch kaufen?
Wer in Miete wohnt, überweist dem Vermieter im Laufe der Jahre hohe Summen, die sich
auch in die eigenen vier Wände investieren lassen könnten.
Bausubstanz & Energieausweis
| Baujahr | 1998 |
|---|---|
| Objektzustand | Gepflegt |
| Qualität der Austattung | Normal |
| Heizungsart | Gas-Heizung |
| Wesentliche Energieträger | Gas |
| Energieausweis | liegt zur Besichtigung vor |
Beschreibung des Objekts
Lage
Die Immobilie befindet sich in einer ruhigen Wohnsiedlung von Schwarme. Die Umgebung ist familienfreundlich und geprägt von gepflegten Häusern und netten Nachbarn. Einkaufsmöglichkeiten, Schulen, Kindergärten sowie Freizeitangebote sind in wenigen Minuten erreichbar. Eine gute Anbindung an die umliegenden Städte macht die Lage besonders attraktiv.
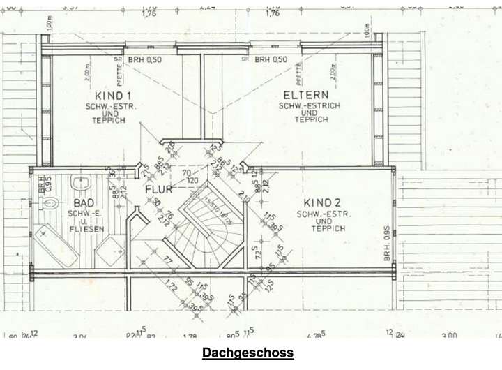
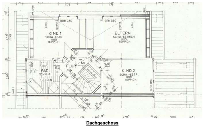
Grundriss
Erdgeschoss
>
>
Dachgeschoss
>
>
Adresse
27327 Schwarme
Interessante Orte
Preis- und Lageinformationen
Preistrend für Bestandsimmobilien in Schwarme