Wir präsentieren Ihnen eine exklusive Neubau Doppelhaushälfte im idyllischen Bottrop-Kirchhellen.
Dieses moderne und stilvolle Haus bietet auf 121,5 m² Wohnfläche höchsten Wohnkomfort und ist ideal für Familien und Paare, die Wert auf Qualität und eine ruhige Wohnlage mit optimaler Anbindung legen.
Wohnfläche und Räume:
Das Haus erstreckt sich über zwei Etagen und bietet großzügige, lichtdurchflutete Räume und einen wundervollen Garten.
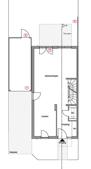
Im Erdgeschoss befindet sich ein offener Wohn- und Essbereich mit direktem Zugang zur Terrasse und dem Garten. Die offene Küche lässt keine Wünsche offen. Ein Gäste-WC rundet das Angebot im Erdgeschoss ab.
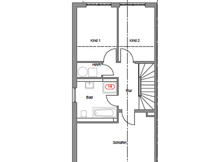
Im Obergeschoss befinden sich drei geräumige Schlafzimmer sowie ein luxuriöses Badezimmer mit bodentiefer Dusche, Badewanne und WC .
Grundstück:
Das 232 m² große Grundstück ist liebevoll angelegt und mit einer gepflegten Hecke umgeben, die für Privatsphäre sorgt. Der Garten bietet ausreichend Platz für Freizeitaktivitäten und Entspannung im Freien. Eine Terrasse lädt zu gemütlichen Abenden mit Familie und Freunden ein.
Lage:
Die Doppelhaushälfte befindet sich in einer ruhigen und familienfreundlichen Wohngegend in Bottrop Kirchhellen. Schulen, Kindergärten und Einkaufsmöglichkeiten sind in wenigen Minuten erreichbar. Die Anbindung an den öffentlichen Nahverkehr sowie die Autobahn sind optimal, sodass Sie schnell und bequem in die umliegenden Städte gelangen.
Besondere Merkmale:
121,5 m² Wohnfläche
235 m² Grundstück
Garten eingefriedet
Hochwertige Ausstattung und moderne Architektur
Offener Wohn- und Essbereich
3 Schlafzimmer, Badezimmer mit Dusche und Badewanne
Garage mit Zugang zum Garten
Terrasse und gepflegter Garten
Ruhige und familienfreundliche Lage
Neubau Doppelhaushälfte in A Lage - familienfreundlich geschnitten
Pater-Dieckmann-Straße 26a,
46244 Bottrop
Auf Karte anzeigen
Infos
| Haustyp | Doppelhaushaelfte |
|---|---|
| Etagenzahl | 2 |
| Wohnfläche ca. | 121 m2 |
| Nutzfläche | 15 m2 |
| Grundstücksfläche | 232 m2 |
| Bezugsfrei ab | 01.04. 2026 |
| Zimmer | 4 |
| Schlafzimmer | 3 |
| Badezimmer | 1 |
| Garage/Stellplatz | Garage |
| Anzahl Garage/Stellplatz | 1 |
Kosten
| Kaltmiete |
2.050 € |
|---|---|
| Nebenkosten | + 400 € |
| Heizkosten | in Nebenkosten enthalten |
| Gesamtmiete | 2.450 € |
| Miete für Garage/Stellplatz | 150 € |
| Kaution o. Genossenschaftsanteile | 3 Kaltmieten |
Weiter mieten oder doch kaufen?
Wer in Miete wohnt, überweist dem Vermieter im Laufe der Jahre hohe Summen, die sich
auch in die eigenen vier Wände investieren lassen könnten.
Bausubstanz & Energieausweis
| Baujahr | 2024 |
|---|---|
| Objektzustand | Neuwertig |
| Qualität der Austattung | Gehoben |
| Heizungsart | Fernwärme |
| Wesentliche Energieträger | Nahwärme |
| Energieausweis | liegt vor |
| Energieausweistyp | Verbrauchsausweis |
| Energieverbrauchskennwert | 71,0 kWh/(m²*a) |
| Energieeffizienzklasse | B |
71,0
kWh/(m²*a)
Energieeffizienzklasse B
- A+
- A
- B
- C
- D
- E
- F
- G
- H
- 0
- 25
- 50
- 75
- 100
- 125
- 150
- 175
- 200
- 225
- >250
Beschreibung des Objekts
Ausstattung
Doppelhaushälfte in Bottrop Kirchhellen, Neubaugebiet Dorfheide:
- Neubau nach aktuellen Standards
- Rollladen
- Nahwärme
- Bad mit Badewanne und Bodentiefer Dusche
- Garage + Stellplatz
- hochwertiger Vinylboden in Holzoptik in allen Wohn- und Schlafräumen
- Garten + Terrasse zur alleinigen Nutzung
Lage
In unmittelbarer Nähe, nur 600 Meter entfernt, finden Sie einen Rewe Supermarkt, der Ihnen eine bequeme Versorgung mit Lebensmitteln und anderen Produkten des täglichen Bedarfs ermöglicht. Für Familien mit kleinen Kindern ist die Kita ebenfalls nur 600 Meter entfernt, während der städtische Kindergarten in einer Entfernung von nur 400 Metern liegt, was kurze Wege und eine stressfreie Organisation des Alltags garantiert.
Die Grundschule ist in 2 Kilometern erreichbar und bietet eine gute Bildungsanbindung für Ihre Kinder. Darüber hinaus gibt es in der Umgebung weitere Geschäfte des täglichen Bedarfs, die Ihnen eine Vielzahl von Einkaufsmöglichkeiten bieten.
Die Anbindung an die Autobahnen ist optimal: Die A31 sowie die A2/A3 sind schnell erreichbar und ermöglichen Ihnen eine flexible und schnelle Verbindung zu den umliegenden Städten und Regionen. Auch der öffentliche Nahverkehr ist gut ausgebaut, sodass Sie bequem und unkompliziert mit Bus und Bahn unterwegs sein können.
Kirchhellen zeichnet sich durch seine ruhige und naturnahe Lage aus, die gleichzeitig eine gute Erreichbarkeit aller wichtigen Einrichtungen und Verkehrsanbindungen gewährleistet. Hier finden Sie die perfekte Balance zwischen einem idyllischen Wohnort und der Nähe zu städtischen Annehmlichkeiten.
Sonstige Angaben
- 3 Jahre Mindestmietzeit
- Staffelmiete je 25 € Erhöhung der Kaltmiete nach 2 Jahren, 4 Jahren, 6 Jahren
- Bitte füllen sie die Selbstauskunft anbei aus
- Vermietung von familiengeführtem Eigentum
Weitere Dokumente
8. 2025 SelbstauskunftGrundriss
PDS26a_EG
>
>
PDS 26a_1.OG
>
>
PDS 26a_Ansicht
>
>
Adresse
Pater-Dieckmann-Straße 26a, 46244 Bottrop
Interessante Orte
Preis- und Lageinformationen
Preistrend für Bestandsimmobilien in Kirchhellen-Mitte