Finden Sie Ihr neues Zuhause in diesem charmanten und modernisierten Einfamilienhaus zur Miete. Mit einer Wohnfläche von 62,46 m² bietet dieses Haus eine Kompaktheit, jedoch mit allem, was zum Wohnen erforderlich ist.
Das Haus verfügt über 2 Zimmer, 1 Schlafzimmer und 1 Badezimmer. Die moderne Ausstattung und das durchdachte Design schaffen eine einladende Atmosphäre. Die Heizung wird durch eine effiziente Gasheizung gewährleistet, die für eine angenehme Wärme im gesamten Haus sorgt.
Ein besonderes Highlight ist der private Innenhof, der Ihnen einen Rückzugsort direkt vor Ihrer Haustür bietet. Hier können Sie entspannen, grillen oder einfach die Sonne genießen. Zusätzlich steht Ihnen optional eine Garage zur Verfügung, die nicht nur Schutz für Ihr Fahrzeug bietet, sondern auch zusätzlichen Stauraum. Sie können diese wahlweise zusätzlich mieten.
Die Lage in Burg (bei Magdeburg) verbindet ländliche Ruhe mit urbaner Nähe. Sie profitieren von einer ruhigen Wohngegend und einer guten Anbindung an die Stadt Magdeburg. Schulen, Einkaufsmöglichkeiten und öffentliche Verkehrsmittel sind bequem erreichbar.
Dieses Einfamilienhaus ist die perfekte Wahl für alle, die eine moderne und komfortable Wohnmöglichkeit in einer schönen Umgebung suchen.
Kleines modernisiertes Haus zur Vermietung in zentraler Lage von Burg
39288 Burg
Die vollständige Adresse der Immobilie erhalten Sie vom Anbieter.
Auf Karte anzeigen
Die vollständige Adresse der Immobilie erhalten Sie vom Anbieter.
Infos
| Haustyp | Einfamilienhaus |
|---|---|
| Wohnfläche ca. | 62 m2 |
| Grundstücksfläche | 60 m2 |
| Zimmer | 2 |
| Schlafzimmer | 1 |
| Badezimmer | 1 |
| Garage/Stellplatz | Garage |
Kosten
| Kaltmiete |
700 € |
|---|---|
| Nebenkosten | + 150 € |
| Heizkosten | in Nebenkosten enthalten |
| Gesamtmiete | 850 € |
| Kaution o. Genossenschaftsanteile | 2100 |
Weiter mieten oder doch kaufen?
Wer in Miete wohnt, überweist dem Vermieter im Laufe der Jahre hohe Summen, die sich
auch in die eigenen vier Wände investieren lassen könnten.
Bausubstanz & Energieausweis
| Baujahr | 1960 |
|---|---|
| Objektzustand | Modernisiert |
| Qualität der Austattung | Normal |
| Wesentliche Energieträger | Gas |
| Energieausweis | liegt vor |
| Energieausweistyp | Verbrauchsausweis |
| Energieeffizienzklasse | D |
Energieeffizienzklasse D
- A+
- A
- B
- C
- D
- E
- F
- G
- H
- 0
- 25
- 50
- 75
- 100
- 125
- 150
- 175
- 200
- 225
- >250
Beschreibung des Objekts
Lage
Entdecken Sie Ihr neues Zuhause in der charmanten Kleinstadt Burg, nur wenige Kilometer von Magdeburg entfernt. Diese Immobilie befindet sich in einer ruhigen Wohngegend, die sowohl Entspannung als auch Nähe zu urbanen Annehmlichkeiten bietet.
- Zentrale Lage: Nur 15 Autominuten von Magdeburg entfernt, genießen Sie die Vorteile einer Kleinstadtatmosphäre mit schnellem Zugang zu größeren Städten.
- Nahe gelegene Einrichtungen: Schulen, Kindergärten und Einkaufsmöglichkeiten sind fußläufig erreichbar.
- Ausgezeichnete Verkehrsanbindung: Die nahe gelegene Autobahn und der Bahnhof ermöglichen eine bequeme Anreise in alle Richtungen.
- Grüne Umgebung: Genießen Sie die Nähe zu Parks und Naturgebieten, ideal für Spaziergänge und Outdoor-Aktivitäten.
- Historisches Flair: Burg besticht durch seine historische Altstadt mit malerischen Straßen und gut erhaltenen Gebäuden.
Erleben Sie das Beste aus beiden Welten – ländliche Idylle und städtische Bequemlichkeit – in dieser erstklassigen Lage.
Sonstige Angaben
Alle Angaben in diesem Exposé stammen vom Vermieter und sind uns vom Vermieter freigegeben worden. Wir übernehmen deshalb keine Haftung für diese Angaben.
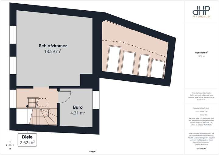
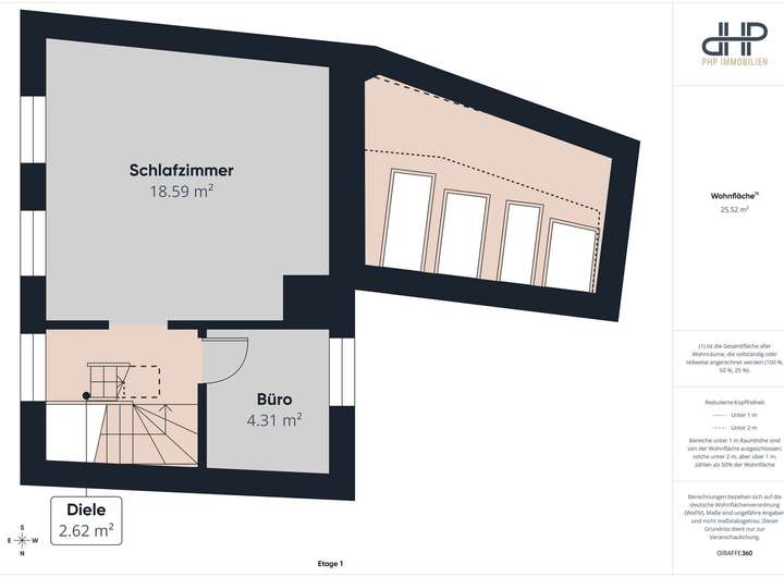
Grundriss
Grundriss Erdgeschoss
>
>
Grundriss Obergeschoss
>
>
Grundriss Dachboden
>
>
Adresse
39288 Burg
Interessante Orte
Preis- und Lageinformationen
Preistrend für Bestandsimmobilien in Burg