Dieses frisch sanierte Einfamilienhaus in Dreieich-Buchschlag mit 9 Zimmern verteilt sich auf über 200 qm und verfügt über einen großzügigen Garten mit Terrasse sowie elekt. Markise und optional einer Garage direkt am Haus.
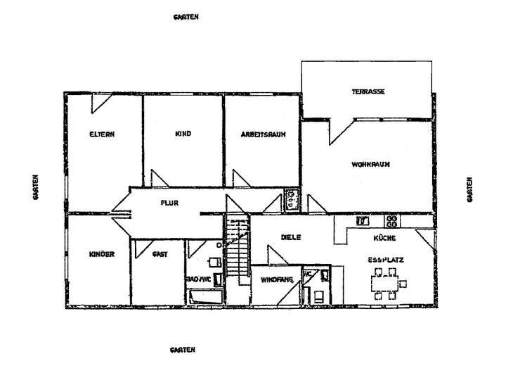
Das Haus bietet viel Raum für individuelle Gestaltungs- und Aufteilungsmöglichkeiten. Sobald man hereintritt, besticht der großzügige Essbereich mit einer hochwertigen neu ausgestatteten Einbauküche mit E-Geräten. Gleich nebenan finden Sie den Wohnbereich mit Zugang zur Sonnenterrasse und dem über 300 qm großen Garten.
Desweiteren befinden sich auf dieser Ebene 5 Zimmer, die man individuell nutzen kann, ob als Schlafzimmer, Arbeitszimmer, Kinder oder Gästezimmer . Das Badezimmer ist mit einer Badewanne ausgestattet sowie einem Handtuchheizkörper und einem großzügigem Wandspiegel. Im Eingangsbereich befindet sich noch ein Gäste-WC und ein weiteres Badezimmer mit Dusche befindet sich im unteren Geschoss.
Über die Treppe erreichen Sie die zweite Ebene im unteren Geschoss. Hier erwarten Sie zwei größere Räume, welche man vielfältig zum Beispiel als Hobbyraum oder Fitnessraum nutzen kann.
Zusätzlich befindet sich hier die separate Waschküche.
Als zusätzliche Abstellmöglichkeit steht noch der große Dachboden zur Verfügung.
Saniertes Einfamilienhaus mit großem Garten in Dreieich-Buchschlag
Kastanienweg 2,
63303 Dreieich
Auf Karte anzeigen
Infos
| Haustyp | Einfamilienhaus |
|---|---|
| Wohnfläche ca. | 200 m2 |
| Nutzfläche | 20 m2 |
| Grundstücksfläche | 780 m2 |
| Bezugsfrei ab | 01.04.2026 |
| Zimmer | 9 |
| Schlafzimmer | 5 |
| Badezimmer | 2 |
| Haustiere | Ja |
| Garage/Stellplatz | Garage |
| Anzahl Garage/Stellplatz | 1 |
Kosten
| Kaltmiete |
3.950 € |
|---|---|
| Nebenkosten | + 200 € |
| Heizkosten | keine Angabe |
| Gesamtmiete | 4.150 € (zzgl. Heizkosten) |
| Kaution o. Genossenschaftsanteile | 3 MM |
Weiter mieten oder doch kaufen?
Wer in Miete wohnt, überweist dem Vermieter im Laufe der Jahre hohe Summen, die sich
auch in die eigenen vier Wände investieren lassen könnten.
Bausubstanz & Energieausweis
| Baujahr | 1968 |
|---|---|
| Letzte Sanierung | 2024 |
| Objektzustand | Saniert |
| Qualität der Austattung | Gehoben |
| Heizungsart | Zentralheizung |
| Wesentliche Energieträger | Gas |
| Energieausweis | liegt vor |
| Energieausweistyp | Bedarfsausweis |
| Energieverbrauchskennwert | 171,0 kWh/(m²*a) |
| Energieeffizienzklasse | F |
171,0
kWh/(m²*a)
Energieeffizienzklasse F
- A+
- A
- B
- C
- D
- E
- F
- G
- H
- 0
- 25
- 50
- 75
- 100
- 125
- 150
- 175
- 200
- 225
- >250
Beschreibung des Objekts
Ausstattung
9 Zimmer, Hochwertige Einbauküche, 2 Badezimmer, 1 Gäste WC, großer Garten mit Terrasse, optional 1 Garage direkt am Haus. Neue Gas Zentralheizung von Viessmann.
Lage
Dreieich-Buchschlag mit der reizvollen landschaftlichen Umgebung ist als Wohndomizil nicht nur beliebt sondern schon begehrt.
Ein Supermarkt sowie Bäckereien und Cafes befinden sich in naher Umgebung.
Kindergärten, Grundschulen und Gymnasien sind gut erreichbar, eine der modernsten Privatschulen Deutschlands, die Strothoff International School befindet sich im nahgelegenen Stadtteil DreieichSprendlingen.
Der Frankfurter Flughafen und die Autobahn A5 sind in nur wenigen Minuten schnell zu erreichen, besonders der S-Bahnhof ermöglicht eine schnelle Anbindung an die Frankfurter Innenstadt.
Sonstige Angaben
Vereinbaren Sie noch heute Ihren Besichtigungstermin.
Grundriss
Grundriss EG (neu)
>
>
Grundriss UG (neu)
>
>
Adresse
Kastanienweg 2, 63303 Dreieich
Interessante Orte
Preis- und Lageinformationen
Preistrend für Bestandsimmobilien in Dreieich