Sie suchen eine stilvolle und moderne Wohlfühloase für sich und Ihre Familie? Dann sind Sie hier genau richtig. Dieses beeindruckende Fachwerkhaus aus ca. 1850 befindet sich derzeit in der Fertigstellung und wartet auf seine ersten Bewohner. Es wird mit viel Liebe zum Detail umfassend kernsaniert – ein Baudenkmal mit dem Komfort eines Neubaus. Die Sanierung erfolgt nach dem neuesten Stand der Technik: energieeffizient, wärmegedämmt und mit moderner Wärmepumpe ausgestattet. Dabei kommt eine atmungsaktive, offenporige Holzbauweise mit Lehmputz zum Einsatz, was für ein sehr ökologisches und nachhaltiges Wohnklima sorgt. Ergänzend sorgt eine energiesparende KfW-Dämmung, die Dach, Innendämmung mit Holzfaserplatten sowie die Fassade umfasst, für ein ausgezeichnetes Raumklima.
Der Bergische Fachwerkstil, der diesem Haus teilweise seinen unverwechselbaren Charakter verleiht, ergänzend hierzu sind die Außenwände traditionell mit Schiefer verkleidet, was das regionale Erscheinungsbild authentisch unterstreicht und für eine harmonische Gesamtwirkung sorgt.
Im Inneren wird alles komplett erneuert: Bäder, Böden, Elektrik, Heizung (Fußbodenheizung) und Wasserinstallationen entsprechen modernsten Standards. Hochwertige Holzfenster runden das Bild ab und bieten neben Wärmeeffizienz auch natürlichen Charme.
Die angebotene, gemütliche Doppelhaushälfte besticht durch eine großzügige Raumaufteilung und bietet exklusives Wohnen in einem denkmalgeschützten Fachwerkhaus – zentral gelegen, aber dennoch ruhig, geschützt und sicher. Die Wohnfläche von ca. 156 m² verteilt sich auf drei Etagen und schafft ausreichend Platz für individuelle Wohnträume. Ein eigener Gartenanteil sowie eine ca. 25 m² große Terrasse verleihen diesem Zuhause nicht nur einen besonderen Charme, sondern runden dieses vielleicht einmalige Gesamtpaket perfekt ab. Für den Garten sowie Stellplatz fällt eine zusätzliche Miete von 150,00€ an.
Die Nebenkosten sind auf 4 Personen berechnet. Hausstrom und der Strom für die Wärmepumpe werden direkt mit einem Versorger abgerechnet.
Alt trifft Modern 156 m² – kernsaniertes Fachwerkhaus mit geschütztem Hofcharakter
Am Diek 35,
42277 Wuppertal
Auf Karte anzeigen
Infos
| Haustyp | Doppelhaushaelfte |
|---|---|
| Etagenzahl | 3 |
| Wohnfläche ca. | 156 m2 |
| Nutzfläche | 210 m2 |
| Grundstücksfläche | 300 m2 |
| Bezugsfrei ab | nach Absprache |
| Zimmer | 4 |
| Schlafzimmer | 3 |
| Badezimmer | 2 |
| Haustiere | Nach Vereinbarung |
| Garage/Stellplatz | Außenstellplatz |
| Anzahl Garage/Stellplatz | 1 |
Kosten
| Kaltmiete |
1.950 € |
|---|---|
| Nebenkosten | + 400 € |
| Heizkosten | keine Angabe |
| Gesamtmiete | 2.500 € (zzgl. Heizkosten) |
| Kaution o. Genossenschaftsanteile | 5850€ |
Weiter mieten oder doch kaufen?
Wer in Miete wohnt, überweist dem Vermieter im Laufe der Jahre hohe Summen, die sich
auch in die eigenen vier Wände investieren lassen könnten.
Bausubstanz & Energieausweis
| Baujahr | 1800 |
|---|---|
| Letzte Sanierung | 2026 |
| Objektzustand | Erstbezug nach Sanierung |
| Qualität der Austattung | Gehoben |
| Heizungsart | Wärmepumpe |
| Wesentliche Energieträger | Strom |
| Energieausweis | laut Gesetz nicht erforderlich |
Beschreibung des Objekts
Ausstattung
Die großzügige Wohnfläche von ca. 156 m² erstreckt sich über drei Ebenen und bietet viel Platz für komfortables Wohnen. Im Erdgeschoss erwartet Sie ein ca. 32 m² großer Wohn- und Essbereich, der viel Raum für gemeinsame Stunden bietet. Die angrenzende Küche mit ca. 20 m² eignet sich ideal für das Familienleben. Ergänzt wird diese Etage durch ein Gäste-WC (ca. 2 m²) sowie einen Flur mit ca. 4 m².
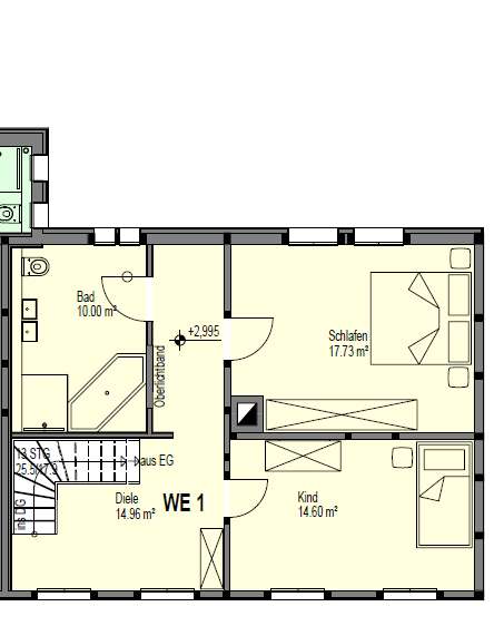
Das Obergeschoss beherbergt ein Schlafzimmer mit ca. 18 m², ein Kinderzimmer mit ca. 15 m² sowie ein großzügiges Tageslichtbad (ca. 10 m²) mit Badewanne und Dusche. Der ca. 15 m² große Flur verbindet die Räume angenehm miteinander und bietet ideale Nutzungsmöglichkeiten als Leseecke oder Arbeitsnische .
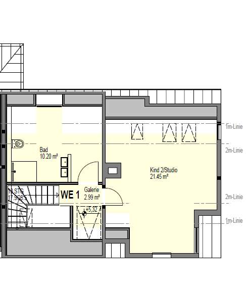
Im ausgebauten Dachgeschoss befindet sich ein weiteres Zimmer mit ca. 21 m² sowie ein separates Bad (ca. 10 m²) – perfekt geeignet als Jugendzimmer, Gästebereich oder Homeoffice.
Das Haus ist ein ökologisch kernsaniertes denkmalgeschütztes Fachwerkhaus, das mit diffusionsoffenen Materialien wie Lehm und Kalk ausgestattet ist. Es verfügt über eine Flächenheizung, konkret eine Fußbodenheizung im gesamten Haus, und wird über eine effiziente Luftwasser-Wärmepumpe (LWWP) beheizt. Denkmalgerechte moderne Holzfenster, Türen und Treppen verleihen dem Gebäude seinen besonderen Charme. Die offene Wohnraumgestaltung mit zahlreichen modernen Bädern sorgt für eine zeitgemäße und komfortable Wohnatmosphäre. Zudem stehen Nutzungs- und Abstellflächen in ansprechendem Umfang zur Verfügung.
Dank moderner Innen- und teilweise Außendämmung sind die Nebenkosten optimiert. Die Elektro- und Sanitärinstallationen wurden komplett erneuert, und in allen wichtigen Räumen ist eine moderne Mediainstallation vorhanden. Ein attraktiver Garten mit Terrasse sowie ein eigener Stellplatz runden das Angebot ab. Zusätzlich bieten separate Zugänge flexible Nutzungsmöglichkeiten.
Zusätzlich gibt es noch genügen Lagerfläche im Hauseigenen Keller mit ca. 45m²:
Lage
Die Immobilie befindet sich in einer gut angebundenen Wohnlage im östlichen Wuppertal, eingebettet in das historisch gewachsene Quartier Wichlinghausen-Süd. Das Umfeld besticht durch eine harmonische Mischung aus liebevoll sanierten Fachwerkhäusern, modernisierten Bestandsgebäuden und zeitgemäßen Neubauten, die gemeinsam eine angenehme und gewachsene Nachbarschaft prägen.
Die Anbindung an den öffentlichen Nahverkehr ist hervorragend: Mehrere Buslinien liegen in unmittelbarer Nähe und ermöglichen direkte Verbindungen innerhalb des Stadtgebiets. So ist eine schnelle Verbindung in die Innenstadt sowie zur A46 sowohl mit öffentlichen Verkehrsmitteln als auch mit dem Auto problemlos gegeben.
In direkter Umgebung befinden sich alle Einrichtungen des täglichen Bedarfs – darunter Supermärkte, Apotheken, Schulen und Kindergärten. Grünflächen, Spielplätze und die nahegelegene Nordbahntrasse bieten zusätzliche Möglichkeiten zur Erholung und Freizeitgestaltung – ideal für Familien und aktive Menschen.
Die Lage bietet eine Wohnqualität, wie sie für viele zentrale Stadtbereiche in Wuppertal typisch ist: ruhig, stadtnah und mit Entwicklungspotenzial – zum Beispiel durch benachbarte Neubauprojekte wie das „Bergische Plateau“ oder geplante Klimaschutz-Initiativen.
Sonstige Angaben
Haben wir Ihr Interesse geweckt? Dann senden Sie uns bitte eine Anfrage mit einigen Angaben zu Ihrer Person. Wir werden uns zeitnah mit Ihnen in Verbindung setzen, um das weitere Vorgehen zu besprechen.
Die Angaben zum Objekt beruhen auf Informationen von Eigentümern oder Dritten. Für deren Vollständigkeit und Richtigkeit übernehmen wir keine Gewähr. Der beigefügte Grundriss dient der schematischen Darstellung und kann von der tatsächlichen Raumaufteilung abweichen. Es liegt ein Makler-Alleinauftrag vor; Besichtigungstermine sind ausschließlich über unser Büro zu vereinbaren.
Wir bitten um Verständnis, dass vollständig ausgefüllte Anfragen bevorzugt bearbeitet werden. Bitte übermitteln Sie uns daher mindestens folgende Informationen:
• Vor- und Nachname
• Vollständige Anschrift
• Telefonnummer (mobil bevorzugt)
• E-Mail-Adresse
Grundriss
Grundriss WE 1 Ergeschoss
>
>
Grundriss WE 1 Obergeschoss
>
>
Grundriss WE 1 Dachgeschoss
>
>
Adresse
Am Diek 35, 42277 Wuppertal
Interessante Orte
Preis- und Lageinformationen
Preistrend für Bestandsimmobilien in Oberbarmen