Doppelhaushälfte in ländlicher Gegend in Northen (Gehrden) ab 01.04.2026. Bestehend aus 5 Zimmern mit einer Wohnfläche von ca. 140,00 m². Garten und Garage sind enthalten. Grundstücksfläche beträgt rund 400,00 m². Luftwärmepumpe mit Fußbodenheizung vorhanden. Die Monatsmiete beträgt 2.125,00 € warm.
Kaltmiete: 1.950,00 €
Nebenkosten-VZ: 175,00 €
Mietsicherheit: 5.850,00 €
Stromkosten sind an den örtlichen Versorger zu zahlen.
Provisionsfrei
Machen Sie sich Ihr eigenes Bild von dem ländlichen Projekt in Northen!
Infos
| Haustyp | Doppelhaushaelfte |
|---|---|
| Etagenzahl | 1 |
| Wohnfläche ca. | 140 m2 |
| Grundstücksfläche | 400 m2 |
| Bezugsfrei ab | 01.04.2026 |
| Zimmer | 5 |
| Schlafzimmer | 4 |
| Badezimmer | 2 |
| Garage/Stellplatz | Garage |
| Anzahl Garage/Stellplatz | 1 |
Kosten
| Kaltmiete |
1.950 € |
|---|---|
| Nebenkosten | + 175 € |
| Heizkosten | keine Angabe |
| Gesamtmiete | 2.125 € |
| Kaution o. Genossenschaftsanteile | 5850 EUR |
Weiter mieten oder doch kaufen?
Wer in Miete wohnt, überweist dem Vermieter im Laufe der Jahre hohe Summen, die sich
auch in die eigenen vier Wände investieren lassen könnten.
Bausubstanz & Energieausweis
| Baujahr | 2025 |
|---|---|
| Objektzustand | Neuwertig |
| Wesentliche Energieträger | Umweltwärme |
| Energieausweis | liegt zur Besichtigung vor |
Beschreibung des Objekts
Ausstattung
Terrasse, Garten, Vollbad, Duschbad, Einbauküche, Gäste-WC, Fliesen
Bemerkungen:
Das Haus wird massiv gebaut. Fenster mit 3-fach-Verglasung, Luftwärmepumpe mit Fußbodenheizung, Technik ist im aller neuesten Standard. Anthrazit-Fliesen mit einer Anthrazit-Küche und Kücheninsel geben einen modernen Look. Garage für 1 Fahrzeug vorhanden. Der Garten bietet viel Platz für die Familie. Ein Gartenschuppen ist auch vorhanden.
Lage
Befindet sich etwa 100 Meter außerhalb Northen, direkt am Ortsausgang, und daher in einer ländlichen Gegend. Das Zentrum von Gehrden ist mit dem Auto in 7-10 Minuten erreichbar. Bushaltestelle ist zu Fuß in 5 Minuten erreichbar. Schulen und Kindergärten sind 10 Minuten mit dem Auto erreichbar.
Infrastruktur (im Umkreis von 5 km):
Apotheke, Lebensmittel-Discount, Allgemeinmediziner, Kindergarten, Grundschule, Gesamtschule, Öffentliche Verkehrsmittel
Sonstige Angaben
Heizungsart: Fußbodenheizung
Energieausweis nicht vorhanden
Makleranfragen nicht erwünscht. Nach § 7 UWG sind unaufgeforderte Kontaktaufnahmen durch Makler ohne ausdrückliche Einwilligung des Empfängers verboten!
ohne-makler (OM) ist weder Anbieter noch Vermittler der Immobilie. OM betreibt eine Plattform für Immobilieneigentümer, die unter anderem die gleichzeitige Veröffentlichung einzelner Inserate auf mehreren Immobilienportalen ermöglicht. Die Inhalte dieser Inserate werden ausschließlich von Dritten verantwortet. Für die Richtigkeit, Vollständigkeit oder Rechtmäßigkeit der Angaben übernimmt OM keine Haftung. Hinweise auf mögliche Rechtsverstöße können jederzeit gemeldet werden und werden nach Prüfung umgehend bearbeitet.
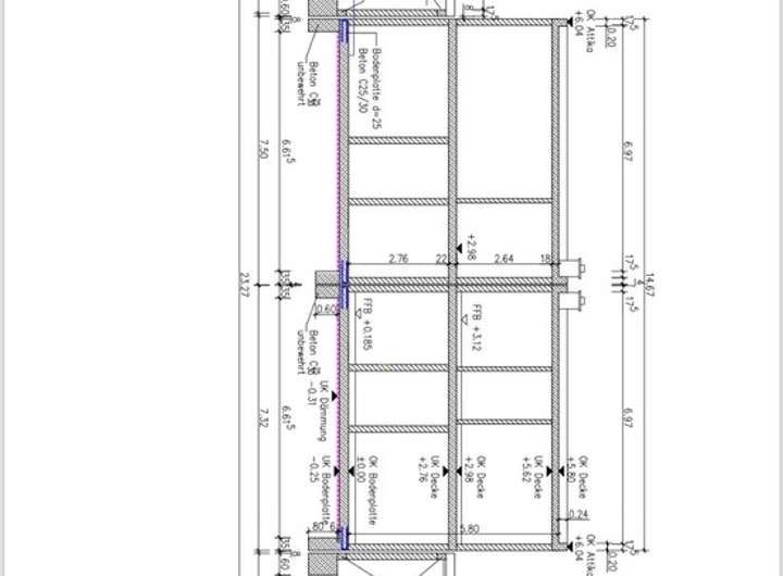
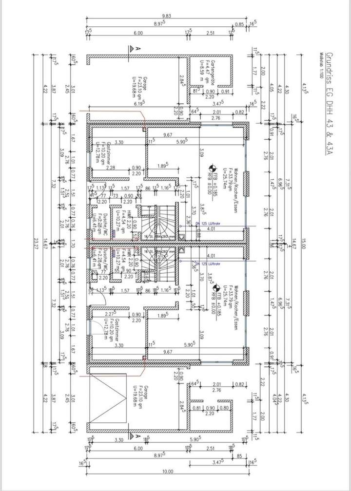
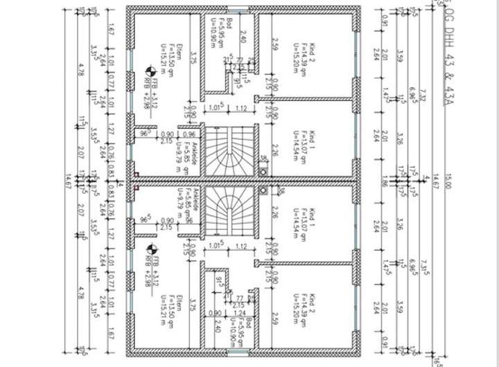
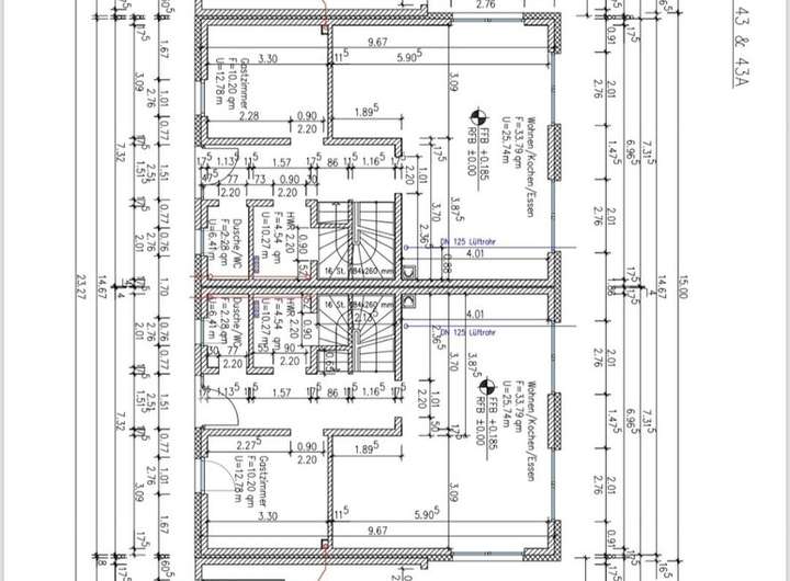
Grundriss
Grundriss
>
>
Grundriss
>
>
Grundriss
>
>
Adresse
Große Straße 43, 30989 Gehrden
Interessante Orte
Preis- und Lageinformationen
Preistrend für Bestandsimmobilien in Gehrden