Exklusive Doppelhaushälfte:
Unverbaute Südlage mit herrlichem Weitblick – Ihr neues Zuhause wartet auf Sie! Willkommen in Ihrem Traum-Zuhause!
Diese elegante Doppelhaushälfte in einer erstklassigen, ruhigen Lage bietet Ihnen komfortables Wohnen im Neubaugebiet “Auf der Hege” in Allendorf-Lumda. Ab dem 01.04.2026 steht dieses attraktive Haus mit eigenem Garten zur langfristigen Vermietung bereit. Es vereint modernen Wohnkomfort mit durchdachtem Grundriss in einer hochwertigen Ausstattung.
Unverbaute Südlage mit herrlichem Weitblick: Doppelhaushälfte mit EBK, Garten und Garage ab 01.04.26
35469 Allendorf (Lumda)
Die vollständige Adresse der Immobilie erhalten Sie vom Anbieter.
Auf Karte anzeigen
Die vollständige Adresse der Immobilie erhalten Sie vom Anbieter.
Infos
| Haustyp | Doppelhaushaelfte |
|---|---|
| Wohnfläche ca. | 120 m2 |
| Grundstücksfläche | 302 m2 |
| Bezugsfrei ab | 04/2026 |
| Zimmer | 6 |
| Schlafzimmer | 6 |
| Badezimmer | 1 |
| Haustiere | Nein |
| Anzahl Garage/Stellplatz | 2 |
Kosten
| Kaltmiete |
1.290 € |
|---|---|
| Nebenkosten | + 150 € |
| Heizkosten | keine Angabe |
| Gesamtmiete | 1.500 € (zzgl. Heizkosten) |
| Miete für Garage/Stellplatz | 60 € |
| Kaution o. Genossenschaftsanteile | 3870 |
Weiter mieten oder doch kaufen?
Wer in Miete wohnt, überweist dem Vermieter im Laufe der Jahre hohe Summen, die sich
auch in die eigenen vier Wände investieren lassen könnten.
Bausubstanz & Energieausweis
| Baujahr | 2012 |
|---|---|
| Letzte Sanierung | 2026 |
| Objektzustand | Neuwertig |
| Qualität der Austattung | Gehoben |
| Heizungsart | Gas-Heizung |
| Wesentliche Energieträger | Gas |
| Energieausweis | liegt zur Besichtigung vor |
Beschreibung des Objekts
Ausstattung
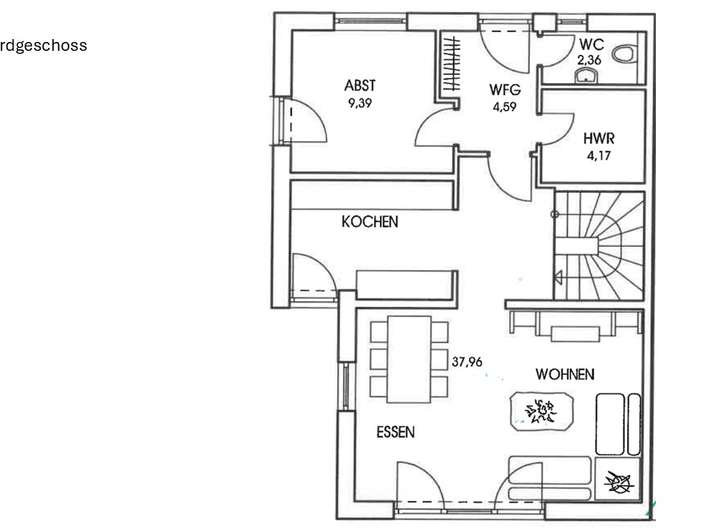
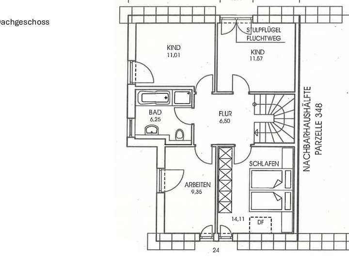
Das Haus verfügt über 6 helle und einladende Zimmer, die viel Raum für Ihre persönliche Entfaltung bieten. Im Erdgeschoss erwartet Sie ein großzügiger Wohn- Essbereich, eine separate Küche, die mit einer hochwertigen Einbauküche ausgestattet ist. Vom Wohnzimmer aus gelangen Sie auf die Terrasse und in den liebevoll gestalteten Garten – perfekt für entspannte Stunden im Freien. Das Grundstück bietet eine unverbaubare Südlage mit wunderschönem Weitblick. Zusätzlich finden Sie im Erdgeschoss ein helles Gäste- oder Arbeitszimmer, ideal für ein Homeoffice, sowie ein Gäste-WC und einen Hauswirtschafts- und Technikraum. Im Obergeschoss befinden sich ein großzügiges Schlafzimmer und 3 helle Kinderzimmer sowie ein modernes Wohlfühl-Badezimmer mit Badewanne und Dusche.
Lage
Diese Immobilie ist ideal für Familien, die eine hochwertige Unterkunft in bester Lage suchen. Die Infrastruktur ist hervorragend: Kita, Grundschule, Gesamtschule bis zur 10. Klasse, Einkaufsmöglichkeiten, Fitnessstudio, Ärztehaus und Apotheke, Frisör, Kosmetik – alles ist sehr gut zu Fuß erreichbar. Erleben Sie ein einzigartiges Zuhause, das entspanntes Leben und Natur perfekt miteinander verbindet.
In nur ca. 20 Fahrminuten erreichen Sie die Universitätsstädte Marburg und Gießen, in ca. 45 Minuten Frankfurt am Main.
Sonstige Angaben
Gerne stellen wir Ihnen das schöne Objekt in einem persönlichen Termin vor. Wir freuen uns auf Sie und Ihre kurze Vorstellung.
Hinweis: Tierhaltung ist in diesem Objekt nicht gestattet.
Die auf den Fotos abgebildete Terrassenüberdachung und das Gartenhaus befinden sich im Eigentum des aktuellen Mieters und können eventuell übernommen werden. Für die Nutzung der Garage fällt eine monatiche Nutzungsgebühr in Höhe von 60,-€ an. Diese sind in der Warmmiete bereits enthalten. Die Nebenkosten Heizung (Gas), Strom und Telekom werden zusätzlich über die Versorger abgerechnet.
Adresse
35469 Allendorf (Lumda)
Interessante Orte
Preis- und Lageinformationen
Preistrend für Bestandsimmobilien in Allendorf (Lumda)