Zum Hauptinhalt springen
1/4
2/4
3/4
4/4
Junge erwachsene Frau in urbaner Umgebung, in die Ferne schauend. Mit Angebot zu Tagesgeldkonto im Overlay.
Tagesgeldkonto
Neu: jetzt mit 1,00% Zinsen p.a.
Sonderzinsen sichern!

Exklusive DHH (BJ 2025) - A+ 4,5 Zimmer, 2 Stellplätze, Wallbox, Garten, Terasse, Balkon

12527 Berlin
Die vollständige Adresse der Immobilie erhalten Sie vom Anbieter.
Auf Karte anzeigen
Logo ImmoScout24 Logo ImmoScout24

Infos

Haustyp Doppelhaushaelfte
Etagenzahl 3
Wohnfläche ca. 110 m2
Grundstücksfläche 250 m2
Bezugsfrei ab 1.2.2026
Zimmer 4,5
Badezimmer 3
Haustiere Nach Vereinbarung
Garage/Stellplatz Außenstellplatz
Anzahl Garage/Stellplatz 2

Kosten

Kaltmiete 2.300 €
Nebenkosten + 200 €
Heizkosten in Nebenkosten enthalten
Gesamtmiete 2.500 €
Kaution o. Genossenschaftsanteile 6.900,00

Weiter mieten oder doch kaufen?

Wer in Miete wohnt, überweist dem Vermieter im Laufe der Jahre hohe Summen, die sich auch in die eigenen vier Wände investieren lassen könnten.
In Ihrem Bundesland müssen Sie mit % Nebenkosten rechnen. Diese werden von dem finalen Betrag abgezogen.

Ihr Ergebnis

Mit diesen Zahlen können wir nicht rechnen.
Glückwunsch!
Sie können sich Ihr Traumzuhause im Wert von 308.894 € leisten!
Bitte geben Sie ein höheres Eigenkapital an. In der aktuell von Ihnen eingegebenen Konstellation sind die angenommenen Nebenkosten höher als das von Ihnen eingebrachte Eigenkapital.
*Basierend auf einem Zinssatz von % / % anfängliche Tilgung
Der Rechner soll Sie bei der Beantwortung der Frage: „Wie viel Haus kann ich mir eigentlich leisten?“ unterstützen. Das Ergebnis wird auf Grundlage der von Ihnen eingegebenen Daten und angenommenen pauschalisierten Werten errechnet. Für eine auf Sie zugeschnittene Aussage empfehlen wir Ihnen eine persönliche Beratung.

Details zur Berechnung

Bausubstanz & Energieausweis

Qualität der Austattung Gehoben

Lage

                Ruhige Wohnlage in Wassernähe mit hohem Freizeitwert. Der Balkon bietet Wasserblick. Zusätzlich besteht die Möglichkeit zur Mitnutzung eines Wassergrundstücks mit Badestrand (Mitgliedsbeitrag). Ideal für alle, die naturnah wohnen und dennoch in Berlin bleiben möchten.
                

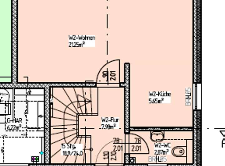
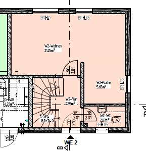
Grundriss

dg dg >
eg eg >
OG OG >

Adresse

12527 Berlin

Interessante Orte

Bäckereien
Schulen
Ärzte

Preis- und Lageinformationen

Preistrend für Bestandsimmobilien in Grünau (Köpenick)
Sept. 2022 Sept. 2023 Sept. 2024 Sept. 2025 13,85 €/m² 14,33 €/m² 3,47 % 3,28 %

Dieser Zeitraum ist nur für eingeloggte User sichtbar.

Jetzt einloggen

Ansprechpartner