BITTE NUR SCHRIFTLICHE ANFRAGEN.
Dieses großzügige Wohnhaus bietet alle Möglichkeiten des komfortablen Wohnens.
Ein wundervolles Haus in zentraler und ruhiger Lage von Weilburg sucht nach einem Mieter, welcher die Stadtnähe sucht.
Das Anwesen überzeugt durch den großzügigen grünen Terrassen-Garten und die optimale Aufteilung.
Das gesamte Haus bietet genügend Möglichkeiten, sich als Mieter zu entfalten. Entweder für die Großfamilie oder für drei Generationen unter einem Dach oder Wohnen und Arbeiten in einem Objekt. Die Gewerbliche Nutzung der Atelier-/Bürofläche ist mit eigenem Zugang möglich.
Ebenso wäre eine Untervermietung einzelner Bereiche jederzeit möglich.
Aufteilung:
Erdgeschoss:
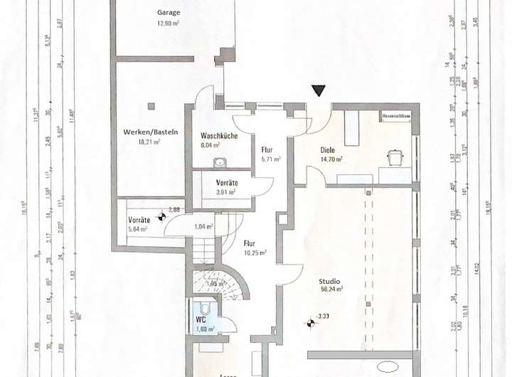
Großzügiges Atelier/Büro, mit offener Einbau-Küche, Wellnessbad und sep. WC sowie zwei weiteren Räumen. Die Fläche kann selbstverständlich auch als Wohnraum genutzt werden.
Zwei Kellerräume, Technik, Waschküche, Diele, Garage mit Hobby-Raum.
Obergeschoss:
Wohn-Esszimmer mit Panoramafenster und Kaminofen, sep. Einbau-Küche mit Kochinsel und Speisekammer, Wohn-Flur, zwei Schlafzimmer, Duschbad mit Bidet, sep. WC, Zugang zur Terrasse und Loggia.
Dachgeschoss:
Zwei große Zimmer, Duschbad, sep. WC, Wohn-Flur, komplette Küche mit Einbaumöbel.
Außenanlage:
Terrassenförmig angelegte Außenanlage mit Rasen, einem großzügigen Gartenhaus, Hoffläche, Holzlagerhaus, PKW-Stellplätze, Carport.
Zusammenfassend ein sehr ansprechendes und großzügiges Objekt mit ca. 240m² Wohnfläche, welches verschiedene Möglichkeiten der Nutzung bietet.
Großzügiges Wohnhaus incl. Atelier/Büro
35781 Weilburg
Die vollständige Adresse der Immobilie erhalten Sie vom Anbieter.
Auf Karte anzeigen
Die vollständige Adresse der Immobilie erhalten Sie vom Anbieter.
Infos
| Haustyp | Einfamilienhaus |
|---|---|
| Etagenzahl | 3 |
| Wohnfläche ca. | 240 m2 |
| Nutzfläche | 100 m2 |
| Grundstücksfläche | 1.140 m2 |
| Bezugsfrei ab | nach Absprache |
| Zimmer | 7 |
| Schlafzimmer | 4 |
| Badezimmer | 3 |
| Haustiere | Nach Vereinbarung |
| Garage/Stellplatz | Garage |
| Anzahl Garage/Stellplatz | 4 |
Kosten
| Kaltmiete |
2.150 € |
|---|---|
| Nebenkosten | + 250 € |
| Heizkosten | keine Angabe |
| Gesamtmiete | 2.400 € |
| Kaution o. Genossenschaftsanteile | 4300 |
Weiter mieten oder doch kaufen?
Wer in Miete wohnt, überweist dem Vermieter im Laufe der Jahre hohe Summen, die sich
auch in die eigenen vier Wände investieren lassen könnten.
Bausubstanz & Energieausweis
| Letzte Sanierung | 2026 |
|---|---|
| Objektzustand | Gepflegt |
| Qualität der Austattung | Gehoben |
| Heizungsart | Zentralheizung |
| Wesentliche Energieträger | Gas |
| Energieausweis | liegt vor |
| Energieausweistyp | Bedarfsausweis |
| Energieverbrauchskennwert | 217,2 kWh/(m²*a) |
Beschreibung des Objekts
Ausstattung
Spanndecke, Tapeten, Wandanstrich,
Parkett-, Stein-, Fliesen- Laminat-, Vinylböden.
Sat-Anlage, Gas-Zentralheizung, Kaminofen, Glasfaseranschluss ist möglich. etc.
Lage
Das freistehende Haus befindet sich in ruhiger und dennoch stadtnaher Lage von Weilburg. Nicht direkt an der Straße, sondern in ruhiger zweiter Reihe. Diese Wohnlage überzeugt durch ihre harmonische Verbindung von urbaner Infrastruktur und naturnahem Wohnen.
Fußläufig sind Grundschule, weiterführende Schulen sowie Fach- und Berufsschulen zu erreichen.
Sehr gute Anbindung an die B456 Richtung Bad Homburg und Frankfurt sowie über die B49 in der Ost-West Achse Gießen-Limburg.
Sonstige Angaben
BITTE NUR SCHRIFTLICHE ANFRAGEN!
Zusammenfassend ein wunderschönes Angebot. Überzeugen sie sich von unserem außergewöhnlichen Angebot und vereinbaren einen unverbindlichen Besichtigungstermin.
Unsere bitte an Sie:
Wir bitten um schriftliche Kontaktanfrage. Wir bieten Ihnen ein umfangreiches Immobilienangebot mit täglichen Neuerscheinungen und persönlichem Service. Das erfordert eine professionelle und individuelle Dienstleistung auf hohem Niveau. Deshalb bitte wir um Ihr Verständnis, dass wir nur vollständige schriftliche Anfragen (E-Mail, Brief) mit Namen, Anschrift und Telefonnummer (unter der Sie auch tagsüber erreichbar sind) beantworten können. Ein Bonitätsnachweis wäre von Vorteil.
Hinweis:
Wir bemühen uns, alle Angaben so vollständig und richtig wie möglich zu machen, sind hierbei jedoch auf die Informationen des Vermieters/Eigentümers angewiesen und übernehmen für die Richtigkeit und Vollständigkeit aller im Exposé gemachten Angaben keine Gewähr. Ebenso übernehmen wir für die Richtigkeit und Flächenberechnungen, Auskünfte von Ämtern und Behörden, die evtl. diesem Exposé beigefügt sind bzw. deren Daten im Exposé verwendet werden keine Gewähr. Das Vorliegen evtl. Genehmigungen wird von uns nicht überprüft und wir übernehmen in diesem Zusammenhang keinerlei Haftung. Darüber hinaus gelten unsere allgemeinen Geschäftsbedingungen (AGB), welche sie auf unserer Homepage www.jhw-immobilien.de einsehen können oder diese wir auf Anforderung gerne übersenden. Es besteht ein gesetzliches Widerrufsrecht. Die Firma JHW-Immobilien berücksichtigt §4 des GwG.
Grundriss
Grundriss EG
>
>
Grundriss OG
>
>
Grundriss DG
>
>
Adresse
35781 Weilburg
Interessante Orte
Preis- und Lageinformationen
Preistrend für Bestandsimmobilien in Weilburg