Moderne Doppelhaushälfte in Sereetz – durchdachtes Wohnen für die ganze Familie!
Diese hochwertig Doppelhaushälfte in Sereetz vereint zeitgemäße Architektur, energieeffizientes Bauen und eine familienfreundliche Raumaufteilung. Auf ca. 115 m² Wohnfläche erstreckt sich ein Zuhause, das sowohl funktional als auch gemütlich ist – ideal für Paare, Familien oder alle, die sich ein modernes Umfeld mit guter Anbindung an Lübeck und die Ostsee wünschen.
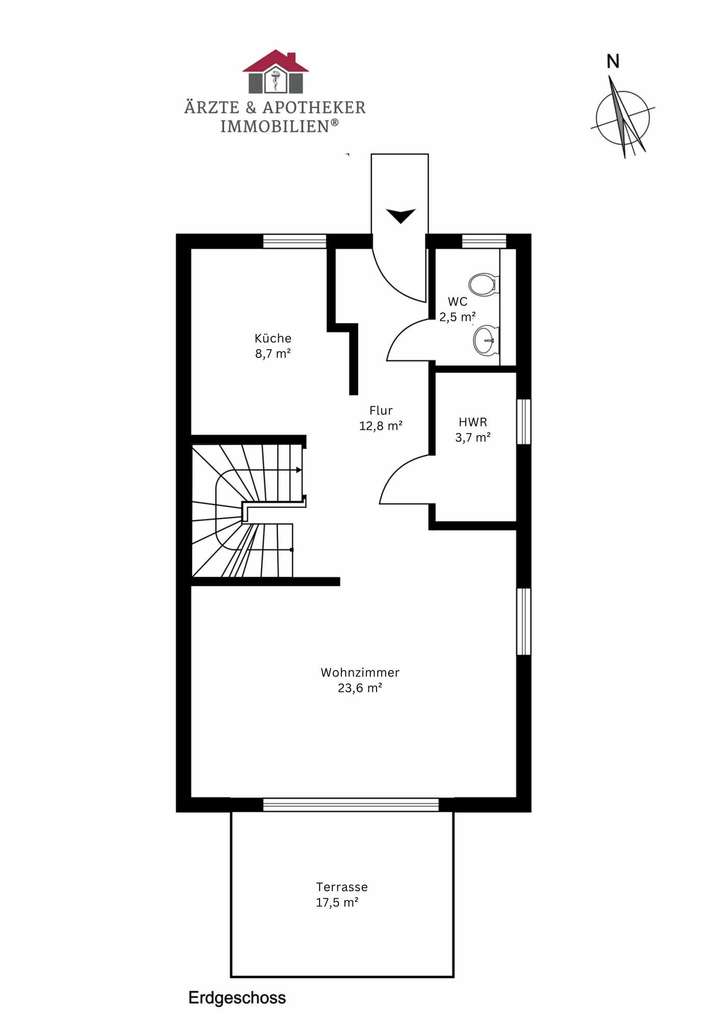
Herzstück des Hauses ist der offen gestaltete Wohn-, Ess- und Kochbereich im Erdgeschoss, der durch bodentiefe Fenster nahezu im gesamten Haus viel Tageslicht und ein angenehmes Wohngefühl bietet. Der direkte Zugang zur Terrasse mit angrenzendem Garten schafft fließende Übergänge zwischen Innen- und Außenraum – ideal für entspannte Stunden im Grünen. Ein Gäste-WC sowie ein praktischer Hauswirtschaftsraum komplettieren das Raumangebot auf dieser Ebene.
Im Obergeschoss erwarten Sie drei gut geschnittene Schlafzimmer, die sich flexibel als Elternschlafzimmer, Kinderzimmer oder Homeoffice nutzen lassen. Das stilvolle Badezimmer überzeugt mit einer bodengleichen Dusche und einer modernen, zeitlosen Ausstattung.
Der ausgebaute Spitzboden bietet zusätzlichen Raum zur individuellen Nutzung – beispielsweise als Rückzugsort, Arbeitsbereich oder Gästezimmer.
Diese Immobilie bietet Raum für individuelle Entfaltung in einer wachsenden, familienfreundlichen Umgebung. Entdecken Sie Ihr neues Zuhause – modern, funktional und voller Lebensqualität.
Nachhaltig wohnen! KfW-40-Doppelhaushälfte in Sereetz mit Garten, PV-Anlage, Wärmepumpe & Wallbox!
23611 Ratekau
Die vollständige Adresse der Immobilie erhalten Sie vom Anbieter.
Auf Karte anzeigen
Die vollständige Adresse der Immobilie erhalten Sie vom Anbieter.
Infos
| Haustyp | Doppelhaushaelfte |
|---|---|
| Etagenzahl | 2 |
| Wohnfläche ca. | 115 m2 |
| Grundstücksfläche | 202,13 m2 |
| Bezugsfrei ab | Januar 2026 |
| Zimmer | 5 |
| Schlafzimmer | 4 |
| Badezimmer | 1 |
| Garage/Stellplatz | Außenstellplatz |
| Anzahl Garage/Stellplatz | 2 |
Kosten
| Kaltmiete |
1.994 € |
|---|---|
| Nebenkosten | + 150 € |
| Heizkosten | keine Angabe |
| Gesamtmiete | 2.210 € (zzgl. Heizkosten) |
| Miete für Garage/Stellplatz | 60 € |
| Kaution o. Genossenschaftsanteile | 6.180 |
Weiter mieten oder doch kaufen?
Wer in Miete wohnt, überweist dem Vermieter im Laufe der Jahre hohe Summen, die sich
auch in die eigenen vier Wände investieren lassen könnten.
Bausubstanz & Energieausweis
| Baujahr | 2025 |
|---|---|
| Objektzustand | Erstbezug |
| Heizungsart | Fußbodenheizung |
| Wesentliche Energieträger | Strom |
| Energieausweis | liegt vor |
| Energieausweistyp | Bedarfsausweis |
| Energieverbrauchskennwert | 5,9 kWh/(m²*a) |
| Energieeffizienzklasse | A+ |
5,9
kWh/(m²*a)
Energieeffizienzklasse A+
- A+
- A
- B
- C
- D
- E
- F
- G
- H
- 0
- 25
- 50
- 75
- 100
- 125
- 150
- 175
- 200
- 225
- >250
Beschreibung des Objekts
Ausstattung
Ihre Vorteile auf einen Blick
Großzügiger Wohnkomfort
Durchdachtes Raumkonzept mit ca. 115 m² Wohnfläche, verteilt auf fünf optimal geschnittene Zimmer – ideal für Familien, Homeoffice und Gäste.
Hochwertige Ausstattung
Moderne Fußbodenheizung in allen Räumen & hochwertige Sanitärobjekte.
Aktuelle Haustechnik
Elektrische Rollläden, TV- und Datenanschlüsse in mehreren Räumen, Rauchmelder und eine dezentrale Lüftungsanlage sorgen für Komfort und Sicherheit auf dem neuesten Stand der Technik.
Energieeffizient und nachhaltig
Das KfW-40-Effizienzhaus mit Dreifachverglasung, Luftwärmepumpe und 5 kW-Photovoltaikanlage ermöglicht niedrige Betriebskosten und eine ökologische Bauweise.
Vollklinkerfassade
Zeitlos, pflegeleicht und langlebig – die hochwertige Klinkerfassade vereint klassische Optik mit moderner Wirkung.
Unabhängige Energiegewinnung
Dank Photovoltaikanlage und Luftwärmepumpe sind Sie besser gegenüber steigenden Energiepreisen geschützt und erhöhen Ihre energetische Unabhängigkeit.
Zusätzliche Ausstattung für jedes Haus
Eigene Wallbox für E-Mobilität und auf der sonnigen Dachseite eine Photovoltaikanlage mit zehn Modulen – für noch mehr Nachhaltigkeit.
Die Visualisierungen sind eine Beispieldarstellung & können Abweichungen unterliegen.
Lage
Das angebotene Objekt befindet sich in einer ruhigen und gewachsenen Wohnlage im beliebten Ortsteil Sereetz der Gemeinde Bad Schwartau. Die Umgebung zeichnet sich durch eine familienfreundliche Infrastruktur, eine gute Verkehrsanbindung sowie die Nähe zur Hansestadt Lübeck aus. Hier genießen Sie die perfekte Kombination aus naturnahem Wohnen und urbaner Erreichbarkeit.
In fußläufiger Entfernung befinden sich mehrere Kindertagesstätten sowie die Grundschule Sereetz, die sich durch ein modernes pädagogisches Konzept auszeichnet. Weiterführende Schulen wie die Ernestinenschule oder das Carl-Jacob-Burckhardt-Gymnasium in Lübeck sind mit dem Fahrrad oder öffentlichen Verkehrsmitteln gut erreichbar.
Sowohl im direkten Umfeld als auch im nahegelegenen Ortskern von Bad Schwartau stehen Ihnen zahlreiche Einkaufsmöglichkeiten zur Verfügung. Supermärkte, Bäckereien, Apotheken und kleinere Fachgeschäfte sorgen für eine komfortable Versorgung im Alltag.
Die grüne Umgebung lädt zu Spaziergängen und Radtouren ein. Besonders hervorzuheben sind die nahen Wiesen- und Waldflächen sowie die Trave und der Sereetzer Bach, die für Naturliebhaber beste Erholungsmöglichkeiten bieten. Zudem ist das Ostseebad Travemünde mit seinen Stränden in weniger als 20 Minuten erreichbar – ideal für Tagesausflüge und Erholung am Meer.
Bad Schwartau verfügt über eine sehr gute medizinische Versorgung mit Allgemein- und Fachärzten, Apotheken sowie dem modernen HELIOS Agnes Karll Krankenhaus. Auch physiotherapeutische und alternative Gesundheitsangebote sind im Ort präsent.
Die verkehrsgünstige Lage bietet einen schnellen Anschluss an die Autobahn A1 Richtung Lübeck und Hamburg. Der Bahnhof Bad Schwartau ist in wenigen Minuten erreichbar und ermöglicht eine zügige Anbindung an den Regional- und Fernverkehr. Auch der öffentliche Nahverkehr ist gut ausgebaut: Mehrere Buslinien verbinden Sereetz mit dem Umland und der Lübecker Innenstadt.
Sonstige Angaben
Vielen Dank für Ihr Interesse an der von uns angebotenen Immobilie.
Bitte haben Sie Verständnis dafür, dass wir unseren Auftraggebern Diskretion zugesagt haben und Sie daher um die Angabe Ihrer vollständigen Kontaktdaten inkl. Ihrer Telefonnummer bitten müssen.
Gern senden wir Ihnen anschließend ein Exposé zu.
Folgen Sie uns auf Instagram unter @auaimmo! Erfahren Sie von neuen Objekten, wie z.B. von der „Immobilie der Woche“ oder profitieren Sie von unseren Tipps und Tricks für Eigentümer und Suchende.
Grundriss
Erdgeschoss
>
>
Obergeschoss
>
>
Spitzboden
>
>
Adresse
23611 Ratekau
Interessante Orte
Preis- und Lageinformationen
Preistrend für Bestandsimmobilien in Ratekau