Das Haus wurde im Jahr 1999 grundlegend saniert und in 2020 modernisiert. Ein ca. 1.766 m² großes, schön angelegtes Grundstück mit altem Baumbestand und Schwimmbad umgibt die Villa. Die Ausrichtung des Gartens ist ideal nach Süd-Westen orientiert. Der Ausblick über ganz Königstein und auf die Burgruine ist einzigartig und sowohl Haus als auch Garten überzeugen mit absoluter Privatsphäre und Ruhe.
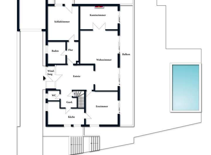
Die Wohnfläche beträgt ca. 435 m² (inkl. anteiliger Balkon- und Terrassenflächen) und erstreckt sich über zwei Etagen. Auf der Eingangsebene befinden sich ein großzügiges Entrée, ein Wohnbereich mit Kaminzimmer, ein Esszimmer mit separater Küche, Gäste-WC sowie ein Schlafzimmer mit Ankleide und großem Bad. In der darunter liegenden Gartenebene befinden sich vier Schlafräume, zwei Bäder sowie ein Fitnessbereich, der zur Nutzung überlassen wird, sowie Lager- und Haustechnikraum.
Eine Garage für zwei Autos und weitere Stellplätze auf dem Grundstück runden dieses attraktive Angebot ab.
Eine Mindestmietzeit von 24 Monaten wird gewünscht. Zusätzlich zu der Nebenkostenvorauszahlung ist ein Stromliefervertrag direkt mit dem Versorger abzuschließen (monatlicher Abschlag z.Zt. 680 €). Der Mieter kümmert sich um Gartenpflege und Winterdienst. Haustiere sind willkommen.
Wohnen vom Feinsten: Repräsentatives Anwesen mit viel Privatsphäre und großem Panorama
61462 Königstein im Taunus
Die vollständige Adresse der Immobilie erhalten Sie vom Anbieter.
Auf Karte anzeigen
Die vollständige Adresse der Immobilie erhalten Sie vom Anbieter.
Infos
| Haustyp | Villa |
|---|---|
| Etagenzahl | 2 |
| Wohnfläche ca. | 434 m2 |
| Grundstücksfläche | 1.766 m2 |
| Bezugsfrei ab | nach Absprache |
| Zimmer | 8 |
| Schlafzimmer | 5 |
| Badezimmer | 3 |
| Haustiere | Ja |
| Garage/Stellplatz | Garage |
| Anzahl Garage/Stellplatz | 2 |
Kosten
| Kaltmiete |
6.500 € |
|---|---|
| Nebenkosten | + 500 € |
| Heizkosten | keine Angabe |
| Gesamtmiete | 7.000 € (zzgl. Heizkosten) |
| Kaution o. Genossenschaftsanteile | drei Nettokaltmieten |
Weiter mieten oder doch kaufen?
Wer in Miete wohnt, überweist dem Vermieter im Laufe der Jahre hohe Summen, die sich
auch in die eigenen vier Wände investieren lassen könnten.
Bausubstanz & Energieausweis
| Baujahr | 1971 |
|---|---|
| Objektzustand | Vollständig Renoviert |
| Qualität der Austattung | Luxus |
| Heizungsart | Fußbodenheizung |
| Wesentliche Energieträger | Strom |
| Energieausweis | liegt vor |
| Energieausweistyp | Bedarfsausweis |
| Energieverbrauchskennwert | 126,5 kWh/(m²*a) |
| Energieeffizienzklasse | D |
126,5
kWh/(m²*a)
Energieeffizienzklasse D
- A+
- A
- B
- C
- D
- E
- F
- G
- H
- 0
- 25
- 50
- 75
- 100
- 125
- 150
- 175
- 200
- 225
- >250
Beschreibung des Objekts
Ausstattung
• acht Zimmer
• fünf Schlafzimmer
• Designerküche von Art Line mit Imperial Geräten
• drei Badezimmer, Gäste-WC
• Hochwertige Armaturen und Sanitärobjekte
• Pool im Garten (aktuell nicht in Betrieb)
• viele Einbaumöbel
• Fußboden Travertin und Feinsteinzeug
• Fußbodenheizung
• gespachtelte Wände
• Deckeneinbauspots
• offener Kamin
• Soundsystem
• Flügeltüren
• Holzfenster mit Doppelisolierverglasung und Schlagläden, teils bodentief
• Alarmanlage (Aufschaltung auf Sicherheitszentrale möglich, +70€/Mon)
• Videogegensprechanlage
• elektrische Markisen
• Balkon und Terrasse in Südwestausrichtung
• Garage mit zwei Stellplätzen und zusätzliche drei Freiplätze auf dem Grundstück
Lage
Königstein im Taunus, nur 20 Kilometer von Frankfurt am Main entfernt, ist ein staatlich anerkannter heilklimatischer Kurort. Durch die hervorragende Infrastruktur gehört Königstein im Taunus zu den bevorzugten Wohnorten im Taunus und Rhein-Main-Gebiet.
Das Königsteiner Stadtzentrum mit den vielfältigen Einkaufsmöglichkeiten, Arztpraxen, Kliniken, Restaurants, Cafés, liegt nur wenige Minuten entfernt. Königstein ist der ideale Ort für Familien. Für Kinder zwischen 3 und 6 Jahren stehen private, konfessionelle und staatliche Kindergärten zur Verfügung. Die staatlichen Grundschulen als auch die bilinguale Primary School genießen einen über die Königsteiner Grenzen exzellenten Ruf. Im Bereich der weiterführenden Schulen gibt es ein staatliches und zwei private Gymnasien.
Auch kulturell erwartet Sie ein faszinierendes Angebot. Die verschiedenen Parks in Königstein sowie der Taunus mit seinen weitläufigen Wiesen und Wäldern laden außerdem zum Spazierengehen, Wandern und Fahrradfahren ein.
Sonstige Angaben
Ein Stromliefervertrag ist direkt vom Mieter mit dem Versorger abzuschließen (montalicher Abschlag z.Zt. 680€).
Der Mieter kümmert sich selbst um den Garten und um Winterdienst.
Haustiere sind willkommen (eine Tierhalterhapfpflicht ist nachzuweisen).
Grundriss
Erdgeschoss
>
>
Gartengeschoss
>
>
Adresse
61462 Königstein im Taunus
Interessante Orte
Preis- und Lageinformationen
Preistrend für Bestandsimmobilien in Königstein im Taunus