Herzlich willkommen in Ihrem neuen Zuhause, das speziell für Familien und herzliche Menschen gestaltet wurde! Dieses großzügige Haus bietet nicht nur ausreichend Platz für Ihre Lieben, sondern auch eine warme und einladende Atmosphäre.
Im Erdgeschoss erwartet Sie ein geräumiges Wohnzimmer mit großen Fenstern, die viel Tageslicht hereinlassen. Die offene Küche bildet das Herz des Hauses und ist ideal für das gesellige Beisammensein. Das Esszimmer bietet Platz für gemeinsame Mahlzeiten und Feierlichkeiten.
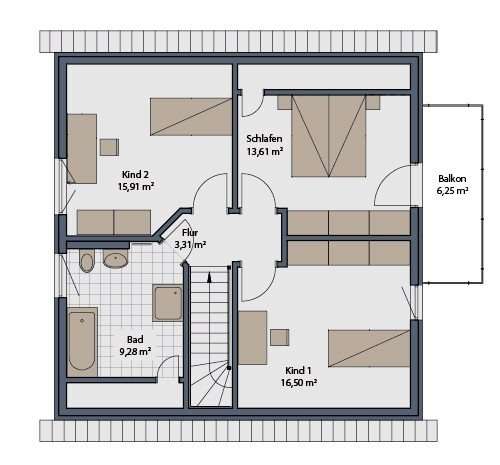
Im Obergeschoss finden Sie die Schlafzimmer, darunter ein Hauptschlafzimmer mit eigenem Bad und begehbarem Kleiderschrank, sowie weitere Zimmer für Kinder oder Gäste. Der Garten ist ein Paradies für Aktivitäten im Freien.
Wenn Sie auf der Suche nach einem Zuhause sind, das mehr als nur vier Wände bietet – ein echtes Familienheim in einer herzlichen Nachbarschaft – könnte dieses Ihr perfektes Eigenheim sein. Kontaktieren Sie uns noch heute, um eine Besichtigung zu vereinbaren!
Leben, Lieben, Lachen - Hier!
45772 Marl
Die vollständige Adresse der Immobilie erhalten Sie vom Anbieter.
Auf Karte anzeigen
Die vollständige Adresse der Immobilie erhalten Sie vom Anbieter.
Infos
| Haustyp | Einfamilienhaus |
|---|---|
| Wohnfläche ca. | 140 m2 |
| Nutzfläche | 0 m2 |
| Grundstücksfläche | 420 m2 |
| Zimmer | 5 |
| Schlafzimmer | 4 |
| Badezimmer | 1 |
| Anzahl Garage/Stellplatz | 1 |
Kosten
| Kaltmiete |
1.750 € |
|---|---|
| Nebenkosten | keine Angabe |
| Heizkosten | keine Angabe |
| Gesamtmiete | 1.750 € |
Weiter mieten oder doch kaufen?
Wer in Miete wohnt, überweist dem Vermieter im Laufe der Jahre hohe Summen, die sich
auch in die eigenen vier Wände investieren lassen könnten.
Bausubstanz & Energieausweis
| Baujahr | 2026 |
|---|---|
| Qualität der Austattung | Gehoben |
| Heizungsart | Wärmepumpe |
Beschreibung des Objekts
Ausstattung
Jedes unserer Fertighäuser wird speziell für Sie geplant und ist perfekt auf die Anforderungen und Vorgaben Ihres Bauvorhabens angepasst – Bebauungspläne, eine besondere Grundstückslage und die gewünschten Eigenleistungen werden im Detail geprüft und berücksichtigt.
Jedes Schwabenhaus verfügt standardmäßig über:
- Doppel-Wärmepumpe mit 5 in 1-System: Heizen, Kühlen, Lüften, Luftreinigung und Warmwasser
- Zentrale kontrollierte Wohnraum Be- und Entlüftung mit Wärmerückgewinnung
- 3-Scheiben-Wärmeschutzglas
- elektrische Rollladensteuerung*
- Smart-Home-Technologie: Intelligentes Gebäude-Management für die Licht- und Rollladen-Steuerung*
- Schwimmender Estrich mit Wärmedämmung
- Sanitär-Objekte von Markenherstellern wie z. B. Villeroy & Boch usw. sowie Echtglas-Duschabtrennung
- 10 Jahre Gewährleistung nach BGB (üblich: 5 Jahre) und 30 Jahre Garantie auf die Grundkonstruktion
*In Verbindung mit dem Technologie + Komfort-Paket „Blue-Edition“
Diesem Angebot liegt die beliebte Schwabenhaus-Ausbaustufe "Fast-Vollendet Plus" zugrunde. Diese kann selbstverständlich noch entsprechend Ihrer geplanten Eigenleistungen angepasst werden.
Lage
Das Grundstück befindet sich in einer ruhigen Seitenstrasse in Marl-Hamm. Alle Geschäfte des täglichen Lebens, sowie Schulen, Kindergärten, etc., sind gut erreichbar. Ebenso öffentliche Verkehrsmittel und Autobahnanbindungen.
Sonstige Angaben
Finanzielle Sicherheit und KfW-QNG-Förderung:
Unsere Experten können Ihnen bei der Klärung aller Fragen zur Finanzierung und den möglichen Förderungen zur Seite stehen, einschließlich der Kreditanstalt für Wiederaufbau (KfW) und des Qualitätssiegels Nachhaltiges Bauen (QNG).
Die KfW bietet verschiedene Förderprogramme für energieeffizientes Bauen und Sanieren an, und unser Schwabenhaus könnte von diesen Förderungen profitieren, insbesondere wenn es die KfW-Anforderungen für Energieeffizienz erfüllt.
Das Qualitätssiegel Nachhaltiges Bauen (QNG) ist ein Qualitätsnachweis für nachhaltiges Bauen und kann dazu beitragen, die Umweltauswirkungen des Hauses zu minimieren und die Energieeffizienz zu steigern. Unsere Experten können Ihnen dabei helfen, die QNG-Zertifizierung zu erreichen und von den finanziellen Vorteilen zu profitieren, die sie bietet.
Wir sind bestrebt, sicherzustellen, dass Sie nicht nur Ihr Traumhaus bekommen, sondern auch finanzielle Sicherheit und Unterstützung auf Ihrem Weg zum Eigenheim haben. Zögern Sie nicht, uns zu kontaktieren, um alle Ihre Finanzierungsfragen zu besprechen und eine maßgeschneiderte Lösung zu finden, die Ihren Bedürfnissen entspricht.
Anbauteile, Carport, Garage und Keller können Extras sein, die als Sonderausstattung angeboten werden. Abbildungen, Grundrisse und Flächenangaben sind beispielhaft und können Extras zeigen. Flächenangaben nach DIN 277.
Profitieren Sie jetzt von der Schwabenhaus Online Beratung und verwirklichen Sie Ihr Traumhaus https://www.schwabenhaus.de/anmeldung-hausbau-beratung-online/
Grundriss
Grundriss Erdgeschoss
>
>
Grundriss Obergeschoss
>
>
Adresse
45772 Marl
Interessante Orte
Preis- und Lageinformationen
Preistrend für Bestandsimmobilien in Marl