Es handelt sich um eine in Massivbauweise errichtetes Einfamilienhaus (ca. 185 qm Wohnfläche) mit Gewerbeanbau (ca. 225qm Nutzfläche) aus dem Jahre 1980, das ca. 1994 im Bereich des Gewerbebetriebes im Erdgeschoss erweitert wurde. Das Haus besteht aus Keller-, Erd- und Obergeschoss und einem Spitzboden, der über eine Zugtreppe betreten werden kann.
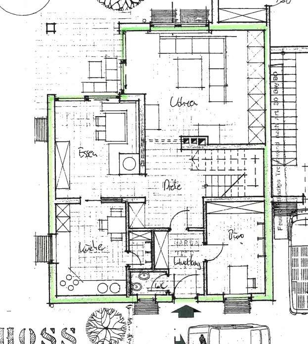
Im Erdgeschoss des Wohnhauses befinden sich Windfang, WC, Diele, Küche, Esszimmer, Büro und ein Wohnzimmer mit angrenzender Terrasse. Im Obergeschoss sind zwei Schlafzimmer, ein Büroraum, Diele, Bad, und Dusche untergebracht.
Im Keller sind zwei Räume wohnraumähnlich nutzbar.
Der Bereich des Gewerbebetriebes besteht im Erdgeschoss aus einer großen Werkstatt mit Nutzung als Ausstellungsraum, Büro, einer Küchenzeile mit zwei WC-Vorräumen sowie Herren- und Damen-WC. Über dem Büro- und ehemaligem Werkstattraum besteht Zugang zu zwei Galerien.
Der Gewerbebetrieb kann über insgesamt zwei Zugangstüren begangen werden. Der Kellerbereich wird über eine an der Ostseite befindliche Zugangstüre vom Erdgeschoss betreten. Dort befindet sich ein Lagerraum mit angrenzendem Sanitärbereich, bestehend aus Vorraum, Dusche und WC.
Der Kellerbereich von Betriebswohnung und Gewerbebetrieb ist räumlich miteinander verbunden.
Wohnen und Arbeiten auf 400 Quadratmetern!
Am Weidenbach 17,
82362 Weilheim in Oberbayern
Auf Karte anzeigen
Infos
| Haustyp | Besondere Immobilie |
|---|---|
| Wohnfläche ca. | 185 m2 |
| Nutzfläche | 225 m2 |
| Grundstücksfläche | 917 m2 |
| Zimmer | 8 |
| Schlafzimmer | 4 |
| Badezimmer | 4 |
| Anzahl Garage/Stellplatz | 2 |
Kosten
| Kaltmiete |
2.950 € |
|---|---|
| Nebenkosten | keine Angabe |
| Heizkosten | keine Angabe |
| Gesamtmiete | 2.950 € |
Weiter mieten oder doch kaufen?
Wer in Miete wohnt, überweist dem Vermieter im Laufe der Jahre hohe Summen, die sich
auch in die eigenen vier Wände investieren lassen könnten.
Bausubstanz & Energieausweis
| Heizungsart | Zentralheizung |
|---|---|
| Wesentliche Energieträger | Gas |
| Energieausweis | liegt zur Besichtigung vor |
Beschreibung des Objekts
Ausstattung
Viessmann Gas Brennwertheizung aus 2022
Wohnflächenberechnung
Erdgeschoss
Windfang: 4,97 m²
WC: 1,22 m²
Büro: 10,06 m²
Diele: 10,22 m²
Küche: 12,07 m²
Speisekammer: 1,60 m²
Esszimmer: 15,03 m²
Wohnzimmer: 26,77 m²
Wohnfläche Erdgeschoss: 81,94 m²
Obergeschoss:
Diele: 8,23 m²
Schlafzimmer: 23,47 m²
Bad: 12,16 m²
Kinderzimmer: 15,03 m²
Büro: 19,50 m²
Dusche: 3,45 m²
Wohnfläche Obergeschoss: 81,84 m²
Kellergeschoss:
Keller II (Hobbyraum): (50% aus 28,80 m²) 14,40 m²
Keller I (Hobbyraum): (25% aus 15,84 m²) 3,96 m²
Wohnfläche Kellergeschoss: 18,36 m²
Bruttowohnfläche gesamt: 182,14 m²
Abzug für Putz: 3%: 5,46 m²
Nettowohnfläche: 176,68 m²
Gedeckter Freisitz EG: (50% aus 10,77 m²): 5,39 m²
Balkon Südseite: (25% aus 10,77 m²): 2.69 m²
Wohnfläche gesamt: 184,76 m²
Gewerbe/ NutzflächeNutzflächenberechnung
Kellergeschoss
Lager: 70,31 m²
Vorraum WC: 1,60 m²
WC: 1,60 m²
Dusche: 3,15 m²
Nutzfläche Kellergeschoss: 76,66 m²
Erdgeschoss:
Werkstatt: (Ausstellungsraum) 63,07 m²
Galerie 1: 11,82 m²
Büro: 50,23 m²
Vorraum Damen-WC: 3,38 m²
Vorraum Herren-WC: (Küchenzeile) 4,06 m²
Damen-WC: 1,35 m²
Herren-WC: 1,35 m²
Vorraum Herren-WC: 1,44 m²
Galerie 2: 18,48 m²
Nutzfläche Erdgeschoss: 155,18 m²
Bruttonutzfläche gesamt: 231,84 m²
Abzug für Putz 3%: 6,96 m²
Nettonutzfläche: 224,88 m²
Lage
Ruhige Lage am Rand des Gewerbegebietes "Am Weidenbach" im Südosten von Weilheim.
Grundriss
EG_Wohnen
>
>
OG_Wohnen
>
>
EG_Büro
>
>
Keller
>
>
Adresse
Am Weidenbach 17, 82362 Weilheim in Oberbayern
Interessante Orte
Preis- und Lageinformationen
Preistrend für Bestandsimmobilien in Weilheim in Oberbayern