Das sehr gepflegte Doppelhaus in Massivbauweise befindet sich in guter, ruhiger Süd-Lage in zweiter Reihe. Es hat die Anmutung eines Einfamilienhauses durch einen eigenen Eingangsbereich auf der Ostseite des Hauses, der Nachbar hat seinen Eingang auf der Westseite.
- Baujahr 2006
- Energieeffizienzklasse: B, Gaszentralheizung
- 133,4 qm Wohnfläche + 60,9 qm Nutzfläche im Keller
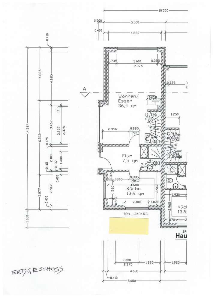
Erdgeschoss:
Diele/Eingangsbereich (7,5 qm)
Gäste-WC mit Dusche (2,9 qm)
Geräumige, sehr gut ausgestattete schöne Einbauküche (13,9 qm)
Wohn-Esszimmer mit Kaminofen und Zugang in den Garten mit Süd-Terrasse (36,4 qm)
Schöne Holztreppe in den Keller und nach oben
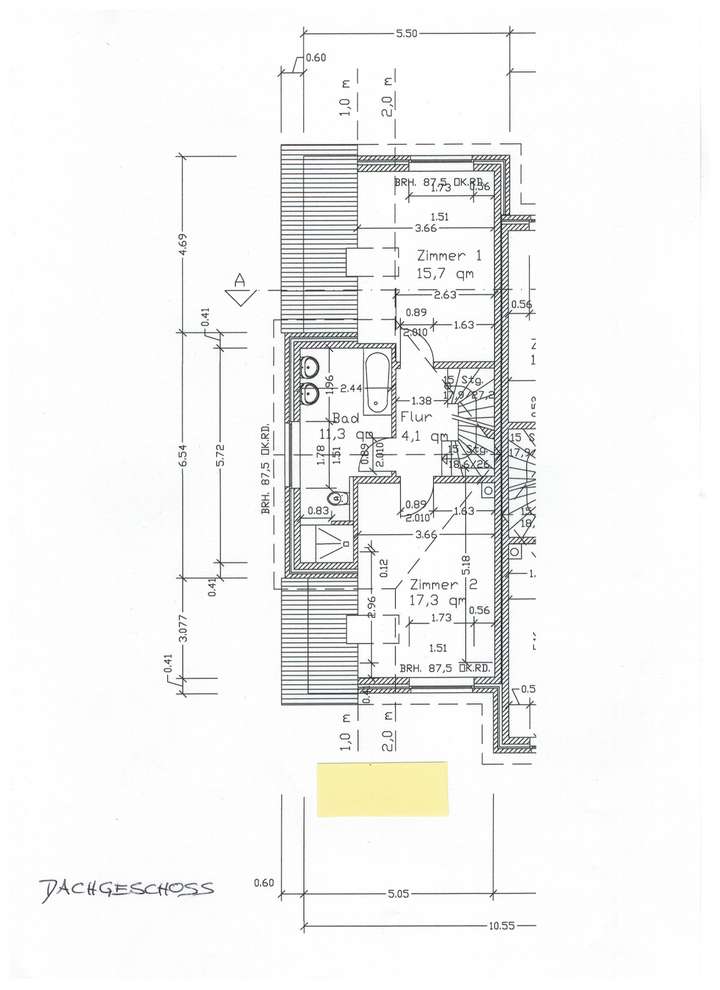
Dachgeschoss:
2 Zimmer (15,6 und 17,3 qm)
Vollbad mit Dusche, Badewanne, 2 Waschtischen und großem Fenster (11,3 qm)
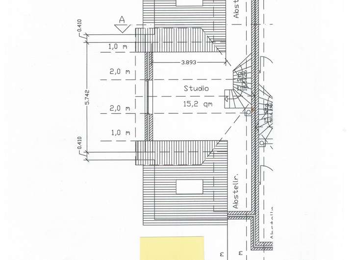
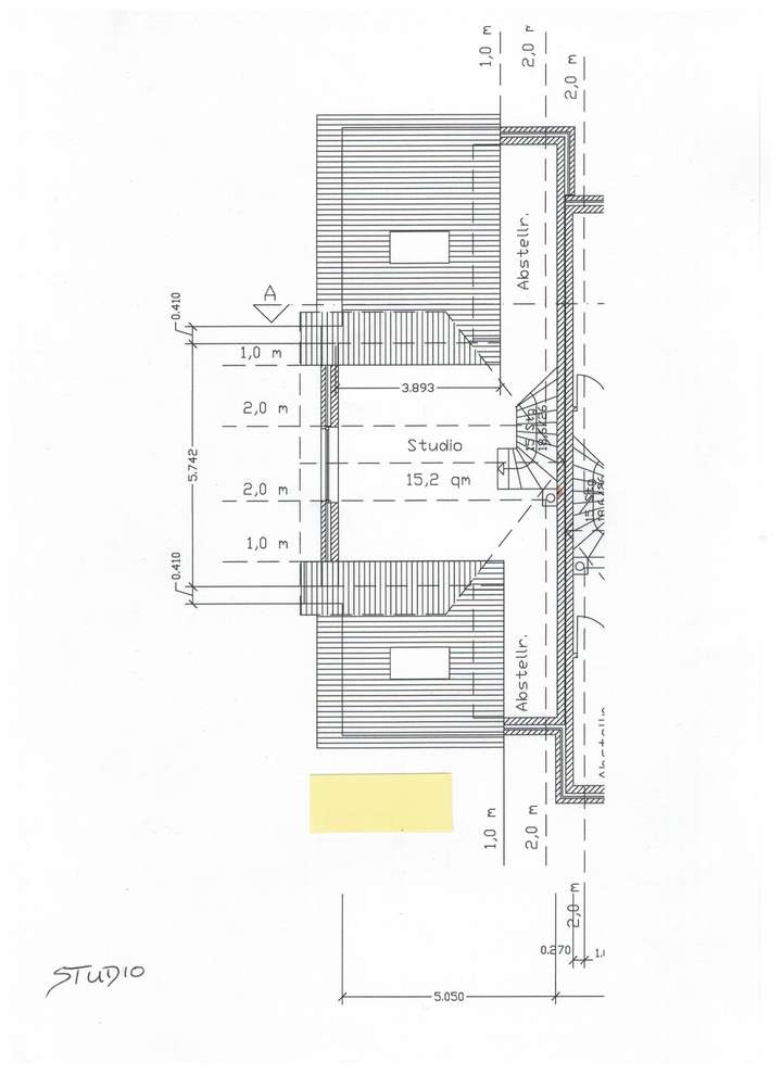
Dachstudio:
Herrlicher Weitblick (15,2 qm) dazu zusätzlicher seitlicher Abstellbereich
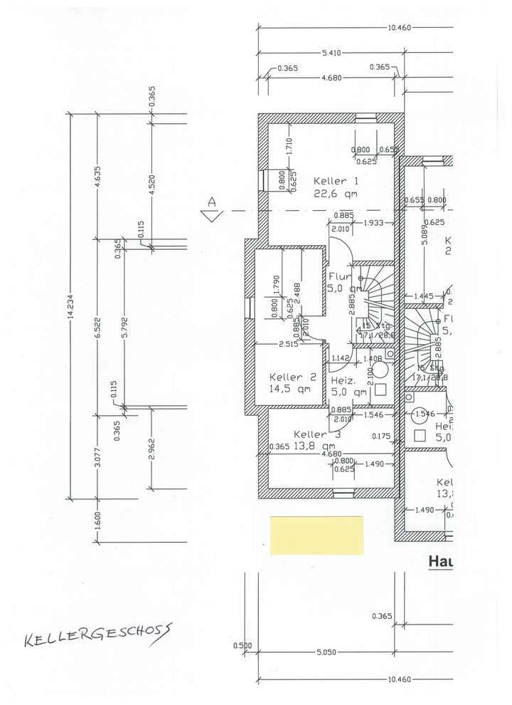
Keller:
Bodenbelag Fliesen und Laminat
Arbeitszimmer/Hobbyraum mit Fenster, Laminatboden (22,6 qm)
Kellerraum 1 (14,5 qm)
Kellerraum 2 (13,8 qm)
Kellerraum 3 (5,0 qm )
Kellerflur (5,0 qm)
- Eigener Außenstellplatz
- Gartenhaus für Fahrräder usw.
Die S-Bahnstation Wohltorf ist gut zu Fuß zu erreichen.
Die Kaltmiete beträgt 1.800,- + Sonstige Nebenkostenvorauszahlung 150,- Euro.
Gas, Wasser, Strom und Internet/TV muss der Mieter selber anmelden.
Von privat zu vermieten: Doppelhaushälfte auf sonnigem Süd-Grundstück in Reinbek Stadt
21465 Reinbek
Die vollständige Adresse der Immobilie erhalten Sie vom Anbieter.
Auf Karte anzeigen
Die vollständige Adresse der Immobilie erhalten Sie vom Anbieter.
Infos
| Haustyp | Doppelhaushaelfte |
|---|---|
| Etagenzahl | 3 |
| Wohnfläche ca. | 133 m2 |
| Nutzfläche | 60,9 m2 |
| Grundstücksfläche | 350 m2 |
| Bezugsfrei ab | 1.4.2026 |
| Zimmer | 4 |
| Schlafzimmer | 2 |
| Badezimmer | 2 |
| Haustiere | Nach Vereinbarung |
| Garage/Stellplatz | Außenstellplatz |
| Anzahl Garage/Stellplatz | 1 |
Kosten
| Kaltmiete |
1.800 € |
|---|---|
| Nebenkosten | + 150 € |
| Heizkosten | keine Angabe |
| Gesamtmiete | 1.950 € (zzgl. Heizkosten) |
| Kaution o. Genossenschaftsanteile | 5.400,00 |
Weiter mieten oder doch kaufen?
Wer in Miete wohnt, überweist dem Vermieter im Laufe der Jahre hohe Summen, die sich
auch in die eigenen vier Wände investieren lassen könnten.
Bausubstanz & Energieausweis
| Baujahr | 2006 |
|---|---|
| Objektzustand | Neuwertig |
| Qualität der Austattung | Gehoben |
| Heizungsart | Gas-Heizung |
| Wesentliche Energieträger | Gas |
| Energieausweis | liegt vor |
| Energieausweistyp | Bedarfsausweis |
| Energieverbrauchskennwert | 69,6 kWh/(m²*a) |
| Energieeffizienzklasse | B |
69,6
kWh/(m²*a)
Energieeffizienzklasse B
- A+
- A
- B
- C
- D
- E
- F
- G
- H
- 0
- 25
- 50
- 75
- 100
- 125
- 150
- 175
- 200
- 225
- >250
Beschreibung des Objekts
Ausstattung
Kaminofen
Lage
Reinbek bietet alle Einkaufsmöglichkeiten des täglichen Bedarfes. Apotheken, Bäcker, Gastronomie, ärztliche Versorgung und alle Schulen sind schnell erreichbar. Freizeitgestaltung: Tennis, Hockey und Reiten Fußläufig erreichbar, Radfahren und Wandern im nahen Sachsenwald.
Die Hamburger Innenstadt erreicht man mit dem PKW über die B 5 oder mit der S-Bahn in ca. 30 Fahrminuten. Die Auffahrten zur BAB 24 Hamburg-Berlin und zur BAB 1 Hamburg-Lübeck liegen nur 10 bzw. 20 Minuten entfernt.
Grundriss
EG
>
>
DG
>
>
Studio
>
>
Keller
>
>
Adresse
21465 Reinbek
Interessante Orte
Preis- und Lageinformationen
Preistrend für Bestandsimmobilien in Reinbek