Einfamilienhaus mit großem Garten
Dieses charmante Haus (Baujahr 1933) bietet auf ca. 170 m2 Wohnfläche und 7 Zimmern über drei Etagen viel Platz für Familien. Das ca. 1.050 m2 große Grundstück mit großem Garten ist ein Highlight – Grünblick und viel Freiraum. Carport mit 2 Stellplätzen vorhanden; Haustiere nach Absprache.
Ruhige Lage in Olching mit Top-Anbindung: S-Bahn in ca. 2 Gehminuten, schnelle Verbindung nach München. Einkaufsmöglichkeiten, Schulen, Kitas sowie Freizeitangebote befinden sich im nahen Umfeld.
Aktuell in Aufbereitung – Besichtigungen nach Absprache möglich – Mietbeginn nach Vereinbarung.
Aufteilung
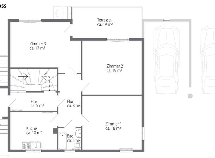
• Erdgeschoss (EG): 3 Zimmer, Küche, Bad, Flur, Zugang Terrasse
• Obergeschoss (OG): 3 Zimmer, Küche, Bad, Flur, Balkon
• Dachgeschoss (DG): 1 weiteres Zimmer; Dachboden als Nutzfläche
• Keller: mehrere Kellerräume plus Waschküche (Nutzfläche)
• Außenbereich: großer Garten, Carport (2 Stellplätze)
Energie & Heizung
• Zentralheizung (Heizöl), Richtwert Verbrauch ca. 4.500 L/Jahr
• Energieausweis liegt vor und wird zur Besichtigung bereitgestellt
Kosten & Konditionen
• Kaltmiete: 2.550 € / Monat
• Nebenkosten gesamt: 450 € / Monat, davon:
– Heizung: 330 € (Öl; Richtwert, jährliche Abrechnung nach tatsächlichem Verbrauch/Preis)
– Kalte NK: 120 € (Wasser/Abwasser, Müll, Schornsteinfeger/Wartung)
• Strom: separat (eigener Vertrag der Mieter)
• Kaution: 7.650 € (3 Nettokaltmieten)
• Bezugsfrei ab: voraussichtlich Ende Februar 2026
Hinweise: Keller und nicht ausgebauter Dachboden sind Nutzfläche. Fotos zeigen teils den aktuellen Zustand; aktualisierte Fotos folgen. Angaben ohne Gewähr.
Einfamilienhaus in Olching – 7 Zi., ca. 170 m² Wfl., 1.050 m² Grdst., Carport, S-Bahn 2 min
82140 Olching
Die vollständige Adresse der Immobilie erhalten Sie vom Anbieter.
Auf Karte anzeigen
Die vollständige Adresse der Immobilie erhalten Sie vom Anbieter.
Infos
| Haustyp | Einfamilienhaus |
|---|---|
| Etagenzahl | 3 |
| Wohnfläche ca. | 170 m2 |
| Nutzfläche | 60 m2 |
| Grundstücksfläche | 1.050 m2 |
| Bezugsfrei ab | 1.2.2026 |
| Zimmer | 7 |
| Schlafzimmer | 7 |
| Badezimmer | 2 |
| Haustiere | Nach Vereinbarung |
| Garage/Stellplatz | Carport |
| Anzahl Garage/Stellplatz | 2 |
Kosten
| Kaltmiete |
2.550 € |
|---|---|
| Nebenkosten | + 120 € |
| Heizkosten | + 330 € |
| Gesamtmiete | 3.000 € (zzgl. Heizkosten) |
| Kaution o. Genossenschaftsanteile | 7.650,00 |
Weiter mieten oder doch kaufen?
Wer in Miete wohnt, überweist dem Vermieter im Laufe der Jahre hohe Summen, die sich
auch in die eigenen vier Wände investieren lassen könnten.
Bausubstanz & Energieausweis
| Baujahr | 1933 |
|---|---|
| Letzte Sanierung | 2004 |
| Objektzustand | Gepflegt |
| Qualität der Austattung | Normal |
| Heizungsart | Öl-Heizung |
| Wesentliche Energieträger | Öl |
| Energieausweis | liegt vor |
| Energieausweistyp | Verbrauchsausweis |
| Energieverbrauchskennwert | 384,9 kWh/(m²*a) |
| Energieeffizienzklasse | H |
384,9
kWh/(m²*a)
Energieeffizienzklasse H
- A+
- A
- B
- C
- D
- E
- F
- G
- H
- 0
- 25
- 50
- 75
- 100
- 125
- 150
- 175
- 200
- 225
- >250
Beschreibung des Objekts
Lage
Wohnen im Grünen, schnell in der Stadt: Das Haus liegt in einer ruhigen Wohnstraße in Olching (Münchner Westen). Die S-Bahn-Station (S3) ist in ca. 2 Gehminuten erreichbar; so sind Innenstadt und Jobstandorte komfortabel angebunden. Nahversorgung (Supermärkte, Bäcker, Drogerie), Ärzte/Apotheken sowie Kitas, Grund- und weiterführende Schulen befinden sich im nahen Umfeld. Für Erholung und Sport bieten die Amperauen, der Olchinger See und zahlreiche Vereine vielfältige Möglichkeiten. Mit dem Auto sind Sie über die B471 sowie den Anschluss an die Autobahnring-/Autobahnverbindungen schnell in der Region unterwegs.
Grundriss
Feursstr - Erdgeschoss
>
>
Feursstr - Obergeschoss
>
>
Feursstr - Dachgeschoss
>
>
Feursstr - Kellergeschoss
>
>
Adresse
82140 Olching
Interessante Orte
Preis- und Lageinformationen
Preistrend für Bestandsimmobilien in Olching