Sie suchen nach einem ruhigen Rückzugsort für sich alleine – dann sind Sie hier genau richtig.
Die Hauptwohnräume erstrecken sich ebenerdig auf einer Etage, was das Wohnen in einem Bungalow so einzigartig macht. Bis zuletzt wurde das Objekt Eigengenutzt und sucht nun erstmalig nette Mieter! Sie betreten das Wohnhaus über einen Windfang und werden anschließend von einem wirklich sehr großzügigen Wohn- und Essbereich in Empfang genommen. Hierüber gelangen Sie auf eine nahezu uneinsehbare Terrasse mit toller Südausrichtung, auf welcher Sie den nächsten Sommer ausgiebig genießen dürfen. Das umliegende Grundstück ist schön angelegt und darf alleinig vom künftigen Mieter genutzt und gepflegt werden.
Das gesamte Wohnhaus wurde durch einen Malerbetrieb gestrichen, sodass keine Renovierungsarbeiten anstehen. Es stehen zwei Tageslichtbäder zur Verfügung, welche dem Grundbaujahr entsprechen, aber sehr gepflegt sind. Die weitere Aufteilung können Sie den Grundrissen entnehmen. Die Küche ist derzeit noch möbliert, kann aber auf Wunsch auch eigen eingerichtet werden. Eine angrenzende Speisekammer ist überaus praktisch.
Abschließend führt Sie eine Treppe in das großzügige Kellergeschoss. Zur rechten befindet sich ein Hobbyraum mit Tageslicht und Heizung, beispielsweise als Büro oder auch als Jugendzimmer nutzbar. Des Weiteren finden Sie hier nebst Heizungsraum zwei geräumige Kellerräume vor, einmal mit Waschmaschinen- und Trocknerstellplatz.
Eine Doppelgarage gewährt Ihnen Platz für Ihre PKW und Gartenutensilien, die Hintertür führt praktisch in den Garten.
Die Beheizung erfolgt mittels einer eigenen Ölheizung, die Heizkosten sind bereits in den Nebenkosten berücksichtigt. Durch den Mieter eigenständig anzumelden wären: Wasser, Strom sowie die Müllgebühren. Betrachtet man die letzten Werte, können hier mit etwa 75,00€/Monat gerechnet werden – Selbstverständlich ist dieser Wert aber Verbrauchsabhängig!
Überzeugen Sie sich bei einem Termin vor Ort!
BUNGALOW ZUR MIETE IN SCHÖNER STADTRANDLAGE!!!
63741 Aschaffenburg
Die vollständige Adresse der Immobilie erhalten Sie vom Anbieter.
Auf Karte anzeigen
Die vollständige Adresse der Immobilie erhalten Sie vom Anbieter.
Infos
| Etagenzahl | 2 |
|---|---|
| Wohnfläche ca. | 150 m2 |
| Grundstücksfläche | 490 m2 |
| Bezugsfrei ab | frei |
| Zimmer | 4 |
| Schlafzimmer | 3 |
| Badezimmer | 2 |
| Garage/Stellplatz | Garage |
| Anzahl Garage/Stellplatz | 1 |
Kosten
| Kaltmiete |
1.690 € |
|---|---|
| Nebenkosten | + 400 € |
| Heizkosten | in Nebenkosten enthalten |
| Gesamtmiete | 2.090 € |
| Kaution o. Genossenschaftsanteile | 3 Monatsmieten |
Weiter mieten oder doch kaufen?
Wer in Miete wohnt, überweist dem Vermieter im Laufe der Jahre hohe Summen, die sich
auch in die eigenen vier Wände investieren lassen könnten.
Bausubstanz & Energieausweis
| Baujahr | 1972 |
|---|---|
| Objektzustand | Gepflegt |
| Heizungsart | Öl-Heizung |
| Wesentliche Energieträger | Öl |
| Energieausweis | liegt vor |
| Energieausweistyp | Bedarfsausweis |
| Energieverbrauchskennwert | 279,1 kWh/(m²*a) |
| Energieeffizienzklasse | H |
279,1
kWh/(m²*a)
Energieeffizienzklasse H
- A+
- A
- B
- C
- D
- E
- F
- G
- H
- 0
- 25
- 50
- 75
- 100
- 125
- 150
- 175
- 200
- 225
- >250
Beschreibung des Objekts
Ausstattung
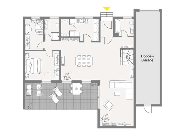
ERDGESCHOSS:
Windfang – geräumiges Wohn-/Esszimmer mit Zugang zur Terrasse und Gartengrundstück – zwei Schlafzimmer – Küche – ein Duschbad – ein Wannenbad
UNTERGESCHOSS:
großer beheizter Hobbyraum, ideales Arbeitszimmer – zwei großzügige Kellerräume mit Waschmaschinenanschluss – Heizraum
*** Garten
*** Doppelgarage
Haustierhaltung nach Absprache
Lage
Der angebotene Bungalow befindet sich in ruhiger Wohnlage im Aschaffenburger Stadtteil „Damm“. Einkaufsmöglichkeiten sowie der Aschaffenburger Hauptbahnhof sind in nur wenigen Gehminuten zu erreichen, zudem besteht eine sehr gute Stadtbusanbindung. Die Autobahnanschlüsse A3 (Frankfurt-Würzburg) und A45 (Richtung Hanau – Dortmund) sowie die Schnellstraße B469 (Richtung Obernburg – Miltenberg) liegen nur wenige Fahrminuten von diesem Wohngebiet entfernt.
Sonstige Angaben
Sonstiges/Hinweis:
Für einen Innenbesichtigungstermin stehen wir Ihnen gerne zur Verfügung. Besichtigungstermine sind, nach vorheriger Absprache mit unserem Büro, kurzfristig möglich. Bei schriftlicher Anfrage bitten wir um Angabe Ihrer kompletten Anschrift und Ihrer Telefonnummer(n).
Sämtliche Angaben zum Mietobjekt basieren auf erteilten Informationen der Eigentümer oder Dritter. Für die Richtigkeit und Vollständigkeit kann deshalb keine Haftung übernommen werden.
Grundriss
Grundriss Erdgeschoss
>
>
Grundriss Untergeschoss
>
>
Adresse
63741 Aschaffenburg
Interessante Orte
Preis- und Lageinformationen
Preistrend für Bestandsimmobilien in Damm