Willkommen in Ihrem neuen Zuhause - einem Ort, an dem Geschichte und Zukunft harmonisch verschmelzen.
Dieses außergewöhnliche, denkmalgeschützte Einfamilienhaus mit Ursprüngen aus dem Jahr 1482 wird derzeit mit hohem Anspruch kernsaniert und steht ab 01. März 2026 zum Erstbezug nach Sanierung zur Verfügung. Hier vereinen sich historischer Charakter, hochwertige Substanz und moderner Wohnkomfort zu einem einzigartigen Wohnensemble.
Das Haus überzeugt durch zeitgemäße Technik wie Fußbodenheizung, effiziente Wärmepumpe, Highspeed-Internet bis 200.000 Mbit/s sowie die Vorbereitung für eine Wallbox. Ein stilvoller Kachelofen sorgt in der kalten Jahreszeit für behagliche Wärme, während die sonnige Südterrasse mit Gartenanteil Raum für Erholung im Freien bietet. Ein besonderes Highlight ist der originale Gewölbekeller aus dem Ursprungsbaujahr, der vielseitig nutzbar ist.
Aktueller Baufortschritt:
Die Fassadenarbeiten im Außenbereich - einschließlich Putz- und Malerarbeiten - sind bereits abgeschlossen. Ab dem 12.01.2026 beginnen die Innenputzarbeiten. Das Objekt befindet sich weiterhin im fortgeschrittenen Baustellenzustand.
Gerne stelle ich Ihnen auf Anfrage aktuelle Bilder vom Baustellenfortschritt zur Verfügung. Bitte haben Sie Verständnis dafür, dass eine öffentliche Veröffentlichung von Innenbildern erst nach vollständiger Fertigstellung erfolgt, da ich das Haus ausschließlich im fertigen und finalen Zustand präsentieren möchte.
Optionale Erweiterungen nach Absprache:
Sollte Interesse an einer Erweiterung der Wohn- oder Nutzfläche bestehen - beispielsweise durch zusätzliche Flächen im Dachstuhl - oder an weiteren Stellplätzen bzw. Lager- und Abstellflächen, können diese nach individueller Absprache hinzugemietet werden.
Dieses Haus ist mehr als ein Mietobjekt.
Es ist ein Ort mit Geschichte, Charakter und Zukunft - geschaffen für Menschen, die das Besondere schätzen und modernes Wohnen in außergewöhnlichem Ambiente suchen.
Denkmalgeschütztes Einfamilienhaus - Erstbezug nach Kernsanierung
83569 Vogtareuth
Die vollständige Adresse der Immobilie erhalten Sie vom Anbieter.
Auf Karte anzeigen
Die vollständige Adresse der Immobilie erhalten Sie vom Anbieter.
Infos
| Haustyp | Einfamilienhaus |
|---|---|
| Etagenzahl | 2 |
| Wohnfläche ca. | 150 m2 |
| Nutzfläche | 60 m2 |
| Grundstücksfläche | 300 m2 |
| Bezugsfrei ab | 01.03.2026 |
| Zimmer | 5 |
| Schlafzimmer | 3 |
| Badezimmer | 1 |
| Garage/Stellplatz | Garage |
| Anzahl Garage/Stellplatz | 1 |
Kosten
| Kaltmiete |
2.225 € |
|---|---|
| Nebenkosten | + 400 € |
| Heizkosten | keine Angabe |
| Gesamtmiete | 2.625 € |
| Kaution o. Genossenschaftsanteile | 6675 EUR |
Weiter mieten oder doch kaufen?
Wer in Miete wohnt, überweist dem Vermieter im Laufe der Jahre hohe Summen, die sich
auch in die eigenen vier Wände investieren lassen könnten.
Bausubstanz & Energieausweis
| Baujahr | 1482 |
|---|---|
| Objektzustand | Erstbezug nach Sanierung |
| Wesentliche Energieträger | Umweltwärme |
| Energieausweis | laut Gesetz nicht erforderlich |
Beschreibung des Objekts
Ausstattung
Terrasse, Garten, Keller, Vollbad, Duschbad, Einbauküche, Gäste-WC, Kamin, Parkett, Fliesen
Bemerkungen:
•ca. 150 m² Wohnfläche
•ca. 60 m² Nutzfläche (DG/Speicher)
•5 Zimmer (Wohnzimmer, Esszimmer, Küche, Schlafzimmer, Kinderzimmer/Büro)
•Obergeschoss: Badezimmer mit Dusche, Badewanne & WC
•Erdgeschoss: separates WC
•Hauswirtschaftsraum
•Terrasse: ca. 30 m² Südterrasse mit Gartenanteil
•3 Stellplätze inklusive
•Abstellräume nach Absprache
•Fußbodenheizung im ganzen Haus
•Zweiglasige Holzfenster (denkmalgerecht)
•Kachelofen im Wohnzimmer
•Originaler Gewölbekeller (nicht in Wohnfläche)
•inkl. Einbauküche
•Wärmepumpe & neue Elektrik mit FI-Schutz
•Wallbox-Vorbereitung
•Internet: Highspeed-DSL bis 200.000
•Erstbezug nach Kernsanierung
Kann nach Rücksprache auch voll möbliert gemietet werden
Lage
Die Immobilie liegt in Weikering, einem Ortsteil von Vogtareuth im Landkreis Rosenheim.
•Rosenheim: ca. 13 Min (13 km)
•Wasserburg am Inn: ca. 15 Min (17-20 km)
•München: ca. 55-60 Min über die A8
•Salzburg: ca. 60 Min über die A8
Natur, Seen (Waldsee, Simssee, Rinssee) und Freizeitmöglichkeiten direkt vor der Tür - und gleichzeitig eine gute regionale Infrastruktur mit Einkauf, Schulen und Ärzten.
Infrastruktur (im Umkreis von 5 km):
Lebensmittel-Discount, Kindergarten, Grundschule, Öffentliche Verkehrsmittel
Sonstige Angaben
Heizungsart: Fußbodenheizung
•Einzugstermin: 01.03.2026
•Baujahr: 1482
•Denkmalschutz
•Haustiere nach Vereinbarung
•Aktuell keine Innenfotos, da sich das Haus in der Sanierung befindet. Besichtigungen nach Absprache möglich.
Makleranfragen nicht erwünscht. Nach § 7 UWG sind unaufgeforderte Kontaktaufnahmen durch Makler ohne ausdrückliche Einwilligung des Empfängers verboten!
ohne-makler (OM) ist weder Anbieter noch Vermittler der Immobilie. OM betreibt eine Plattform für Immobilieneigentümer, die unter anderem die gleichzeitige Veröffentlichung einzelner Inserate auf mehreren Immobilienportalen ermöglicht. Die Inhalte dieser Inserate werden ausschließlich von Dritten verantwortet. Für die Richtigkeit, Vollständigkeit oder Rechtmäßigkeit der Angaben übernimmt OM keine Haftung. Hinweise auf mögliche Rechtsverstöße können jederzeit gemeldet werden und werden nach Prüfung umgehend bearbeitet.
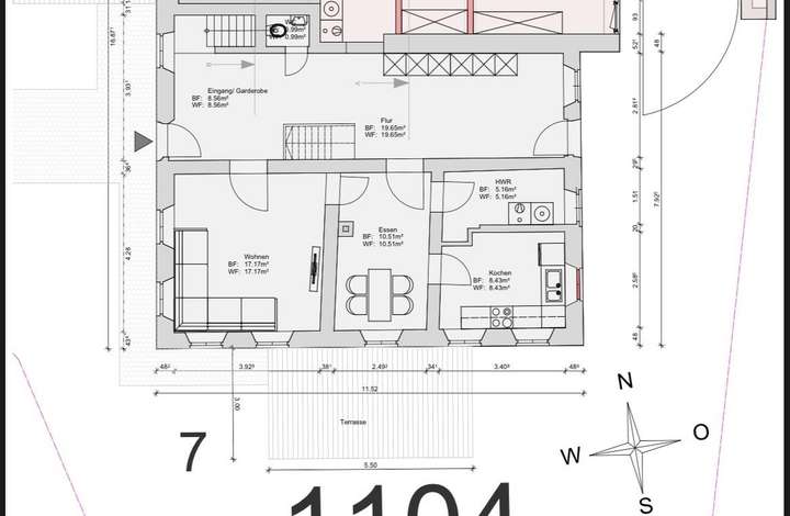
Grundriss
Grundriss
>
>
Grundriss
>
>
Adresse
83569 Vogtareuth
Interessante Orte
Preis- und Lageinformationen
Preistrend für Bestandsimmobilien in Vogtareuth