Diese elegante und architektonisch unverwechselbare Villenhälfte befindet sich in einmaliger Lage am Ende des renommierten Areals „Belvedere Jungfernsee“ und begeistert mit einem direkten, unverbaubaren Blick auf den Jungfernsee. Die idyllische Umgebung, die ganztägige Sonneneinstrahlung sowie die außergewöhnliche Ruhe verleihen dieser Immobilie eine besondere Lebensqualität – ein Zuhause für höchste Ansprüche.
Die im Jahr 2018 in massiver Bauweise errichtete Villa entspricht modernsten energetischen Standards und überzeugt durch ihre zeitlose Eleganz, Großzügigkeit und hochwertige Ausstattung. Auf rund 190 m² Wohnfläche verteilen sich fünf durchdacht konzipierte Zimmer über drei Ebenen. Der untere Wohnbereich beeindruckt mit bodentiefen Holzfenstern, edlem Echtholzparkett sowie einer lichten Deckenhöhe von ca. drei Metern, die ein offenes, helles und repräsentatives Raumgefühl schaffen. Der mit Holz beplankte Übergang zur Terrasse und zum Garten wirkt nahezu nahtlos und erweitert den Wohnraum optisch. Die offen gestaltete Wohnküche fügt sich harmonisch in das Raumkonzept ein, bietet ausreichend Platz für die gesamte Familie und rundet das wohnliche Ambiente perfekt ab. Ein Gäste-WC befindet sich im großzügig gestalteten, gefliesten Eingangsbereich.
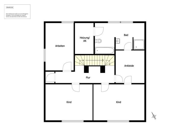
Im ersten Obergeschoss erwartet Sie der private Schlafbereich. Zwei vielseitig nutzbare Arbeits- oder Kinderzimmer, ein großzügiges Badezimmer mit Badewanne und bodengleicher Dusche, ein Masterbedroom mit komfortablem Ankleidebereich sowie ein praktischer Hauswirtschaftsraum bieten höchsten Wohnkomfort. Auch auf dieser Etage sorgen bodentiefe Holzfenster in allen Räumen für ein lichtdurchflutetes Wohngefühl.
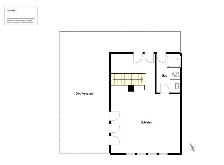
Das Dachgeschoss eröffnet einen weiteren großzügigen Wohnbereich, der sich ideal als separater Rückzugsort beispielsweise für einen heranwachsenden Teenager eignet. Ein modernes Badezimmer mit ebenerdiger Dusche ergänzt diese Etage. Ein besonderes Highlight ist die ca. 50 m² große Sonnenterrasse mit hochwertigem Douglasienholzbelag. Sie lädt zum Verweilen ein und bietet einen beeindruckenden Panoramablick auf den Jungfernsee, der perfekte Ort, um den Tag stilvoll ausklingen zu lassen. Beheizt wird das gesamte Haus über eine hochmoderne Wandheizung, die für ein angenehmes Raumklima sorgt.
Der Garten ist bereits strukturell angelegt, verfügt über eine 3.000-Liter-Regenwasserzisterne und bietet Ihnen dennoch ausreichend Gestaltungsspielraum für individuelle Wünsche. Gepflanzte Obstbäume rahmen das Grundstück harmonisch ein. Ein PKW-Stellplatz sowie ein Carport stehen auf der Einfahrt zur Verfügung. Der nahegelegene Ufer- und Wanderweg ist über eine feste Treppe in unmittelbarer Umgebung bequem erreichbar.
Exklusive Villenhälfte mit unverbaubarem Seeblick am Jungfernsee
14469 Potsdam
Die vollständige Adresse der Immobilie erhalten Sie vom Anbieter.
Auf Karte anzeigen
Die vollständige Adresse der Immobilie erhalten Sie vom Anbieter.
Infos
| Haustyp | Doppelhaushaelfte |
|---|---|
| Wohnfläche ca. | 190 m2 |
| Grundstücksfläche | 525 m2 |
| Bezugsfrei ab | Sofort verfügbar |
| Zimmer | 5 |
| Schlafzimmer | 4 |
| Badezimmer | 2 |
| Haustiere | Nach Vereinbarung |
| Garage/Stellplatz | Außenstellplatz |
| Anzahl Garage/Stellplatz | 1 |
Kosten
| Kaltmiete |
3.500 € |
|---|---|
| Nebenkosten | + 464 € |
| Heizkosten | in Nebenkosten enthalten |
| Gesamtmiete | 3.964 € |
| Kaution o. Genossenschaftsanteile | 3 Nettokaltmieten |
Weiter mieten oder doch kaufen?
Wer in Miete wohnt, überweist dem Vermieter im Laufe der Jahre hohe Summen, die sich
auch in die eigenen vier Wände investieren lassen könnten.
Bausubstanz & Energieausweis
| Baujahr | 2018 |
|---|---|
| Objektzustand | Vollständig Renoviert |
| Qualität der Austattung | Gehoben |
| Heizungsart | Fernwärme |
| Energieausweis | liegt vor |
| Energieausweistyp | Bedarfsausweis |
| Energieverbrauchskennwert | 70,0 kWh/(m²*a) |
| Energieeffizienzklasse | B |
70,0
kWh/(m²*a)
Energieeffizienzklasse B
- A+
- A
- B
- C
- D
- E
- F
- G
- H
- 0
- 25
- 50
- 75
- 100
- 125
- 150
- 175
- 200
- 225
- >250
Beschreibung des Objekts
Ausstattung
• Villenhälfte am Jungfernsee mit Wasserblick
• Befristeter Mietvertrag für max. 4 Jahre
• Mineralischer Außenputz
• 5 Zimmer auf ca. 190 m²
• Zwei Bäder (Bad mit Wanne und Dusche im 1. OG, Duschbad im Dachgeschoss)
• Einbauküche mit separater Speisekammer
• Offener Kamin im Wohnzimmer
• Lichte Deckenhöhe ca. 3 m mit Holzbalken
• Einbruchhemmende, bodentiefe Holzfenster in allen Räumen
• Massivholzdielen in allen Wohnräumen
• Wandheizung
• Kalkinnenputz
• Tonziegelwände mit mineralischer Kammerdämmung
• Alle Wohn- und Aufenthaltsräume sind mit SAT-Anschluss versorgt
• Rollläden im Erd- und Obergeschoss
• Gäste-WC
• Hauswirtschaftsraum
• ca. 50 m² große Sonnenterrasse auf dem Dach
• ca. 400 m² Garten mit Südausrichtung
• Carport auf eingefriedetem Grundstück
• Ruhige Einbahnstraße am Ende des Wohnareals
Lage
Direkt am Jungfernsee, auf einer kleinen Anhöhe gelegen, entstand hier in den letzten Jahren ein komplett neuer Stadtteil - "Belvedere Jungfernsee". Rund 15 Hektar umfasst das Wohngebiet am Jungfernsee, aufgeteilt in 150 Baugrundstücke zwischen 600 und 2.000 m². Extravagante Villen und großzügige Einfamilienhäuser, die sich durch ein Höchstmaß an Exklusivität auszeichnen, liegen idyllisch am herrlichen Rad- und Wanderweg Jungfernsee, bieten Badestellen oder Laufstrecken südwestlich des Naturschutzgebietes Sacrower See und dem gegenüber liegenden Königswald.
Die Nauener Vorstadt, ein begehrter Stadtteil mit geschlossenem Stadtbild von hoher Gestaltungsqualität und alten Baumbeständen, beherbergt weitläufige Parkanlagen, das Schloss Cecilienhof und vieles mehr. Die Liegenschaft befindet sich unmittelbar an der Parkanlage Villa Jacobs und dem Neuer Garten, der ebenfalls das einmalige Marmorpalais mit seinem unvergleichlichen Blick auf den Heiliger See beherbergt. Am Rande des Neuen Gartens liegt die historische Gastronomie Meierei mit Biergarten am Wasser. Ebenfalls sehenswert sind die Russische Kolonie "Alexandrowka“ sowie das restaurierte Belvedere auf dem Pfingstberg. Von hier haben Sie eine herrliche Aussicht über die "Insel" Potsdams und die wasser- und naturreiche Umgebung - bei klarem Wetter bis weit nach Berlin und zum Fernsehturm am Alexanderplatz.
Potsdam ist weit über Brandenburgs und Berlins Grenzen hinweg für seine Lebensqualität und Attraktivität bekannt. Die Kulturlandschaften wurden 1990 von der UNESCO als größtes Ensemble der deutschen Welterbestätten in die Liste des Weltkultur- und Naturerbes der Menschheit aufgenommen. Als ehemalige Residenzstadt der Könige von Preußen, mit einzigartigen Schloss- und Parkanlagen, besticht die Stadt in der Gegenwart zudem mit seinen exklusiven Wohnqualitäten. Der spektakuläre, barocke Stadtkern mit all seinen attraktiven Einkaufs- und Flaniermöglichkeiten ist in nur wenigen Gehminuten erreicht. Erholungssuchende finden hier genügend schöne Orte der Ruhe und Entspannung, denn Potsdam besteht zu 2/3 aus Grünflächen der Parkanlagen und ist umgeben von den Gewässern der Havel.
Diverse Einkaufsmöglichkeiten (BIO Company, REWE, ALDI, DM) Cafés und Bäckereien befinden sich in unmittelbarer Nachbarschaft. Ein Kindergarten und eine neu errichtete Schule sind durch besonders gut ausgebaute Radwege auch für Ihre Kinder sicher zu erreichen. In der benachbarten Fritz-von-der-Lancken-Straße wird zudem eine weitere Grundschule errichtet. Auch die traditionell evangelische Grundschule in der Großen Weinmeisterstraße ist für die Kinder gut per Rad zu erreichen.
Die Potsdamer Innenstadt erreichen sie mit der Tram 96, dem Bus 604 oder dem Auto in nur wenigen Minuten. Mit dem PKW benötigen Sie ca. 35 Minuten zum Berliner Kurfürstendamm. Die B2 ist in wenigen Metern erreicht und bringt Sie wahlweise in Richtung Potsdam Glienicke / Berlin Spandau oder in Richtung Potsdamer Innenstadt. Nauen erreichen Sie in einer ca. 30 min. Autofahrt. Die Potsdamer Innenstadt erreichen sie mit der Tram 96 oder dem Auto in nur wenigen Minuten.
Wo sonst können Sie inmitten von Parks, Schlössern und Seen in einer historischen Stadt wohnen - nur eine halbe Stunde von einer europäischen Metropole entfernt? Die vielfältigsten Möglichkeiten bieten sich Ihnen, die in dieser Konstellation und nahen Verbundenheit zwischen Potsdam und der Hauptstadt Berlin weltweit ihresgleichen suchen.
Grundriss
Grundriss Erdgeschoss
>
>
Grundriss 1. Obergeschoss
>
>
Grundriss 2. Obergeschoss
>
>