WELCOME HOME. WELCOME TO YOUR FUTURE.
Dein Zuhause ist mehr als vier Wände – es ist dein Rückzugsort, dein Investment, dein neuer Lebensabschnitt.
White&Black macht Wohneigentum bezahlbar, modern und flexibel.
Jetzt ist der richtige Moment, um anzukommen.
Dein Zuhause, so individuell wie du.
51545 Waldbröl
Die vollständige Adresse der Immobilie erhalten Sie vom Anbieter.
Auf Karte anzeigen
Die vollständige Adresse der Immobilie erhalten Sie vom Anbieter.
Infos
| Haustyp | Einfamilienhaus |
|---|---|
| Wohnfläche ca. | 120 m2 |
| Nutzfläche | 0 m2 |
| Grundstücksfläche | 659 m2 |
| Zimmer | 3 |
| Schlafzimmer | 3 |
| Badezimmer | 1 |
| Anzahl Garage/Stellplatz | 0 |
Kosten
| Kaltmiete |
2.350 € |
|---|---|
| Nebenkosten | keine Angabe |
| Heizkosten | keine Angabe |
| Gesamtmiete | 2.350 € |
Weiter mieten oder doch kaufen?
Wer in Miete wohnt, überweist dem Vermieter im Laufe der Jahre hohe Summen, die sich
auch in die eigenen vier Wände investieren lassen könnten.
Bausubstanz & Energieausweis
| Baujahr | 2026 |
|---|---|
| Qualität der Austattung | Gehoben |
| Heizungsart | Wärmepumpe |
Beschreibung des Objekts
Ausstattung
THINK BLACK – All in.
- Schlüsselfertig & sofort bezugsbereit – ohne zusätzlichen Aufwand
- Kompletter Innenausbau – keine Handwerkersuche, kein Planungsstress
- Durchdachte Raumaufteilung – moderne Wohnkonzepte für jede Lebensphase
- Innovative Haustechnik – zukunftssicheres Wohnen mit höchster Effizienz
- Maximaler Komfort – alles fertig, alles drin
Für alle, die einfach einziehen und losleben wollen!
Lage
Dieses Grundstück für ein Haus, befindet sich in Waldbröl, einer charmanten Stadt im Süden des Oberbergischen Kreises in Nordrhein-Westfalen. Die Lage vereint das Beste aus zwei Welten: naturnahes, ruhiges Wohnen inmitten des Bergischen Landes und zugleich eine gute Anbindung an die Städte Köln (ca. 60 km) und Bonn (ca. 55 km).
Die Umgebung ist geprägt von sanften Hügeln, Wäldern und Wiesen – ideal für Familien, Naturfreunde und alle, die Wert auf Lebensqualität legen. In Waldbröl finden Sie eine ausgezeichnete Infrastruktur: Schulen, Kindergärten, Einkaufsmöglichkeiten, Ärzte, ein modernes Krankenhaus sowie vielfältige Freizeit- und Sportangebote sind vor Ort.
Die Verkehrsanbindung ist durch die Bundesstraßen B256 und B478 gewährleistet. Ein gut ausgebautes ÖPNV-Netz verbindet Waldbröl mit den umliegenden Orten wie Gummersbach, Nümbrecht, Morsbach und Windeck.
Waldbröl bietet Ihnen ein familienfreundliches Umfeld mit hohem Erholungswert – ein Ort zum Ankommen und Wohlfühlen.
Sonstige Angaben
Das Haus ist projektiert inkl. Grundstück. Das Grundstück wird in Kommission angeboten bzw. direkt von Dritten verkauft. Daher kann der genannte Preis aufgrund aktueller Marktsituationen schwanken.
Die Bauabwicklung kann kurzfristig nach Grundstückserwerb begonnen werden. Bilder zeigen möglicherweise Sonderausstattungen, die auf Wunsch gegen Aufspreis zusätzlich angeboten werden können.
Erhalte in deinem persönlichen Beratungsgespräch kostenlos alle wichtigen Informationen zu diesem Projekt, insbesondere: Lage und Bebauungsmöglichkeiten des Baugrundstücks, Baukosten-Kalkulation, Finanzierungs- u. Förderungsmöglichkeiten sowie detaillierte Architektur- uund Grundrissplanung.
Wir freuen uns darauf, dich beraten zu dürfen!
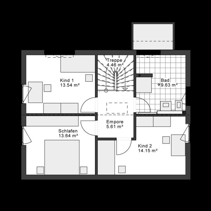
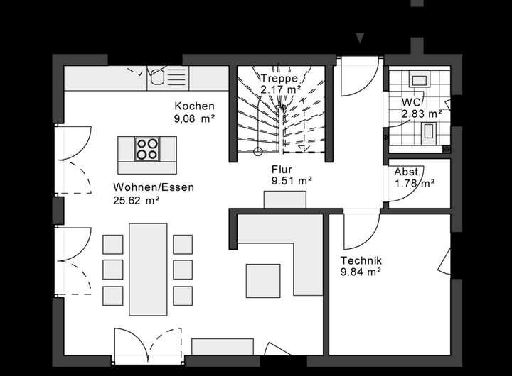
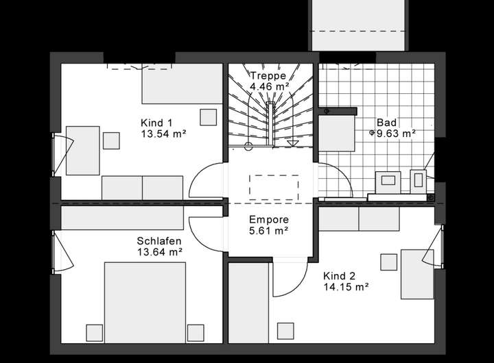
Grundriss
Grundriss EG
>
>
Grundriss OG
>
>
Adresse
51545 Waldbröl
Interessante Orte
Preis- und Lageinformationen
Preistrend für Bestandsimmobilien in Waldbröl