Sie suchen einen Neubau KFW40 mit QNG-Siegel (ökologische und nachhaltige Baumaterialien) und Glasfaser Anschluss?
Dann ist das hier Ihre Traum-Doppelhaushälfte mit TOP Lage im Grünen.
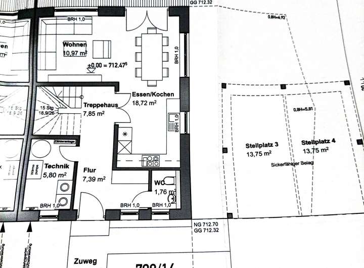
Sie betreten die Doppelhaushälfte durch den großzügigen Flur nebst Gäste-WC, der zum großen Wohn-Essbereich mit angrenzender, nach Süd-Westen ausgerichteter Terrasse führt. Im EG befindet sich zudem der Technikraum/Waschküche.
Im 1.OG befinden sich drei sehr helle Zimmer sowie ein Badezimmer mit großer Wanne und ebenerdiger Dusche. In allen Zimmern ist Eichenparkettboden verlegt.
Im ausgebauten DG befindet sich ein großer heller Raum, der als Schlaf-, Büro, Hobby, Gästezimmer je nach Bedarf Verwendung finden könnte. Zudem ist das Haus mit Glasfaser für schnelles Internet ausgestattet.
Der großzügige Doppel-Carport (27qm) bietet viel Platz für Fahrzeuge, Fahrräder und vieles mehr. Der Garten ist ebenerdig und bietet gerade in den Abendstunden Sonne und Blick ins Grüne. Das Haus verfügt über eine Solaranlage mit Batteriespeicher und Wärmepumpe, welche die Energiekosten sehr niedrig halten. Im gesamten Haus, auch in den Nasszellen ist eine Fußbodenheizung verlegt.
Das Haus befindet sich nahe dem gemütlichen Marktplatz von Peiting mit seinen einladenden Cafes und dennoch in sehr ruhiger Lage in einem Neubaugebiet. Ein Einkaufszentrum mit Supermärkten und Drogerie liegt nur 5 Gehminuten entfernt. Auch die Altstadt von Schongau (4km entfernt) ist gefahrlos über einen Fahrradweg erreichbar.
Bezugsfertig in ca 1 Monat
Für Rückfragen cbrunn7atweb.de
Neubau DHH Top Lage KFW 40 QNG Siegel ökologisch mit Glasfaseranschluß
86971 Peiting
Die vollständige Adresse der Immobilie erhalten Sie vom Anbieter.
Auf Karte anzeigen
Die vollständige Adresse der Immobilie erhalten Sie vom Anbieter.
Infos
| Haustyp | Doppelhaushaelfte |
|---|---|
| Etagenzahl | 2 |
| Wohnfläche ca. | 123 m2 |
| Grundstücksfläche | 321 m2 |
| Zimmer | 5 |
| Schlafzimmer | 5 |
| Badezimmer | 1 |
| Haustiere | Ja |
Kosten
| Kaltmiete |
1.750 € |
|---|---|
| Nebenkosten | keine Angabe |
| Heizkosten | in Nebenkosten enthalten |
| Gesamtmiete | 1.750 € (zzgl. Nebenkosten) |
Weiter mieten oder doch kaufen?
Wer in Miete wohnt, überweist dem Vermieter im Laufe der Jahre hohe Summen, die sich
auch in die eigenen vier Wände investieren lassen könnten.
Bausubstanz & Energieausweis
| Baujahr | 2026 |
|---|---|
| Objektzustand | Erstbezug |
| Qualität der Austattung | Gehoben |
| Heizungsart | Wärmepumpe |
| Wesentliche Energieträger | Solarheizung |
| Energieausweis | liegt zur Besichtigung vor |
Beschreibung des Objekts
Lage
Peiting, gelegen im Herzen des Pfaffenwinkels, bietet eine charmante Mischung aus ländlicher Idylle und guter Infrastruktur. Die Stadt verfügt über eine solide Nahversorgung mit Supermärkten, Bäckereien und Ärzten. Zahlreiche Freizeitmöglichkeiten wie Radwege, Wanderrouten und kulturelle Angebote prägen die Region. Die Anbindung an öffentliche Verkehrsmittel ist gegeben und ermöglicht eine gute Erreichbarkeit umliegender Orte.
Grundriss
Haus7
>
>
Haus8
>
>
Haus10
>
>
Adresse
86971 Peiting
Interessante Orte
Preis- und Lageinformationen
Preistrend für Bestandsimmobilien in Peiting