Das Einfamilienhaus wurde 2020 gebaut und liegt zentral in der Kernstadt von Neustadt. Mit rund 155 m² Wohnfläche, verteilt auf drei Etagen, bietet es ausreichend Platz für eine Familie. Insgesamt stehen fünf Zimmer zur Verfügung. Die Ausstattung ist modern und entspricht dem Baujahr.
Zusätzlich gibt es im Keller einen vollständig ausgebauten und gedämmten Raum, der sich sehr gut als Wohn-, Arbeits- oder Hobbyraum nutzen lässt. Aufgrund der geringeren Deckenhöhe von unter 2,50 m ist dieser Raum nicht in der angegebenen Wohnfläche von 155 m² enthalten.
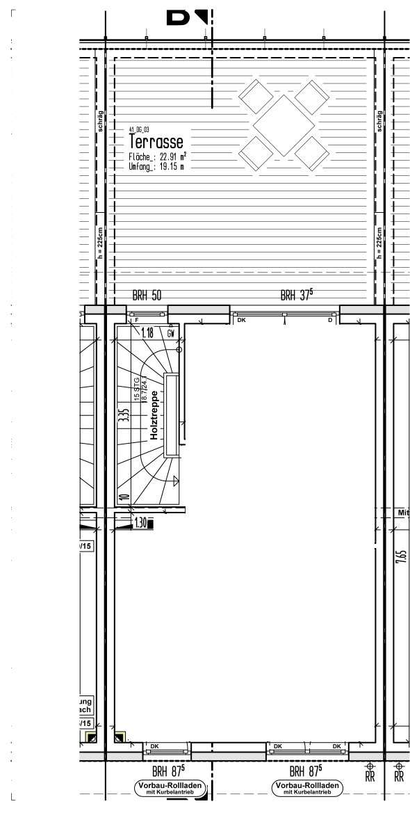
Ein besonderes Merkmal des Hauses ist die große Dachterrasse mit weitem Ausblick bis zum Hambacher Schloss.
Zum Haus gehört ein etwa 200 m² großer Garten mit einer Pergula und einem gemauerten Pizzaofen. Eine moderne Einbauküche ist vorhanden und im Mietpreis enthalten. Ebenfalls im Mietpreis inbegriffen sind zwei Stellplätze.
Die monatliche Kaltmiete beträgt 1.600 Euro. Die Nebenkosten liegen bei etwa 140 Euro und beinhalten nicht die Heizkosten. Die Beheizung erfolgt über das Fernwärmekraftwerk direkt im Gebiet.
Die Lage ist sehr alltagstauglich: Edeka, der DM-Drogeriemarkt sowie der Bahnhof Neustadt-Böbig sind in etwa zwei Minuten zu Fuß erreichbar. Die Schule in Neustadt-Böbig liegt rund fünf Gehminuten entfernt. Zusätzlich befindet sich das Haus in der Nähe des Geländes der zukünftigen Landesgartenschau.
Insgesamt handelt es sich um ein modernes Wohnhaus in zentraler Lage mit kurzen Wegen zu Einkaufsmöglichkeiten, Schule und öffentlichem Nahverkehr.
Attraktives Reihenmittelhaus in Neustadt mit 155qm Baujahr 2020 sucht Mieter
Am Speyerbach 41,
67433 Neustadt an der Weinstraße
Auf Karte anzeigen
Infos
| Haustyp | Reihenmittelhaus |
|---|---|
| Etagenzahl | 3 |
| Wohnfläche ca. | 155 m2 |
| Nutzfläche | 155 m2 |
| Grundstücksfläche | 200 m2 |
| Bezugsfrei ab | 1.4.2026 |
| Zimmer | 4 |
| Schlafzimmer | 2 |
| Badezimmer | 2 |
| Haustiere | Nach Vereinbarung |
| Garage/Stellplatz | Außenstellplatz |
| Anzahl Garage/Stellplatz | 2 |
Kosten
| Kaltmiete |
1.600 € |
|---|---|
| Nebenkosten | + 140 € |
| Heizkosten | + 200 € |
| Gesamtmiete | 1.940 € (zzgl. Heizkosten) |
| Kaution o. Genossenschaftsanteile | 4.800,00 |
Weiter mieten oder doch kaufen?
Wer in Miete wohnt, überweist dem Vermieter im Laufe der Jahre hohe Summen, die sich
auch in die eigenen vier Wände investieren lassen könnten.
Bausubstanz & Energieausweis
| Baujahr | 2020 |
|---|---|
| Letzte Sanierung | 2020 |
| Qualität der Austattung | Gehoben |
Beschreibung des Objekts
Grundriss
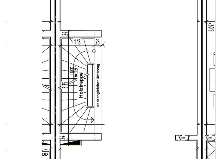
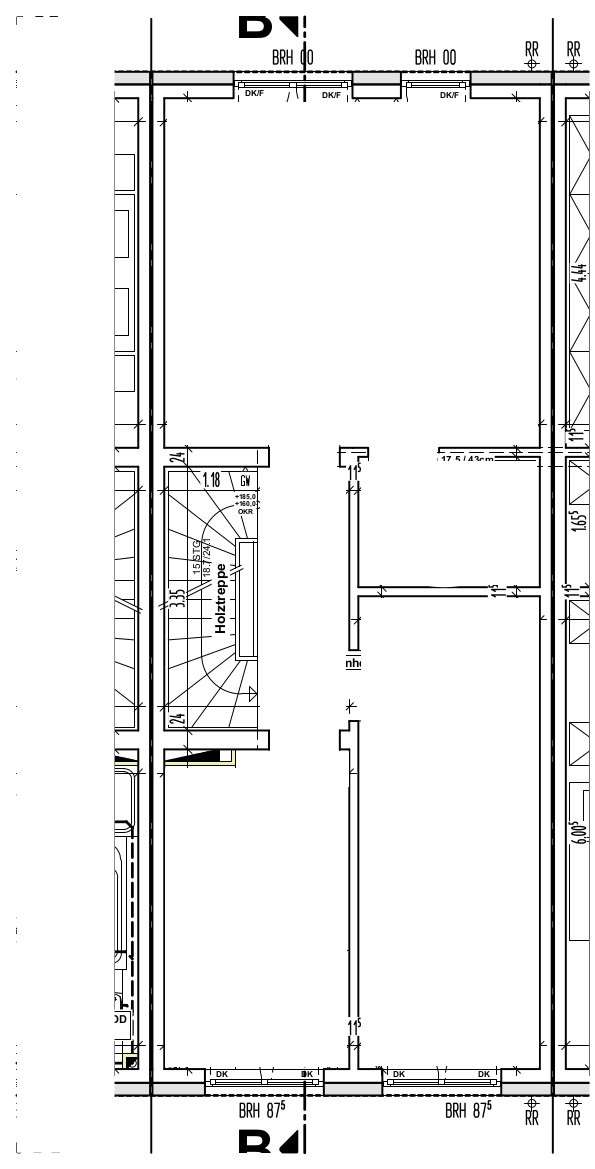
Obergeschoss
>
>
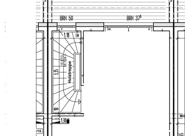
Dachgeschoss
>
>
Keller
>
>
Erdgeschoss_8
>
>
Adresse
Am Speyerbach 41, 67433 Neustadt an der Weinstraße
Interessante Orte
Preis- und Lageinformationen
Preistrend für Bestandsimmobilien in Kernstadt