Wir möchten Ihr Interesse wecken für ein luxeriöses Reihenendhaus am ehemaligen Gelände des Freibads West auch Wohnen am Stadtwald genannt.
Mit seiner stilvollen und hochwertigen Ausstattung sowie seiner Größe und durchdachten Raumaufteilung begeistert das Haus Designliebhaber und Familien mit Kinder gleichermaßen.
Das Haus im Detail:
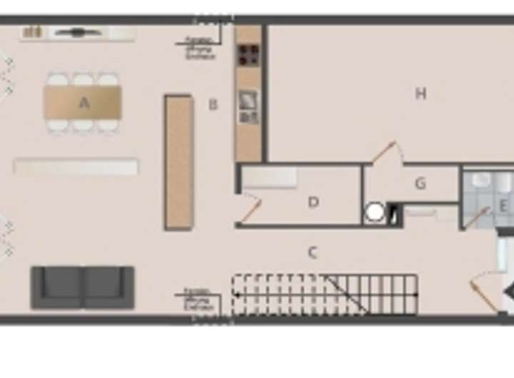
Erdgeschoss:
- heller offener Wohn- und Essbereich mit Zugang zu Terrasse und Garten
- moderne grifflose Designerküche mit NEFF/Bosch Elektrogeräten in schwarz Hochglanz und leistungsstarkem Abluft-Dunstabzug
- nützlicher großer Vorratsraum direkt neben der Küche mit Anschlussmöglichkeiten für Waschmaschine und Trockner und Zugang zur Garage,
- schickes Gäste-WC mit Spiegel, Waschtischanlage und Wandschränken
1. Obergeschoss
:- riesige Sonnendachterrasse (ca. 30 qm) mit farblich abgestimmten WPC-Dielen- großzügiges Vollbad mit großer begehbarer Regendusche, Wandnische, großem Spiegelschrank, Waschtischunterschrank und Designwanne (halb freistehend)
- lichtdurchfluteter Flur und Galeriebereich
- Elternschlafzimmer mit großzügiger Ankleide und Ausgang zur Dachterrasse
- Gästezimmer (auch als Büro oder Kinderzimmer nutzbar).
2. Obergeschoss:
- modernes Duschbad mit Regenbrause, Spiegelschrank, Waschtischunterschrank und praktischer Nische
- 3 mögliche Schlafbereiche bzw. Kinderzimmer
- Flur mit zusätzlicher Spielfläche für Kinder
Außenanlagen:
- pflegeleichter Garten mit großformatig gefliester Sonnenterrasse und ausreichend Spielmöglichkeiten für Kinder
- Design-Sonnendach Q-Bus über die gesamte Terrassenbreite, elektrisch bedienbar, mit zusätzlicher Senkrechtmarkise zum Garten
- Hochwertige Cortenstahl Pflanzgefäße zu allen Seiten hin mit Bewässerungssystem
- Praktisches Gartentor seitlich an der Straße
Exklusives Reihenendhaus am Stadtwald
38440 Wolfsburg
Die vollständige Adresse der Immobilie erhalten Sie vom Anbieter.
Auf Karte anzeigen
Die vollständige Adresse der Immobilie erhalten Sie vom Anbieter.
Infos
| Haustyp | Reiheneckhaus |
|---|---|
| Etagenzahl | 3 |
| Wohnfläche ca. | 200 m2 |
| Nutzfläche | 25 m2 |
| Grundstücksfläche | 239 m2 |
| Bezugsfrei ab | 15.08.2025 |
| Zimmer | 6 |
| Schlafzimmer | 5 |
| Badezimmer | 3 |
| Garage/Stellplatz | Garage |
| Anzahl Garage/Stellplatz | 1 |
Kosten
| Kaltmiete |
2.200 € |
|---|---|
| Nebenkosten | + 450 € |
| Heizkosten | keine Angabe |
| Gesamtmiete | 2.650 € (zzgl. Heizkosten) |
Weiter mieten oder doch kaufen?
Wer in Miete wohnt, überweist dem Vermieter im Laufe der Jahre hohe Summen, die sich
auch in die eigenen vier Wände investieren lassen könnten.
Bausubstanz & Energieausweis
| Baujahr | 2016 |
|---|---|
| Objektzustand | Neuwertig |
| Qualität der Austattung | Luxus |
| Heizungsart | Fernwärme |
| Wesentliche Energieträger | Fernwärme |
| Energieausweis | liegt vor |
| Energieausweistyp | Bedarfsausweis |
| Energieverbrauchskennwert | 82,1 kWh/(m²*a) |
Beschreibung des Objekts
Ausstattung
- zeitlose, pflegeleichte Klinkerfassade in sandstein-grau
- bodentiefe Fensterelemente außen anthrazit, innen weiß
- integrierte und von innen zugängliche Garage mit extra Stauraum und elektrischem Rolltor
- Elli Wallbox für schnelles Laden zuhause
- Glasfaseranschluss über die WobCom
- Solarthermieanlage für nachhaltige Warmwasseraufbereitung und extragroßer Warmwasserspeicher
- Fußbodenheizung mit separaten Heizkreisläufen für die einzelnen Räume
- elektrische Rollläden
- Netzwerkdosen und TV Anschlüsse in den Wohn- und Schlafräumen
- Designtreppe mit Glasgeländer in Hochglanz schwarz
- Moderne, helle, pflegeleichte Dielen (Kork-Designboden) in sämtlichen Wohn- und Schlafbereichen sowie in den Fluren
- lichte Raumhöhen von 2,60 m in allen Geschossen
- Passgenaue Innenjalousien und Plissees an fast allen Fenstern
Lage
In zentraler und dennoch ruhiger Lage auf dem beliebten Wolfsburger Laagberg befindet sich das Wohnquartier "Wohnen am Stadtwald". Das ansprechend gestaltete und äußerst gepflegte Wohngebiet wurde auf dem ehemaligen Areal des Freibad West errichtet und überzeugt durch seine hervorragender Infrastruktur und vielfältige Spielmöglichkeiten für Kinder. Sämtliche Geschäfte des täglichen Bedarfs sind fußläufig zu erreichen. Der direkt angrenzende Stadtwald lädt zum Joggen und Spazierengehen ein. Der Park mit Spielplatz direkt vor dem Objekt bietet tolle Möglichkeiten für Erwachsene und Kinder.
Sonstige Angaben
Bitte beachten Sie folgende Voraussetzungen, bevor Sie eine Anfrage stellen:
- Mindestmietzeit 2 Jahre
- maximal 5 Personen
- aktuelle Schufaauskunft
- die letzten drei Gehaltsabrechnungen
- eine positive Vorvermieterbescheinigung (keine Mietschulden, Hausordnung eingehalten)
Anfragen ohne diese Voraussetzungen werden nicht beantwortet, wir bitten um Verständnis, dass auch bei uns die Zeit nicht endlich ist, vielen Dank!
Grundriss
Grundriss Erdgeschoss
>
>
Grundriss 1. OG
>
>
Grundriss 2. OG
>
>
Adresse
38440 Wolfsburg
Interessante Orte
Preis- und Lageinformationen
Preistrend für Bestandsimmobilien in Laagberg