Das ursprünglich 1934 erbaute Stadtvilla wurde in den Jahren 2022/2023 komplett kernsaniert und auf Neubauniveau gehoben (Erstbezug). Diese Stadtvilla präsentiert sich in einem absolut neuwertigen Zustand. Dabei wurde der historische Charakter behutsam mit modernstem Wohnkomfort vereint.
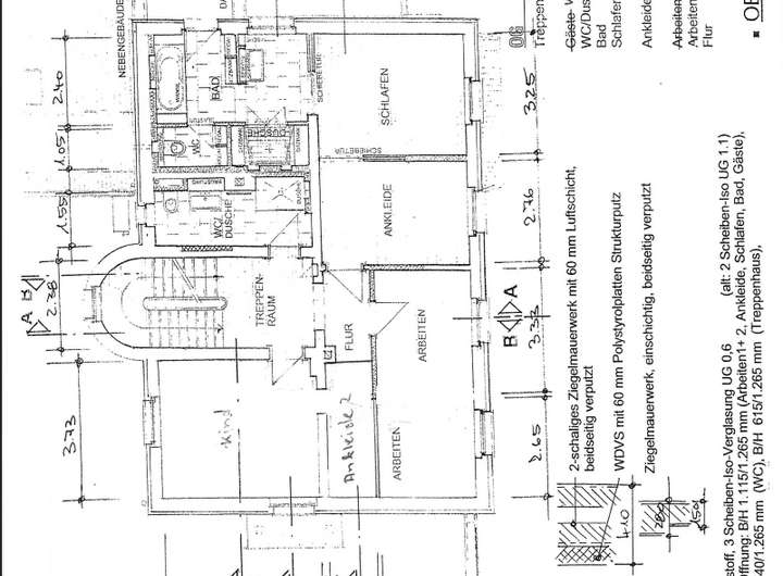
Auf rund 280 m² Wohnfläche und 8 Zimmern bietet die hochwertige Immobilie viel Platz für Familien oder die Kombination aus Wohnen und Arbeiten.
Raumaufteilung & Wohngefühl Das großzügige Wohnzimmer ist offen konzipiert und schließt an das Esszimmer mit lichtdurchfluteten Erkerfenstern und Wohnküche mit angeschlossenem Essbereich an. Neben dem Elternbereich mit Ankleide stehen Ihnen bis zu vier weitere Räume zur Verfügung, die flexibel als Kinder-, Gäste- oder Arbeitszimmer genutzt werden können (insgesamt 5 mögliche Schlafzimmer).
Das Haus ist voll unterkellert und bietet somit viel Stauraum. Drei eigene Außenstellplätze sowie der Garten mit Terrasse runden das Angebot ab.
Repräsentative Stadtvilla mit 8 Zimmern in Dessau-Nord
06844 Dessau-Roßlau
Die vollständige Adresse der Immobilie erhalten Sie vom Anbieter.
Auf Karte anzeigen
Die vollständige Adresse der Immobilie erhalten Sie vom Anbieter.
Infos
| Haustyp | Villa |
|---|---|
| Etagenzahl | 3 |
| Wohnfläche ca. | 280 m2 |
| Nutzfläche | 325 m2 |
| Grundstücksfläche | 410 m2 |
| Bezugsfrei ab | 1.5.2026 |
| Zimmer | 8 |
| Schlafzimmer | 5 |
| Badezimmer | 2 |
| Haustiere | Nach Vereinbarung |
| Garage/Stellplatz | Außenstellplatz |
| Anzahl Garage/Stellplatz | 3 |
Kosten
| Kaltmiete |
3.065 € |
|---|---|
| Nebenkosten | + 238 € |
| Heizkosten | keine Angabe |
| Gesamtmiete | 3.303 € (zzgl. Heizkosten) |
| Kaution o. Genossenschaftsanteile | 9.195,00 |
Weiter mieten oder doch kaufen?
Wer in Miete wohnt, überweist dem Vermieter im Laufe der Jahre hohe Summen, die sich
auch in die eigenen vier Wände investieren lassen könnten.
Bausubstanz & Energieausweis
| Baujahr | 1934 |
|---|---|
| Letzte Sanierung | 2023 |
| Objektzustand | Erstbezug nach Sanierung |
| Qualität der Austattung | Gehoben |
| Heizungsart | Gas-Heizung |
| Wesentliche Energieträger | Gas |
| Energieausweis | liegt vor |
| Energieausweistyp | Bedarfsausweis |
| Energieverbrauchskennwert | 71,0 kWh/(m²*a) |
| Energieeffizienzklasse | B |
71,0
kWh/(m²*a)
Energieeffizienzklasse B
- A+
- A
- B
- C
- D
- E
- F
- G
- H
- 0
- 25
- 50
- 75
- 100
- 125
- 150
- 175
- 200
- 225
- >250
Beschreibung des Objekts
Ausstattung
Sämtliche Leitungen (Gas, Wasser, Strom) sowie Elektro und die Bodenbeläge wurden vollständig erneuert.
Küche Das Herzstück – Die gehobene Wohnküche: Ein absolutes Highlight ist die sehr gehobene Einbauküche im Erdgeschoss. Sie wurde als kommunikatives Zentrum konzipiert, ist offen in den Wohnbereich integriert und besticht durch edle Materialien, eine großzügige Arbeitsfläche und Marken-Einbaugeräte (Miele und Bora) der Spitzenklasse – hier wird Kochen zum Erlebnis. Für die Nutzung wird zzgl. ein monatlicher Abschlag von 150 € berechnet.
Wellness & Sanitär Der Wellness-Bereich im OG umfasst insgesamt zwei luxuriöse Tageslichtbäder (ein Masterbad mit Wanne und Dusche sowie ein weiteres Duschbad) und ein separates Gäste-WC im EG.
Heizung & Energie Im gesamten Haus ist eine separat steuerbare Fußbodenheizung verlegt, gespeist von einer neuen Gasbrennwerttherme (Hybrid-ready). Die Sanierung erfolgte energetisch auf höchstem Niveau (Energieeffizienzklasse B), was dank umfangreicher Dämmmaßnahmen an Dach und Fassade sowie neuer 3-fach verglaster Fenster für dauerhaft niedrige Nebenkosten sorgt.
Technik & Smart Home Es ist eine umfangreiche Netzwerkverkabelung (CAT7) in den Wohnräumen vorhanden – ideal für Home-Office. Für Sicherheit und Komfort sorgen ein installiertes Sicherheitskamerasystem und die Vorbereitung für Smart-Home-Anwendungen (z. B. elektrische Rollläden).
Lage
Die Immobilie befindet sich in einer begehrten Wohnlage im innerstädtischen Bereich Nord von Dessau. Diese Gegend zeichnet sich durch eine hervorragende Balance aus Zentrumsnähe und historischem Wohnumfeld aus.
Infrastruktur & Alltag: Alle Einrichtungen des täglichen Bedarfs sind schnell erreichbar. Supermärkte, Ärzte und Apotheken befinden sich in der direkten Umgebung. Für Familien ist die Lage ideal: Kindergärten und Schulen (Grundschulen, Sekundarschule sowie Gymnasien) sind fußläufig oder sicher mit dem Fahrrad erreichbar.
Freizeit & Erholung: Die Bauhausstadt Dessau bietet eine hohe Lebensqualität. Der nahegelegene Schillerpark oder das Georgium laden zu Spaziergängen und sportlichen Aktivitäten im Grünen ein. Kulturelle Einrichtungen wie das Anhaltische Theater oder das Bauhaus Museum sind ebenfalls nur wenige Minuten entfernt.
Verkehrsanbindung: Hervorragende Anbindung an den öffentlichen Nahverkehr (Bus/Bahn).
Der Hauptbahnhof Dessau ist schnell erreichbar.
Gute Anbindung an die Bundesstraße B184 und die Autobahn A9 für Pendler Richtung Leipzig oder Berlin.
Adresse
06844 Dessau-Roßlau
Interessante Orte
Preis- und Lageinformationen
Preistrend für Bestandsimmobilien in Innerstädtischer Bereich Nord