Die kleine exklusive Wohnanlage mit privatem Charakter befindet sich unmittelbar an der Diekseepromenade im Herzen von Bad Malente - Holsteinische Schweiz. Sämtliche Freizeiteinrichtungen, der Erholungswald mit Nordic-Walking Park, das Schwimmbad, das Strandbad, der Bahnhof, der ZOB, diverse Einkaufsmöglichkeiten und nicht zuletzt zahlreiche Ärzte und Kliniken befinden sich in der unmittelbaren Umgebung bzw. sind in wenigen Gehminuten zu erreichen. Serviceleistungen, wie z.B. Lebensmittel- und Getränkelieferung direkt ins Haus, sind in Malente genauso selbstverständlich wie zuverlässige Pflegedienste für die Rundumversorgung in der eigenen Wohnung.
Das ruhige Haus mit nur 6 Wohnungen verfügt über einen Fahrstuhl (vom Keller bis zum Dachgeschoss). Die Wohnung ist neben dem großzügigen Wohnzimmer (mit Balkon) mit einer Einbauküche, 2 Schlafzimmern und 2 Bädern (Wanne und Dusche) ausgestattet. Sämtliche Wohnräume und die Küche haben einen hochwertigen und pflegeleichten Bodenbelag in Edelholz-Look (Vinyl-Design-Planke). Aufgrund der Mansarddachform sind Dachschrägen in sehr gemäßigtem Rahmen vorhanden. In jedem Wohnraum gibt es gerade Stellwände für große Möbel. Die beiden Bäder sind mit Wand- und Bodenfliesen, Handtuchheizkörpern und Fußbodenheizung versehen. Ein Abstellraum in der Wohnung, ein weiterer Abstellraum im Kellergeschoss (auch über den Fahrstuhl erreichbar) und ein Carport mit Geräteraum (z-B. für Fahrräder) runden das Angebot ab.
Die Wohnung verfügt über einen Glasfaseranschluss.
Die Treppenhausreinigung, der Müllservice und die Grundstückspflege werden von Dienstleistungsunternehmen ausgeführt. Auch diese Positionen sind bereits in den Betriebskosten enthalten.
Exklusives + barrierefreies Wohnen am Dieksee mit Top-Seeblick, Bad Malente
23714 Malente
Die vollständige Adresse der Immobilie erhalten Sie vom Anbieter.
Auf Karte anzeigen
Die vollständige Adresse der Immobilie erhalten Sie vom Anbieter.
Infos
| Wohnungskategorie | Dachgeschoss |
|---|---|
| Etage | 2 von |
| Wohnfläche ca. | 114 m2 |
| Nutzfläche | 5 m2 |
| Bezugsfrei ab | nach Vereinbarung |
| Zimmer | 3 |
| Schlafzimmer | 2 |
| Badezimmer | 2 |
| Haustiere | Ja |
| Garage/Stellplatz | Carport |
| Anzahl Garage/Stellplatz | 1 |
Kosten
| Kaltmiete |
1.550 € |
|---|---|
| Nebenkosten | + 250 € |
| Heizkosten | + 90 € |
| Gesamtmiete | 1.890 € (zzgl. Heizkosten) |
| Kaution o. Genossenschaftsanteile | 4650,00 |
Weiter mieten oder doch kaufen?
Wer in Miete wohnt, überweist dem Vermieter im Laufe der Jahre hohe Summen, die sich
auch in die eigenen vier Wände investieren lassen könnten.
Bausubstanz & Energieausweis
| Baujahr | 2008 |
|---|---|
| Letzte Sanierung | 2025 |
| Objektzustand | Vollständig Renoviert |
| Qualität der Austattung | Gehoben |
| Heizungsart | Gas-Heizung |
| Wesentliche Energieträger | Gas |
| Energieausweis | liegt vor |
| Energieausweistyp | Verbrauchsausweis |
| Energieverbrauchskennwert | 63,0 kWh/(m²*a) |
| Energieeffizienzklasse | B |
63,0
kWh/(m²*a)
Energieeffizienzklasse B
- A+
- A
- B
- C
- D
- E
- F
- G
- H
- 0
- 25
- 50
- 75
- 100
- 125
- 150
- 175
- 200
- 225
- >250
Beschreibung des Objekts
Lage
Die barrierefreie Wohnung im Dachgeschoss eines exklusiven und ruhigen Wohnhauses hat eine außergewöhnlich schöne Lage direkt am Dieksee. Genießen Sie ganzjährig den traumhaften unverbaubaren Seeblick von Ihrem großzügigen Wohnzimmer und natürlich dem Südwest-Balkon. Leben Sie dort, wo andere Urlaub machen.
Sonstige Angaben
Aktuell ist die Wohnung noch bewohnt.
Eine Übernahme kann nach Absprache zum Januar oder Februar 2026 erfolgen.
Wir vermieten aus unserem Hausverwaltungsbestand!
Im Haus leben ausschließlich 1- oder 2-Personen Haushalte im gesetzten Alter.
Die Mindestmietzeit beträgt 2 Jahre.
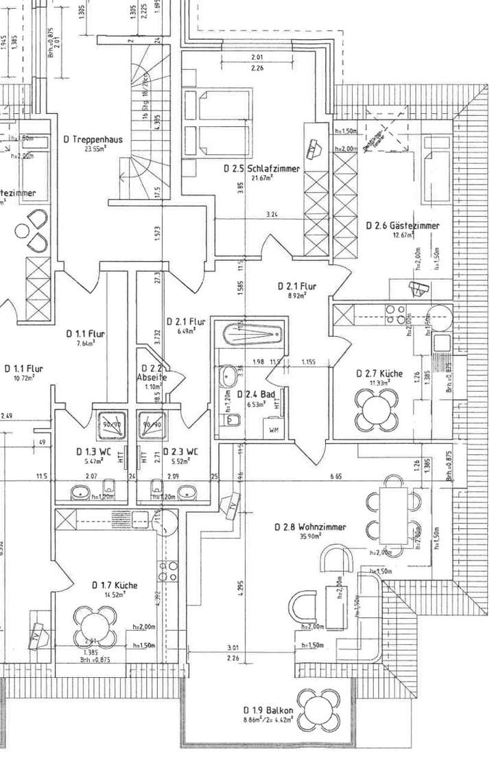
Grundriss
Grundriss
>
>
Adresse
23714 Malente
Interessante Orte
Preis- und Lageinformationen
Preistrend für Bestandsimmobilien in Malente