In repräsentativer Wohn- und Geschäftslage von Elmshorn, in unmittelbarer Nähe des Liether Stadtparks präsentiert sich das 2005 erbaute exklusive Niedrigenergie- Architektenhaus, das sich ideal auf ca. 130 m² Wohnfläche zum repräsentativen Wohnen und/oder Arbeiten anbietet.
NEU!Exklusiv Wohnen inkl. großzügigem Wintergarten in TOP - LAGE - der Liether Wald ist Ihr Nachbar!
25336 Elmshorn
Die vollständige Adresse der Immobilie erhalten Sie vom Anbieter.
Auf Karte anzeigen
Die vollständige Adresse der Immobilie erhalten Sie vom Anbieter.
Infos
| Wohnungskategorie | Hochparterre |
|---|---|
| Wohnfläche ca. | 130 m2 |
| Bezugsfrei ab | nach Vereinbarung. |
| Zimmer | 4 |
| Schlafzimmer | 2 |
| Badezimmer | 1 |
| Haustiere | Nein |
| Garage/Stellplatz | Außenstellplatz |
Kosten
| Kaltmiete |
1.500 € |
|---|---|
| Nebenkosten | + 360 € |
| Heizkosten | in Nebenkosten enthalten |
| Gesamtmiete | 1.860 € |
| Miete für Garage/Stellplatz | 50 € |
| Kaution o. Genossenschaftsanteile | 3 Netto-Kaltmieten Kaution |
Weiter mieten oder doch kaufen?
Wer in Miete wohnt, überweist dem Vermieter im Laufe der Jahre hohe Summen, die sich
auch in die eigenen vier Wände investieren lassen könnten.
Bausubstanz & Energieausweis
| Baujahr | 1933 |
|---|---|
| Letzte Sanierung | 2025 |
| Objektzustand | Neuwertig |
| Heizungsart | Wärmepumpe |
| Wesentliche Energieträger | Strom |
| Energieausweis | liegt vor |
| Energieausweistyp | Bedarfsausweis |
| Energieverbrauchskennwert | 44,2 kWh/(m²*a) |
| Energieeffizienzklasse | A |
44,2
kWh/(m²*a)
Energieeffizienzklasse A
- A+
- A
- B
- C
- D
- E
- F
- G
- H
- 0
- 25
- 50
- 75
- 100
- 125
- 150
- 175
- 200
- 225
- >250
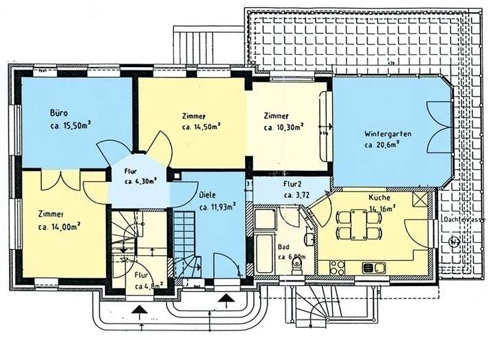
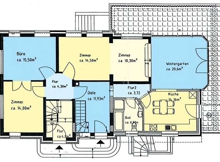
Beschreibung des Objekts
Ausstattung
Die Ausstattung ist in allen Bereichen hochwertig und modern. Grundsätzlich wurden nur erstklassige Materialien verwandt:
-moderne, weiße Einbauküche mit Lackfronten und Granitarbeitsplatte.
-geschmackvoll eingerichtetes Granit-Duschvollbad sowie Granit Gäste-WC mit hochwertigen Sanitärobjekten
-sämtliche Bodenflächen, mit Ausnahme vom Büro- und Schlafzimmer sind mit edlem, hellen Granit ausgestattet.
-Büro und Schlafzimmer verfügen über Pitchpine-Fußböden.
-Kamin
-teilweise Fußbodenheizung
Ein Highlight ist der lichtdurchflutete Wintergarten mit Austritt
auf die großzügige Dachterrasse.
Von hier blickt man auf den Garten, der sich mit einem liebevoll angelegten Teich schmückt und zur Mitbenutzung
angeboten wird. Gleichzeitig ist ein Stellplatz inklusive. Weitere Stellplatzmöglichkeiten sind in unmittelbarer Umgebung vorhanden.
Lage
Hier finden Sie den idealen Ausgangspunkt für Ihre individuelle Lebensgestaltung: Das Stadtzentrum Elmshorn ist in wenigen Fahrminuten erreichbar. Hier ergänzen sich Erholung, Freizeit, Kultur und auch die Geschäftswelt geradezu ideal.
Die Auffahrt A 23 Richtung Hamburg und Nordsee ist in ca. 5 Autominuten erreichbar; in knapp einer halben Stunde Fahrt stehen Sie mitten in Hamburgs City. Die exklusive Lage ist auch für Berufspendler ein attraktiver Standort: Der Bahnhof ist ebenfalls in wenigen Autominuten erreichbar- alternativ ist eine Busverbindung unmittelbar gegeben. Die Bahnanbindung zwecks Weiterfahrt in Richtung Hamburg (S-Bahnanschluss), Westerland und Kiel ist als sehr gut zu bezeichnen. Kindergärten, Grundschulen und alle weiterführenden Schulen (neben Haupt- und Realschulen sowie Gymnasien, ebenso Waldorfschule mit Waldorfkindergarten und auch die Gesamtschule) sind in ca. 10 Min. mit dem Fahrrad bzw. mit dem Bus zu erreichen. Gleiches gilt für die Wirtschaftsakademie, die Nordakademie (Hochschule der Wirtschaft) sowie die Leibnitz-Schule.
Sonstige Angaben
2025 wurde eine Wärmepumpe eingbaut. 2025 wurde auch der Energiebedarfsausweis erstellt, am 03.09.2025.
Seit 2025 liegt Glasfaser in dem Haus.
Die Wohnung wird zu einer Netto-Kaltmiete von Euro 1.500 angeboten. Die Nebenkostenkostenvorauszahlung inkl. Heizkostenvorauszahlung betragen 360,00.
Grundriss
Grundriss Exklusiv wohnen...
>
>
Adresse
25336 Elmshorn
Interessante Orte
Preis- und Lageinformationen
Preistrend für Bestandsimmobilien in Elmshorn