Die komfortable, lichtdurchflutete Doppelhaushälfte wurde 2004/2005 in anderthalb geschossiger Bauweise errichtet. Das Haus verfügt über Fußbodenheizung. Das moderne helle Bad ist großzügig angelegt und verfügt neben der Dusche zusätzlich über ein Wannenbad.
Niedrigenergiehaus, ruhige kinderfreundliche Lage.
Provisionsfrei. Keine Maklergebühren.
Moderne helle DHH in sonniger Südlage, ruhiges Wohngebiet, zentrale Lage
51491 Overath
Die vollständige Adresse der Immobilie erhalten Sie vom Anbieter.
Auf Karte anzeigen
Die vollständige Adresse der Immobilie erhalten Sie vom Anbieter.
Infos
| Haustyp | Doppelhaushaelfte |
|---|---|
| Etagenzahl | 2 |
| Wohnfläche ca. | 130 m2 |
| Nutzfläche | 130 m2 |
| Grundstücksfläche | 320 m2 |
| Bezugsfrei ab | 01.03.2026 |
| Zimmer | 5 |
| Schlafzimmer | 3 |
| Badezimmer | 1 |
| Haustiere | Nein |
| Garage/Stellplatz | Außenstellplatz |
| Anzahl Garage/Stellplatz | 2 |
Kosten
| Kaltmiete |
1.390 € |
|---|---|
| Nebenkosten | + 438 € |
| Heizkosten | in Nebenkosten enthalten |
| Gesamtmiete | 1.828 € |
| Kaution o. Genossenschaftsanteile | 4170 EUR |
Weiter mieten oder doch kaufen?
Wer in Miete wohnt, überweist dem Vermieter im Laufe der Jahre hohe Summen, die sich
auch in die eigenen vier Wände investieren lassen könnten.
Bausubstanz & Energieausweis
| Baujahr | 2004 |
|---|---|
| Objektzustand | Gepflegt |
| Qualität der Austattung | Gehoben |
| Heizungsart | Gas-Heizung |
| Wesentliche Energieträger | Gas |
| Energieausweis | liegt vor |
| Energieausweistyp | Verbrauchsausweis |
Beschreibung des Objekts
Ausstattung
Als Bodenbelag sind im EG terrakotta-farbene Fliesen, im OG ist hochwertiges Laminat vorlegt. Fußbodenheizung im EG und OG.
Gasheizung (Brennwertgerät) mit witterungsgeführter Steuerung.
Stellplätze sind vorhanden.
Lage
Die Doppelhaushälfte mit sonniger Südlage liegt in einem ruhigen und zentralgelegenen Neubauwohngebiet in Overath - Heiligenhaus. Kindergarten & Grundschule in unmittelbarer Nähe (300m); weiterführendes Schulzentrum in der Nähe (2 km);
öffentliche Verkehrsmittel, Bäckerei, Metzgerei, Apotheke, Lebensmitteldiscounter und die Bank sind fußläufig in wenigen Minuten zu erreichen.
Das Zentrum (in 2,4 km) von Overath und der S-Bahnhof – mit Verbindung nach Gummersbach und Köln – sind mit dem öffentlichen Nahverkehr , der Busline 410 und dem Bürgerbus, fußläufig in wenigen Minuten erreichbar.
Sie profitieren von der guten Verkehrsanbindung zur Autobahn A4 (in ca. 4,2 km) und auch zur A3.
Die Autobahn A4 (oder auch A3) ist schnell erreicht, in ca. 7 Min (A3 in ca. 12Min.).
Bensberg/Moitzfeld ist ca.10 Min. entfernt.
Die Kölner Innenstadt ist somit in ca. 20 Minuten erreichbar. Der Flughafen Köln/Bonn über die A3 in ca. 20 Minuten.
Sonstige Angaben
Niedrigenergiehaus mit 5 Zimmer inkl. großem Dachstudio (ca. 20 qm), KDB, Küche mit Abstellraum, Gäste WC, Keller und Südterrasse, inkl. Gartenhaus;
Stellplätze sind vorhanden, verkehrsgünstige, aber dennoch sehr ruhige Lage; in einer ruhigen Wohnstraße;
VDSL mit 250 Mbit/s ist verfügbar;
Digitale Sat-Anlage verhanden;
Das nahe gelegene Bensberg bietet ebenfalls gute Einkaufsmöglichkeiten;
Es gibt einen Winterdienst in der ruhigen Wohnstraße;
Provisionsfrei;
Nichtraucher bevorzugt;
Vermietung nur an Selbstzahler;
Notwendige Dokumente:
Selbstauskunft
Schufa-Bonitäts Check
Personalausweis
Mietzahlungsnachweis
Einkommensnachweise
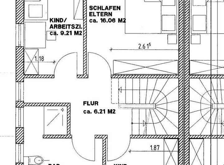
Grundriss
H15K-EG
>
>
H15K-OG
>
>
Adresse
51491 Overath
Interessante Orte
Preis- und Lageinformationen
Preistrend für Bestandsimmobilien in Overath