Die Penthouse-Wohnung befindet sich in einem Mehrfamilienhaus, bestehend aus 6 Wohneinheiten, welches im Jahr 2009 in Massivbauweise erstellt wurde und sich auf einem parkähnlichen Südgrundstück befindet. Das Gebäude verfügt über 2 Vollgeschosse und ein Staffelgeschoss und ist voll unterkellert.
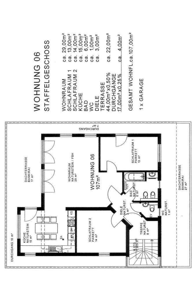
Die Wohnung liegt im Staffelgeschoss und hat eine Größe von 107,00 m². Die Wohnung ist sehr großzügig geschnitten und besteht aus einem Wohnraum mit ca. 29 m² und einer sich anschließenden offene Küche von 15 m², weiterhin 2 Schlafzimmer, das Wannenbad und ein Gäste-WC.
Die Dachterrasse ist ca. 45 m² groß und bietet den Blick in einen schön gestalteten Garten.
Ausstattung mit Granitböden im Wohnbereich, in der Küche und im Bad. Die Schlafräume sind mit Parkettboden ausgestattet, moderne, hell geflieste Bäder, Terrasse mit Bankirai-Holz.
Im Kellergeschoss befinden sich die Kellerräume der einzelnen Wohnungen, der Hausanschlussraum und die Heizzentrale.
Das Gebäude wird über ein zentral angeordnetes Treppenhaus erschlossen.
Hochwertige Materialien wurden konsequent im ganzen Objekt verwandt, die Küche ist mit einer modernen Einbauküche ausgestattet.
Die Außenanlagen wurden aufwendig gestaltet.
Exklusive 3-Zimmer-Penthouse-Wohnung mit hochwertiger Ausstattung
40699 Erkrath
Die vollständige Adresse der Immobilie erhalten Sie vom Anbieter.
Auf Karte anzeigen
Die vollständige Adresse der Immobilie erhalten Sie vom Anbieter.
Infos
| Wohnungskategorie | Penthouse |
|---|---|
| Wohnfläche ca. | 107 m2 |
| Bezugsfrei ab | nach Vereinbarung |
| Zimmer | 3 |
| Schlafzimmer | 2 |
| Badezimmer | 1 |
| Haustiere | Nein |
Kosten
| Kaltmiete |
1.391 € |
|---|---|
| Nebenkosten | + 380 € |
| Heizkosten | in Nebenkosten enthalten |
| Gesamtmiete | 1.771 € |
| Kaution o. Genossenschaftsanteile | € 4.173,00 |
Weiter mieten oder doch kaufen?
Wer in Miete wohnt, überweist dem Vermieter im Laufe der Jahre hohe Summen, die sich
auch in die eigenen vier Wände investieren lassen könnten.
Bausubstanz & Energieausweis
| Baujahr | 2009 |
|---|---|
| Objektzustand | Neuwertig |
| Qualität der Austattung | Gehoben |
| Heizungsart | Zentralheizung |
| Wesentliche Energieträger | Gas |
| Energieausweis | liegt vor |
| Energieausweistyp | Bedarfsausweis |
| Energieverbrauchskennwert | 89,6 kWh/(m²*a) |
| Energieeffizienzklasse | C |
89,6
kWh/(m²*a)
Energieeffizienzklasse C
- A+
- A
- B
- C
- D
- E
- F
- G
- H
- 0
- 25
- 50
- 75
- 100
- 125
- 150
- 175
- 200
- 225
- >250
Beschreibung des Objekts
Lage
Der Stadtteil Erkrath-Unterfeldhaus ist sehr beliebt und grenzt südöstlich an das Düsseldorfer Stadtgebiet in direkter Nähe zum Unterbacher See. Die Wohnlage ist ruhig, umgeben von Wiesen und Wäldern, und bietet einen hohen Freizeitwert. Im Mittelpunkt steht hier der Wassersport mit Schwimmen, Segeln, Surfen. Das nahe Neandertal lädt ein zu ausgedehnten Spaziergängen und Fahrradtouren. Die Düsseldorfer Innenstadt mit exklusiven Einkaufsmöglichkeiten und einem vielfältigen kulturellen Angebot erreicht man mit dem Auto wie auch mit den öffentlichen Verkehrsmitteln in kurzer Zeit. Optimale Anbindungen an die Autobahnen A 3 und A 46 bringen einen schnell nach Köln, Wuppertal und das angrenzende Ruhrgebiet sowie zum Internationalen Flughafen.
Hervorragende Einkaufsmöglichkeiten, öffentliche Verkehrsmittel, Kindergärten und Schulen sind fußläufig erreichbar.
Grundriss
Grundriss
>
>
Adresse
40699 Erkrath
Interessante Orte
Preis- und Lageinformationen
Preistrend für Bestandsimmobilien in Erkrath