Der Ginkgo mit der umgebenden Holzterrasse ist der Mittelpunkt des Anwesens.
Komplett saniertes Haus (Altbau) mit neu erstelltem Anbau:
Ineinander übergehend, jedoch 2 separat nutzbare Eingangstüren.
Saniertes Dach, Voll-Wärmedämmung aller Fassaden, neue Fenster + Außentüren, begrünte Flachdächer.
Neuinstallation Sanitär, Heizung + Elektro
Zimmer: 7,5
große Terrasse + Sonnendeck im EG
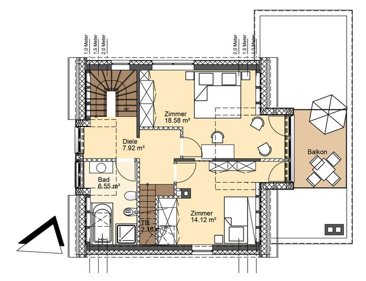
im OG Balkon (bzw.Terrasse) mit Zugang von 2 SZ
Carport + Abstellraum (für Fahrräder + Gartengeräte)
Schöner Garten mit altem Baumbestand: Ginkgos, Thuje, Magnolie + große Eiche an der Grenze im Nachbargarten.
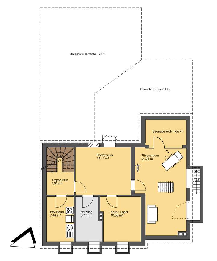
UG: alle Böden mit Holzdielen
Hauswirtschaftsraum für Waschmaschine + Trockner
Hobby-Raum, großer Fitnessraum, Heiz-+Lagerraum.
Variable Grundrisse zur Nutzung des Hauses denkbar:
1. als Mehrgenerationenhaus
z.B. Altbau Familie
EG Neubau Großeltern
2. als Selbständiger/Freiberufler oder im Homeoffice
z.B. Altbau Familie
EG Neubau Büro
3. als Familie insgesamt
1.OG+DG Kinder (evtl. Nanny)
EG Neubau Eltern-Suite
4. oder...
Die Verbrauchsgebühren, z.B. für Strom, Gas für Heizung, Wasser + Abwasser, Müll sind vom Mieter direkt mit dem Versorgungsunternehmen (z.B. Stadtwerke München) abzurechnen.
Hinweis:
Die in den Bildern und Grundrissen dargestellten Einrichtungsgegenstände bzw. Mobiliar sind nicht Gegenstand des Mietangebotes.
Ginkgo mit Haus in München sucht Familie
81739 München
Die vollständige Adresse der Immobilie erhalten Sie vom Anbieter.
Auf Karte anzeigen
Die vollständige Adresse der Immobilie erhalten Sie vom Anbieter.
Infos
| Haustyp | Einfamilienhaus |
|---|---|
| Etagenzahl | 3 |
| Wohnfläche ca. | 212 m2 |
| Nutzfläche | 80 m2 |
| Grundstücksfläche | 560 m2 |
| Bezugsfrei ab | 1.7.2025 |
| Zimmer | 7,5 |
| Badezimmer | 3 |
| Haustiere | Nach Vereinbarung |
| Garage/Stellplatz | Carport |
| Anzahl Garage/Stellplatz | 2 |
Kosten
| Kaltmiete |
4.600 € |
|---|---|
| Nebenkosten | + 0 € |
| Heizkosten | keine Angabe |
| Gesamtmiete | 4.600 € (zzgl. Heizkosten) |
| Kaution o. Genossenschaftsanteile | 3 Monatsmieten |
Weiter mieten oder doch kaufen?
Wer in Miete wohnt, überweist dem Vermieter im Laufe der Jahre hohe Summen, die sich
auch in die eigenen vier Wände investieren lassen könnten.
Bausubstanz & Energieausweis
| Baujahr | 1956 |
|---|---|
| Letzte Sanierung | 2025 |
| Objektzustand | Neuwertig |
| Qualität der Austattung | Gehoben |
| Heizungsart | Wärmepumpe |
| Wesentliche Energieträger | Gas |
| Energieausweis | liegt zur Besichtigung vor |
Beschreibung des Objekts
Ausstattung
- Boden: Landhausdielen in Eiche + weiße Sockelleisten in allen Wohnräumen
- Großformatige Fliesen in Windfang, Küche + Bädern
- Fichtendielen im UG
- Bäder: Fußbodenheizung, Badewannen + Duschen, Bidets (auch im Gäste-WC), hochwertige Keramik + Armaturen( z.B. rain-shower-Duschköpfe), öffenbare Fenster.
- weiß lackierte Holztüren + -fenster mit Edelstahlbeschlägen, große Fensterfronten nach Süden
- offener Kamin im Wohnzimmer
- Fernsehempfang: Satellit oder Kabel
- Verkabelung mit Cat 5 für IT + TV in allen Räumen
- Videogegensprechanlage mit 3 Sprechstellen
- Zufahrt mit Granit-Kleinpflaster
- Einfahrtstor elektr. mit Fernbedienung
- Küche mit allen Anschlüssen incl. Wasseranschluß für Side-by-Side-Kühlgerät
- vorhandene Küche vom Vormieter kann übernommen werden
- Installation einer Luft-Wärmepumpe ist erfolgt
Lage
Das Haus ist an einer ruhigen Seitenstraße gelegen.
Waldperlach liegt am südöstlichen Stadtrand von München. Als grüne Gartensiedlung gehört es zu den attraktivsten und begehrtesten Wohngegenden Münchens. Zusammen mit Altperlach und den angrenzenden Umlandgemeinden Neubiberg, Ottobrunn, Putzbrunn und Solalinden bildet es ein eigenes Vorstadtzentrum.
Infrastruktur: Einkaufsmöglichkeiten aller Art, Kindergarten und Schulen (Grund-,Realschule + Gymnasien, Europäische- + Montessori-Schule).
Viele Spiel-+Bolzplätze, eine Skateranlage + mehrere angrenzende Waldgebiete bieten sich als Spiel- und Sportmöglichkeit für Kinder + Jugendliche an.
Innenstadt mit öffentlichen Verkehrsmitteln (Bus, U-Bahn, S-Bahn) in 25-30 Minuten erreichbar.
Gut ausgebautes Straßennetz "rund um Waldperlach": Autobahn + Bundesstraßen Richtung
- Flughafen
- Berge
- Erholungslandschaft+Badeseen
Grundriss
EG
>
>
OG
>
>
DG
>
>
UG
>
>
Adresse
81739 München
Interessante Orte
Preis- und Lageinformationen
Preistrend für Bestandsimmobilien in Perlach