Der frei stehende, 2018 komplett kernsanierte Bungalow mit eingewachsenen Garten liegt in einer ruhigen Wohngegend in Deisenhofen.
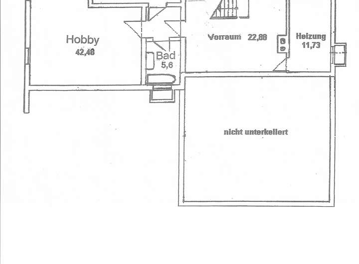
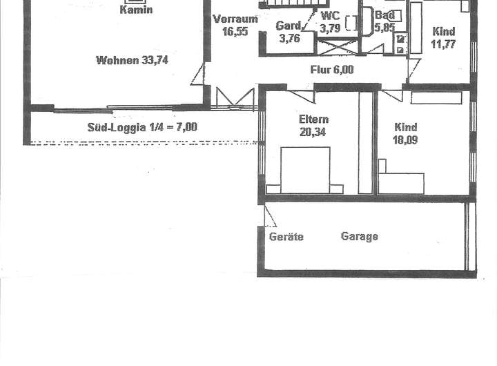
Ein heller Eingangsbereich mit bodentiefen Fensterfronten trennt Wohn- und Schlafbereich und führt direkt in den Garten. Der große Wohn-Essbereich mit offener Küche bietet einen herrlichen Blick auf die überdachte Terrasse und den nicht einsehbaren Südgarten. Es ist keine Küche eingebaut. Das EG und UG verfügen beide über ein Bad mit Dusche oder Badewanne. Zudem befindet sich im UG neben einem großzügigen Hobbyraum mit Tageslicht ein Technikraum mit Anschluss für Waschmaschine und Trockner sowie ein separater Kellerraum.
Moderner freistehender Architektenbungalow in ruhiger Lage
82041 Oberhaching
Die vollständige Adresse der Immobilie erhalten Sie vom Anbieter.
Auf Karte anzeigen
Die vollständige Adresse der Immobilie erhalten Sie vom Anbieter.
Infos
| Haustyp | Einfamilienhaus |
|---|---|
| Etagenzahl | 1 |
| Wohnfläche ca. | 223 m2 |
| Grundstücksfläche | 652 m2 |
| Zimmer | 5 |
| Schlafzimmer | 2 |
| Badezimmer | 2 |
| Haustiere | Nach Vereinbarung |
| Garage/Stellplatz | Garage |
| Anzahl Garage/Stellplatz | 2 |
Kosten
| Kaltmiete |
3.850 € |
|---|---|
| Nebenkosten | + 140 € |
| Heizkosten | keine Angabe |
| Gesamtmiete | 3.990 € (zzgl. Heizkosten) |
| Kaution o. Genossenschaftsanteile | 11550 € |
Weiter mieten oder doch kaufen?
Wer in Miete wohnt, überweist dem Vermieter im Laufe der Jahre hohe Summen, die sich
auch in die eigenen vier Wände investieren lassen könnten.
Bausubstanz & Energieausweis
| Baujahr | 1967 |
|---|---|
| Letzte Sanierung | 2018 |
| Objektzustand | Neuwertig |
| Qualität der Austattung | Luxus |
| Heizungsart | Fernwärme |
| Wesentliche Energieträger | Erdwärme |
| Energieausweis | liegt vor |
Beschreibung des Objekts
Ausstattung
Verbaute Materialien:
- Fenster mit größtenteils dreifach Verglasung.
- Flur mit bodentiefer 3–fach Festverglasung.
- Großformatige italienische Feinsteinzeug-Fliesen im Wohn-Essbereich, Küche und Bädern.
- Deutscher Jura-Marmor und Granit in den Fluren und im Treppenhaus.
- Moderne Vinyl Designböden in den Schlafräumen sowie im Hobby Raum.
- Moderne italienische Design Armaturen.
Technik:
- Neue Hauselektrik im gesamten Haus.
- Glasfaser Anschluss (Vodafone und Telekom vorhanden).
- 330V Anschluss für e-Mobilität in der Garage.
- Räume sind mit LED Leuchten ausgestattet.
- Fernwärme.
Lage
Oberhaching/Deisenhofen liegt südlich von München und östlich von Grünwald.
Das Haus liegt in einer ruhigen Anliegerstraße oberhalb des Gleisentals.
Der Ort Oberhaching verfügt über einen eigenen Autobahnanschluss zur A995, A99 und A8. Zum Flughafen fährt man in 40 Minuten. Der S-Bahn-Anschluß für S 3 und der Meridian ist in wenigen Gehminuten erreichbar und bringt Sie in 25 Minuten zum Marienplatz.
Kindergärten und Krippen, Grund-Mittelschule als auch ein Gymnasium sind am Ort vorhanden. Eine Realschule und eine FOS sind in Bau.
Sämtliche Einkaufsmöglichkeiten stehen Ihnen in den verschiedenen Ortsteilen zur Verfügung.
Das Gleisental, der Grünwalder Forst sowie die Isar-Auen bieten attraktive Freizeitmöglichkeiten.
Sonstige Angaben
Die Kosten für Fernwärme und Strom sind direkt an den Versorger zu leisten.
Bitte keine Makleranfragen.
Weitere Dokumente
Deisenhofen WohnflächenberechnAdresse
82041 Oberhaching
Interessante Orte
Preis- und Lageinformationen
Preistrend für Bestandsimmobilien in Oberhaching