Das hier angebotene 2018 renovierte 3- Zimmer Reiheneckhaus verteilt sich auf einer Wohnfläche von ca. 94,46 m².
Es handelt sich eine Immobilie aus dem 1900 Jahrhundert, welche zudem unter Denkmalschutz steht.
Über die Toreinfahrt zum Wätjenspark gelangen Sie zu den Häusern mit einem großen Parkplatz. Die Parkplätze sind nicht fest aufgeteilt. Jeder stellt sich dahin, wo es im Moment passt.
Dieses gepflegte Reiheneckhaus bietet eine durchdachte Raumaufteilung und eignet sich ideal für Singles, Paare oder kleine Familien. Die großzügigen Fenster sorgen für eine helle, freundliche Wohnatmosphäre.
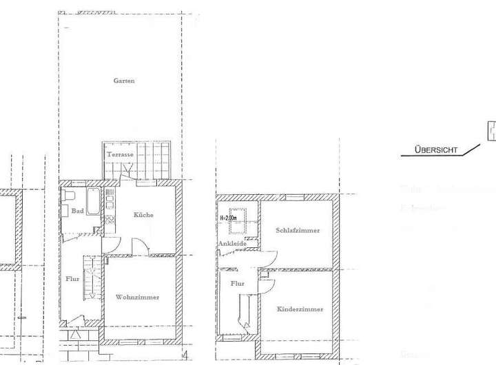
Wir beginnen im Erdgeschoss:
Dieses Haus empfängt Sie mit einem geräumigen Flur mit Garderobenmöglichkeit.
Vom Flur aus, ist die Küche sowie das Badezimmer begehbar.
Das Badezimmer ist mit einer Badewanne, einem Fenster sowie einem Waschmaschinenanschluss ausgestattet. Hier befindet sich außerdem die Gastherme.
Die Küche ist sehr großzügig geschnitten, sodass hier ein Esstisch problemlos untergebracht werden kann.
Eine Einbauküche inkl. Elektrogeräten ist auf der linken Seite angeordnet. Der Mieter muss selber einen Kühlschrank mitbringen.
Das geräumige Wohnzimmer ist von der Küche aus begehbar und verfügt über eine gute Größe.
Von der Küche aus gelangen Sie auf die Terrasse und zum Garten.
Der gepflegte Garten mit angrenzender Terrasse lädt zum Verweilen und Entspannen ein – ideal für Grillabende oder ein gemütliches Frühstück im Grünen. Als Reiheneckhaus bietet es mehr Außenfläche und Helligkeit als mittlere Reihenhäuser.
Weiter gehts im 1. Obergeschoss:
Hier befindet sich jeweils ein Kinderzimmer, ein Schlafzimmer und ein Ankleidebereich/ Abstellraum.
Auf dieser Etage sind Holzdielen verarbeitet, welche aus dem Jahr 1900 stammen und 2018 aufgearbeitet wurden.
Das Haus ist außerdem unterkellert.
Der Keller ist aufgrund des alters des Hauses nur eingeschränkt nutzbar (Feuchtigkeit/ Schimmel).
Der Keller steht dem Mieter unentgelich zur Nutzung zur Verfügung. Dieser wurde bei der Wohnflächenberechnung nicht beachtet.
Wohnen im Wätjenspark! 3 Zimmer Reiheneckhaus mit EBK und Garten
Landrat-Christians-Str. 11,
28779 Bremen
Auf Karte anzeigen
Infos
| Haustyp | Reiheneckhaus |
|---|---|
| Etagenzahl | 2 |
| Wohnfläche ca. | 94 m2 |
| Grundstücksfläche | 100 m2 |
| Bezugsfrei ab | 01.03.2026 |
| Zimmer | 3 |
| Schlafzimmer | 2 |
| Badezimmer | 1 |
| Haustiere | Nach Vereinbarung |
| Garage/Stellplatz | Außenstellplatz |
| Anzahl Garage/Stellplatz | 2 |
Kosten
| Kaltmiete |
900 € |
|---|---|
| Nebenkosten | + 150 € |
| Heizkosten | keine Angabe |
| Gesamtmiete | 1.050 € (zzgl. Heizkosten) |
| Miete für Garage/Stellplatz | 0 € |
| Kaution o. Genossenschaftsanteile | 2.700,00 |
Weiter mieten oder doch kaufen?
Wer in Miete wohnt, überweist dem Vermieter im Laufe der Jahre hohe Summen, die sich
auch in die eigenen vier Wände investieren lassen könnten.
Bausubstanz & Energieausweis
| Baujahr | 1900 |
|---|---|
| Letzte Sanierung | 2017 |
| Objektzustand | Gepflegt |
| Qualität der Austattung | Normal |
| Heizungsart | Etagenheizung |
| Wesentliche Energieträger | Gas |
| Energieausweis | liegt vor |
| Energieausweistyp | Bedarfsausweis |
| Energieverbrauchskennwert | 182,6 kWh/(m²*a) |
| Energieeffizienzklasse | F |
182,6
kWh/(m²*a)
Energieeffizienzklasse F
- A+
- A
- B
- C
- D
- E
- F
- G
- H
- 0
- 25
- 50
- 75
- 100
- 125
- 150
- 175
- 200
- 225
- >250
Beschreibung des Objekts
Ausstattung
- 3-Zimmer
- 2 Etagen
- 2018 renoviert
- Einbauküche exkl. Kühlschrank
- Vollbad mit Badewanne, Fenster und Waschmaschinenanschluss
- Terrasse und Garten
- Stellplätze vorhanden
- Keller
- hohe Decken
Lage
Das angebotene Reiheneckhaus befindet sich in ruhiger, familienfreundlicher Wohnlage in der Landrat-Christians-Straße 11 im Stadtteil Bremen-Nord / Blumenthal. Die Nachbarschaft ist geprägt von gepflegter Wohnbebauung, denkmalgeschützen Immobilien (weiter hinten sogar ein Schloß), viel Grün und einer angenehmen, nachbarschaftlichen Atmosphäre.
Die Parkanlage befindet am Südwestrand der Osterholzer Geest beiderseits der Grenze zwischen den Stadtteilen Blumenthal und Vegesack südlich der Landrat-Christians-Straße.
Einkaufsmöglichkeiten für den täglichen Bedarf, Kindergärten, Schulen sowie Ärzte und Apotheken befinden sich in unmittelbarer Nähe und sind sowohl zu Fuß als auch mit dem Fahrrad schnell erreichbar. Auch das beliebte Blumenthaler Zentrum sowie der Bahnhof Bremen-Blumenthal mit Anbindung an die Regionalbahn sind nur wenige Minuten entfernt.
Dank der guten Verkehrsanbindung über die A270 sowie den ÖPNV (Bus- und Bahnverbindungen) erreichen Sie sowohl die Bremer Innenstadt als auch das Umland bequem und zügig. Die Nähe zur Weser, zu ausgedehnten Grünflächen und Spazierwegen bietet zudem einen hohen Freizeitwert – ideal für Familien, Naturfreunde und Erholungssuchende.
Sonstige Angaben
Die Gartenpflege muss durch den Mieter erfolgen.
Die Verbrauchskosten von Heizung, Wasser und Strom werden direkt mit den Versorgern abgerechnet.
Adresse
Landrat-Christians-Str. 11, 28779 Bremen
Interessante Orte
Preis- und Lageinformationen
Preistrend für Bestandsimmobilien in Blumenthal